














Book your tour. Save an average of $18,473. We'll handle the rest.
- Confirmed tours
- Get matched & compare top deals
- Expert help, no pressure
- No added fees
Estimated value based on Jome data, T&C apply













- 4 bd
- 3 ba
- 2,106 sqft
7420 Sandstone Dr, Groveland, FL 34736
Why tour with Jome?
- No pressure toursTour at your own pace with no sales pressure
- Expert guidanceGet insights from our home buying experts
- Exclusive accessSee homes and deals not available elsewhere
Jome is featured in
- Single-Family
- Quick move-in
- $180.06/sqft
- $112.5/monthly HOA
Home description
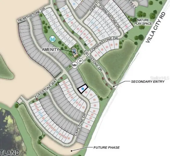
What's Special: Covered Lanai |Backs to Open Space |Close to Amenities. New Construction – Ready Now! Built by Taylor Morrison, America’s Most Trusted Homebuilder. Welcome to the Magnolia at 7420 Capstone Drive in Waterstone. Step inside and enjoy a clear view through the heart of the home. Bright and open, this plan offers an extended space for entertaining that flows from the dining area to the kitchen and great room. Sliding doors at the back lead to a relaxing lanai. The kitchen is a dream for food lovers, with a long prep-and-serve island, generous counter space, and a spacious walk-in pantry. Its central location keeps the chef connected during gatherings. Three comfortable secondary bedrooms share two full baths. The private primary suite rests quietly at the rear of the home. It features an L-shaped walk-in closet and a well-appointed bath with a large shower, dual vanity, and private water closet. New single-family homes are now selling at Waterstone! This 400-acre community blends natural beauty with modern convenience in Groveland, just minutes from Clermont. Enjoy rolling hills, nearby lakes, and easy access to major roads. Planned amenities include a pool, cabana, dog park, Nature Play Space, and Monarch Butterfly Gardens. Additional Highlights Include: Granite countertops. Photos are for representative purposes only. MLS#O6364538
TAYLOR MORRISON REALTY OF FLORIDA INC, MLS O6364538
May also be listed on the Taylor Morrison website
Information last verified by Jome: Today at 10:31 AM (December 6, 2025)
Home highlights
World-famous Orlando resort with four theme parks, immersive entertainment, and family living nearby.
Book your tour. Save an average of $18,473. We'll handle the rest.
We collect exclusive builder offers, book your tours, and support you from start to housewarming.
- Confirmed tours
- Get matched & compare top deals
- Expert help, no pressure
- No added fees
Estimated value based on Jome data, T&C apply
Home details
- Property status:
- Move-in ready
- Lot size (acres):
- 0.17
- Size:
- 2,106 sqft
- Stories:
- 1
- Beds:
- 4
- Baths:
- 3
- Garage spaces:
- 2
- Facing direction:
- Southwest
Construction details
- Builder Name:
- Taylor Morrison
- Year Built:
- 2025
- Roof:
- Shingle Roofing
Home features & finishes
- Construction Materials:
- StuccoBlock
- Cooling:
- Central Air
- Flooring:
- Carpet FlooringTile Flooring
- Foundation Details:
- Slab
- Garage/Parking:
- Door OpenerGarageAttached Garage
- Interior Features:
- Window TreatmentsWalk-In ClosetPantrySliding Doors
- Kitchen:
- DishwasherMicrowave OvenRefrigeratorDisposalKitchen Range
- Laundry facilities:
- DryerWasherUtility/Laundry Room
- Pets:
- Pets AllowedPets Allowed with Breed Restrictions
- Property amenities:
- PatioPorch
- Rooms:
- Flex RoomGreat RoomPrimary Bedroom On MainKitchenGuest RoomDining RoomFamily RoomOpen Concept FloorplanPrimary Bedroom Downstairs
Utility information
- Heating:
- Electric Heating, Water Heater, Tankless water heater
- Utilities:
- Natural Gas Available, Underground Utilities, Cable Available

Community details
Waterstone
by Taylor Morrison, Groveland, FL
- 18 homes
- 9 plans
- 1,455 - 2,516 sqft
View Waterstone details
More homes in Waterstone
Floor plans in Waterstone
About the builder - Taylor Morrison
Neighborhood
Home address
Schools in Lake County School District
- Grades KG-12Privateintegrity christian academy #68893.8 mi7432 state road 50na
GreatSchools’ Summary Rating calculation is based on 4 of the school’s themed ratings, including test scores, student/academic progress, college readiness, and equity. This information should only be used as a reference. Jome is not affiliated with GreatSchools and does not endorse or guarantee this information. Please reach out to schools directly to verify all information and enrollment eligibility. Data provided by GreatSchools.org © 2025
Places of interest
Getting around
Air quality
Noise level
A Soundscore™ rating is a number between 50 (very loud) and 100 (very quiet) that tells you how loud a location is due to environmental noise.
Natural hazards risk
Climate hazards can impact homes and communities, with risks varying by location. These scores reflect the potential impact of natural disasters and climate-related risks on Lake County
Provided by FEMA

Considering this home?
Our expert will guide your tour, in-person or virtual
Need more information?
Text or call (888) 486-2818
Financials
Estimated monthly payment
Similar homes nearby
Recently added communities in this area
Nearby communities in Groveland
New homes in nearby cities
More New Homes in Groveland, FL
TAYLOR MORRISON REALTY OF FLORIDA INC, MLS O6364538
Based on information submitted to the MLS GRID as of 10/21/2024 2:31 PM CDT. All data is obtained from various sources and may not have been verified by broker or MLS GRID. Supplied Open House Information is subject to change without notice. All information should be independently reviewed and verified for accuracy. Properties may or may not be listed by the office/agent presenting the information. Some IDX listings have been excluded from this website. Properties displayed may be listed or sold by various participants in the MLS. IDX information is provided exclusively for personal, non-commercial use, and may not be used for any purpose other than to identify prospective properties consumers may be interested in purchasing. Information is deemed reliable but not guaranteed. Use of the MLS GRID Data may be subject to an end user license agreement prescribed by the Member Participant’s applicable MLS if any and as amended from time to time. The Digital Millennium Copyright Act of 1998, 17 U.S.C. § 512 (the “DMCA”) provides recourse for copyright owners who believe that material appearing on the Internet infringes their rights under U.S. copyright law. If you believe in good faith that any content or material made available in connection with our website or services infringes your copyright, you (or your agent) may send us a notice requesting that the content or material be removed, or access to it blocked. Notices must be sent in writing by email to DMCAnotice@MLSGrid.com. The DMCA requires that your notice of alleged copyright infringement include the following information: (1) description of the copyrighted work that is the subject of claimed infringement; (2) description of the alleged infringing content and information sufficient to permit us to locate the content; (3) contact information for you, including your address, telephone number and email address; (4) a statement by you that you have a good faith belief that the content in the manner complained of is not authorized by the copyright owner, or its agent, or by the operation of any law; (5) a statement by you, signed under penalty of perjury, that the information in the notification is accurate and that you have the authority to enforce the copyrights that are claimed to be infringed; and (6) a physical or electronic signature of the copyright owner or a person authorized to act on the copyright owner’s behalf. Failure to include all of the above information may result in the delay of the processing of your complaint. Listing Information presented by local MLS brokerage: NewHomesMate LLC, DBA Jome (888) 486-2818
Read moreLast checked Dec 6, 9:10 pm
- Home
- New homes
- Florida
- Greater Orlando Area
- Lake County
- Groveland
- Waterstone
- 7420 Sandstone Dr, Groveland, FL 34736






































