














Book your tour. Save an average of $18,473. We'll handle the rest.
- Confirmed tours
- Get matched & compare top deals
- Expert help, no pressure
- No added fees
Estimated value based on Jome data, T&C apply




































































- 2 bd
- 2 ba
- 1,625 sqft
10935 Gable Dig Lp, San Antonio, FL 33576
Why tour with Jome?
- No pressure toursTour at your own pace with no sales pressure
- Expert guidanceGet insights from our home buying experts
- Exclusive accessSee homes and deals not available elsewhere
Jome is featured in
- Single-Family
- Quick move-in
- $169.23/sqft
- $266.97/monthly HOA
Home description
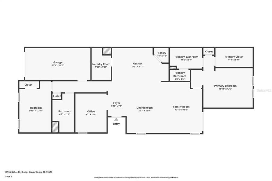
Location, Location, Location! Just steps away from the Clubhouse and Amenity Center! This pristine Pottery Barn inspired Villa with wonderful POND LOT in Medley Active Adult. For those better than 55 years young, presents an exceptional lifestyle just beyond the confines of your home. As a resident, you'll enjoy exclusive Clubhouse access with a full calendar of events daily! You will also enjoy a restaurant & bar, heated pool w/cabanas, ballroom, billiards room, card room, state of the art fitness center, pickleball & tennis courts, bocce ball, yoga, line dancing and private active adult events. PLUS included in your HOA is a 15-acre lagoon membership w/soft, sandy beaches including a swim-up bar, kayaking, paddleboarding, obstacle course, waterslides, corn hole games, and tons of community events! Be sure & invite friends or family to come along with you as you may gift them passes or pay a deeply discounted rate! This immaculate villa will please even the most selective buyers! Comprised of 2 spacious bedrooms, 2 Full Baths + an office/den, and 1 car garage. Your new home includes lots of upgrades including crown molding, quartz countertops throughout, plenty of lighting, stainless appliances and white cabinetry. Sliding glass doors lead to your Lania with a wonderful pond view and extra space between villas. Great spot to sit and relax and enjoy a cup of coffee or glass of wine! As you step inside, you'll be greeted by a seamless flow of open living spaces, making it ideal for both relaxation and entertaining. Get ready to make memories that will last a lifetime! Your dream home awaits; you will be enjoying the CAREFREE FLORIDA RESORT LIFESTYLE in your new home as quickly as you are able to move in! Gorgeous curb appeal on this block villa! Enjoy 42" Cabinets, and Walk-in Pantry in this gorgeous kitchen. Primary Suite includes ensuite bath, dual sinks, and Walk-in Closet to keep you organized, and ceiling fans to keep you cool. High-speed (ULTRAFI) internet, premium cable, yard maintenance & exterior painting and homeowners' insurance for structure are covered by HOA. The location of this residence is equally remarkable, situated in close proximity to premier shopping destinations, and an array of dining options, you'll find yourself immersed in a vibrant community that strikes a perfect balance between exclusivity and convenience. Ride your Golf Cart to the Clubhouse, Publix, restaurants, Farmers Market, Chick-fil-A, Banks, Starbucks, Nail Shops, and more! Close to Advent Health Hospitals, BayCare Hospital, Florida Medical Clinic, Wire Grass Mall, Tampa Premium Outlet Mall, Krate at the Grove, Sam's Club, Costco, Golf Courses & Movie Theater. Easy access to I75, 275, T
FUTURE HOME REALTY INC, MLS TB8435207
Information last verified by Jome: Yesterday at 10:14 AM (December 5, 2025)
Home highlights
Historic Florida park with river rapids, hiking, and camping under towering oaks near Tampa’s northeast suburbs.
Book your tour. Save an average of $18,473. We'll handle the rest.
We collect exclusive builder offers, book your tours, and support you from start to housewarming.
- Confirmed tours
- Get matched & compare top deals
- Expert help, no pressure
- No added fees
Estimated value based on Jome data, T&C apply
Home details
- Property status:
- Move-in ready
- Lot size (acres):
- 0.10
- Size:
- 1,625 sqft
- Stories:
- 1
- Beds:
- 2
- Baths:
- 2
- Garage spaces:
- 1
- Facing direction:
- Southwest
Construction details
- Year Built:
- 2024
- Roof:
- Tile Roofing
Home features & finishes
- Appliances:
- Exhaust FanSprinkler System
- Construction Materials:
- Stucco
- Cooling:
- Ceiling Fan(s)Central Air
- Flooring:
- Carpet FlooringTile Flooring
- Foundation Details:
- Slab
- Garage/Parking:
- GarageAttached Garage
- Interior Features:
- Window TreatmentsWalk-In ClosetCrown MoldingSliding Doors
- Kitchen:
- DishwasherMicrowave OvenOvenRefrigeratorDisposalBuilt-In OvenKitchen Range
- Laundry facilities:
- DryerWasherUtility/Laundry Room
- Lighting:
- Street Lights
- Pets:
- Pets Allowed
- Property amenities:
- SidewalkCabinets
- Rooms:
- Primary Bedroom On MainDen RoomOffice/StudyFamily RoomOpen Concept FloorplanPrimary Bedroom Downstairs
Utility information
- Heating:
- Electric Heating, Water Heater, Central Heating
- Utilities:
- Electricity Available, Underground Utilities, Cable Available, Water Available
Community amenities
- Dog Park
- Playground
- Fitness Center/Exercise Area
- Club House
- Tennis Courts
- Gated Community
- Community Pool
- Park Nearby
- Sidewalks Available
- Waterfront View
Neighborhood
Home address
- City:
- San Antonio
- County:
- Pasco
- Zip Code:
- 33576
Schools in Pasco County School District
- Grades M-MPublickirkland ranch academy of innovation1.9 mi7227 land o lakes blvdna
GreatSchools’ Summary Rating calculation is based on 4 of the school’s themed ratings, including test scores, student/academic progress, college readiness, and equity. This information should only be used as a reference. Jome is not affiliated with GreatSchools and does not endorse or guarantee this information. Please reach out to schools directly to verify all information and enrollment eligibility. Data provided by GreatSchools.org © 2025
Places of interest
Getting around
Air quality
Natural hazards risk
Climate hazards can impact homes and communities, with risks varying by location. These scores reflect the potential impact of natural disasters and climate-related risks on Pasco County
Provided by FEMA

Considering this home?
Our expert will guide your tour, in-person or virtual
Need more information?
Text or call (888) 486-2818
Financials
Similar homes nearby
Recently added communities in this area
Nearby communities in San Antonio
New homes in nearby cities
More New Homes in San Antonio, FL
FUTURE HOME REALTY INC, MLS TB8435207
Based on information submitted to the MLS GRID as of 10/21/2024 2:31 PM CDT. All data is obtained from various sources and may not have been verified by broker or MLS GRID. Supplied Open House Information is subject to change without notice. All information should be independently reviewed and verified for accuracy. Properties may or may not be listed by the office/agent presenting the information. Some IDX listings have been excluded from this website. Properties displayed may be listed or sold by various participants in the MLS. IDX information is provided exclusively for personal, non-commercial use, and may not be used for any purpose other than to identify prospective properties consumers may be interested in purchasing. Information is deemed reliable but not guaranteed. Use of the MLS GRID Data may be subject to an end user license agreement prescribed by the Member Participant’s applicable MLS if any and as amended from time to time. The Digital Millennium Copyright Act of 1998, 17 U.S.C. § 512 (the “DMCA”) provides recourse for copyright owners who believe that material appearing on the Internet infringes their rights under U.S. copyright law. If you believe in good faith that any content or material made available in connection with our website or services infringes your copyright, you (or your agent) may send us a notice requesting that the content or material be removed, or access to it blocked. Notices must be sent in writing by email to DMCAnotice@MLSGrid.com. The DMCA requires that your notice of alleged copyright infringement include the following information: (1) description of the copyrighted work that is the subject of claimed infringement; (2) description of the alleged infringing content and information sufficient to permit us to locate the content; (3) contact information for you, including your address, telephone number and email address; (4) a statement by you that you have a good faith belief that the content in the manner complained of is not authorized by the copyright owner, or its agent, or by the operation of any law; (5) a statement by you, signed under penalty of perjury, that the information in the notification is accurate and that you have the authority to enforce the copyrights that are claimed to be infringed; and (6) a physical or electronic signature of the copyright owner or a person authorized to act on the copyright owner’s behalf. Failure to include all of the above information may result in the delay of the processing of your complaint. Listing Information presented by local MLS brokerage: NewHomesMate LLC, DBA Jome (888) 486-2818
Read moreLast checked Dec 5, 9:10 pm
- Home
- New homes
- Florida
- Tampa Bay Area
- Pasco County
- San Antonio
- 10935 Gable Dig Lp, San Antonio, FL 33576
























