



Book your tour. Save an average of $18,473. We'll handle the rest.
- Confirmed tours
- Get matched & compare top deals
- Expert help, no pressure
- No added fees
Estimated value based on Jome data, T&C apply
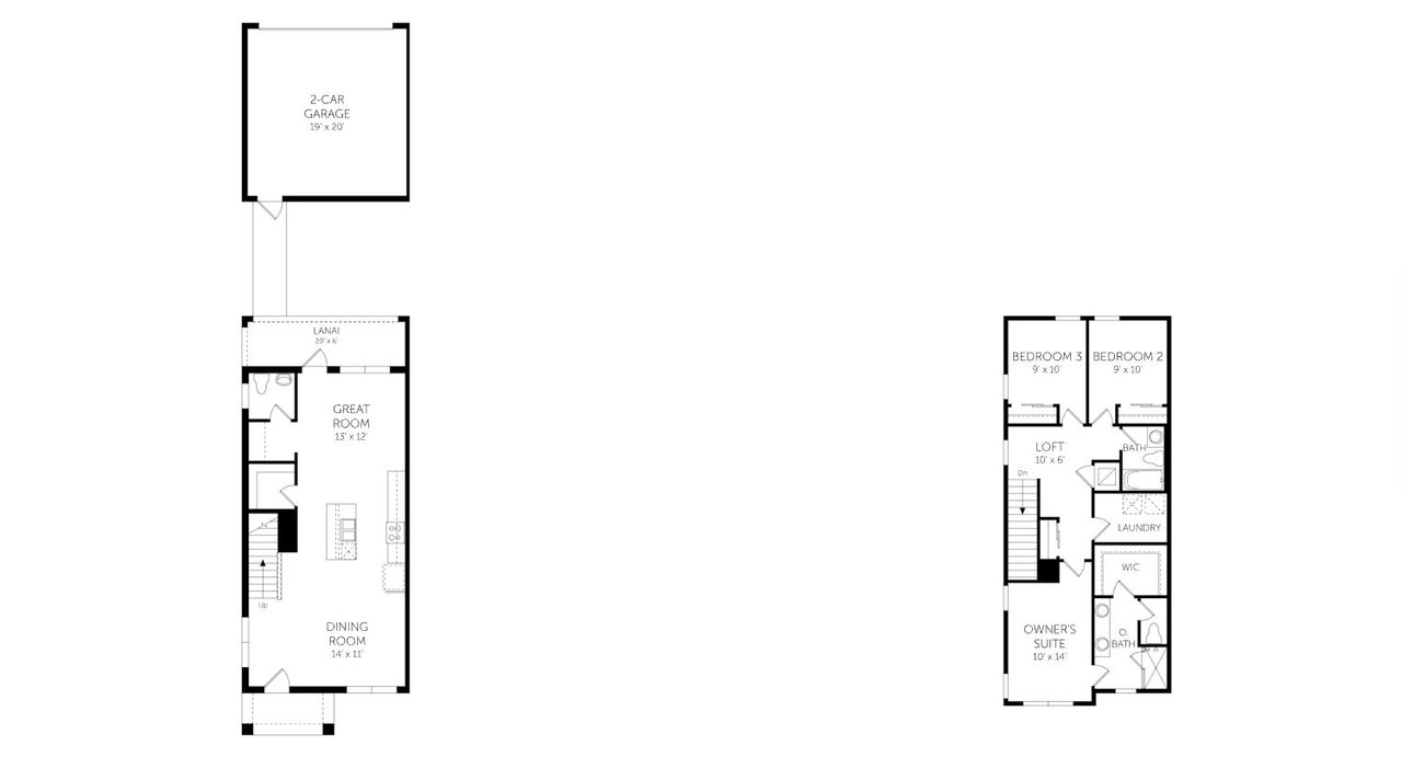
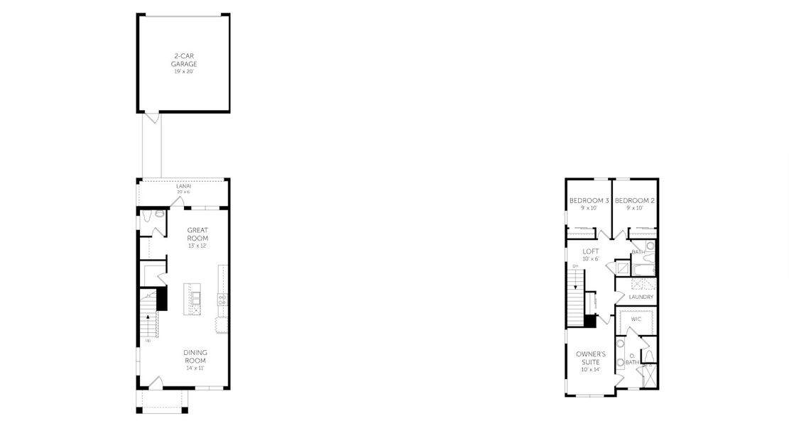
- 3 bd
- 2.5 ba
- 1,644 sqft
13282 Serene Glade Rd, Winter Garden, FL 34787
Why tour with Jome?
- No pressure toursTour at your own pace with no sales pressure
- Expert guidanceGet insights from our home buying experts
- Exclusive accessSee homes and deals not available elsewhere
Jome is featured in
- Townhouse
- Quick move-in
- $278.12/sqft
- $160/monthly HOA
Home description
The Harbor floor plan offers a smartly designed two-story townhome that caters to both convenience and space. With three bedrooms and two and a half bathrooms, this home ensures comfort on every level. All three bedrooms are located upstairs, providing privacy and quiet from the main living areas. The second floor also features a spacious primary suite with a walk-in closet and private bath, alongside two additional bedrooms. Downstairs, the open-concept layout connects the great room to the dining area, making it perfect for entertaining or family gatherings. The covered lanai offers a cozy outdoor retreat, ideal for relaxing at the end of the day. Completing the home is a detached two-car garage, ensuring ample parking and storage. The Harbor floor plan offers modern living tailored to meet everyday needs with style and functionality.
May also be listed on the Dream Finders Homes website
Information last verified by Jome: Monday at 11:30 AM (November 10, 2025)
Home highlights
World-famous Orlando resort with four theme parks, immersive entertainment, and family living nearby.
Book your tour. Save an average of $18,473. We'll handle the rest.
We collect exclusive builder offers, book your tours, and support you from start to housewarming.
- Confirmed tours
- Get matched & compare top deals
- Expert help, no pressure
- No added fees
Estimated value based on Jome data, T&C apply
Home details
- Property status:
- Move-in ready
- Size:
- 1,644 sqft
- Stories:
- 2
- Beds:
- 3
- Baths:
- 2
- Half baths:
- 1
- Garage spaces:
- 2
Construction details
- Builder Name:
- Dream Finders Homes
Home features & finishes
- Garage/Parking:
- Garage
- Interior Features:
- Walk-In ClosetFoyerPantryLoft
- Kitchen:
- Kitchen Island
- Laundry facilities:
- Utility/Laundry Room
- Property amenities:
- LanaiPorch
- Rooms:
- KitchenPowder RoomDining RoomFamily RoomLiving RoomOpen Concept FloorplanPrimary Bedroom Upstairs

Community details
Serenade at Ovation at Ovation
by Dream Finders Homes, Winter Garden, FL
- 30 homes
- 12 plans
- 1,644 - 3,076 sqft
View Serenade at Ovation details
More homes in Serenade at Ovation
Floor plans in Serenade at Ovation
About the builder - Dream Finders Homes
Neighborhood
Home address
- City:
- Winter Garden
- County:
- Orange
- Zip Code:
- 34787
Schools in Orange County School District
GreatSchools’ Summary Rating calculation is based on 4 of the school’s themed ratings, including test scores, student/academic progress, college readiness, and equity. This information should only be used as a reference. Jome is not affiliated with GreatSchools and does not endorse or guarantee this information. Please reach out to schools directly to verify all information and enrollment eligibility. Data provided by GreatSchools.org © 2025
Places of interest
Getting around
Noise level
A Soundscore™ rating is a number between 50 (very loud) and 100 (very quiet) that tells you how loud a location is due to environmental noise.
Natural hazards risk
Climate hazards can impact homes and communities, with risks varying by location. These scores reflect the potential impact of natural disasters and climate-related risks on Orange County
Provided by FEMA

Considering this home?
Our expert will guide your tour, in-person or virtual
Need more information?
Text or call (888) 486-2818
Financials
Estimated monthly payment
Similar homes nearby
Recently added communities in this area
Nearby communities in Winter Garden
New homes in nearby cities
More New Homes in Winter Garden, FL
- Home
- New homes
- Florida
- Greater Orlando Area
- Orange County
- Winter Garden
- Serenade at Ovation
- 13282 Serene Glade Rd, Winter Garden, FL 34787






































