














Book your tour. Save an average of $18,473. We'll handle the rest.
- Confirmed tours
- Get matched & compare top deals
- Expert help, no pressure
- No added fees
Estimated value based on Jome data, T&C apply







- 2 bd
- 3 ba
- 2,301 sqft
1355 S Flagler Dr, Unit 103, West Palm Beach, FL 33401
Why tour with Jome?
- No pressure toursTour at your own pace with no sales pressure
- Expert guidanceGet insights from our home buying experts
- Exclusive accessSee homes and deals not available elsewhere
Jome is featured in
- Condo
- Under construction
- $3250.76/sqft
- $5,085/monthly HOA
Home description
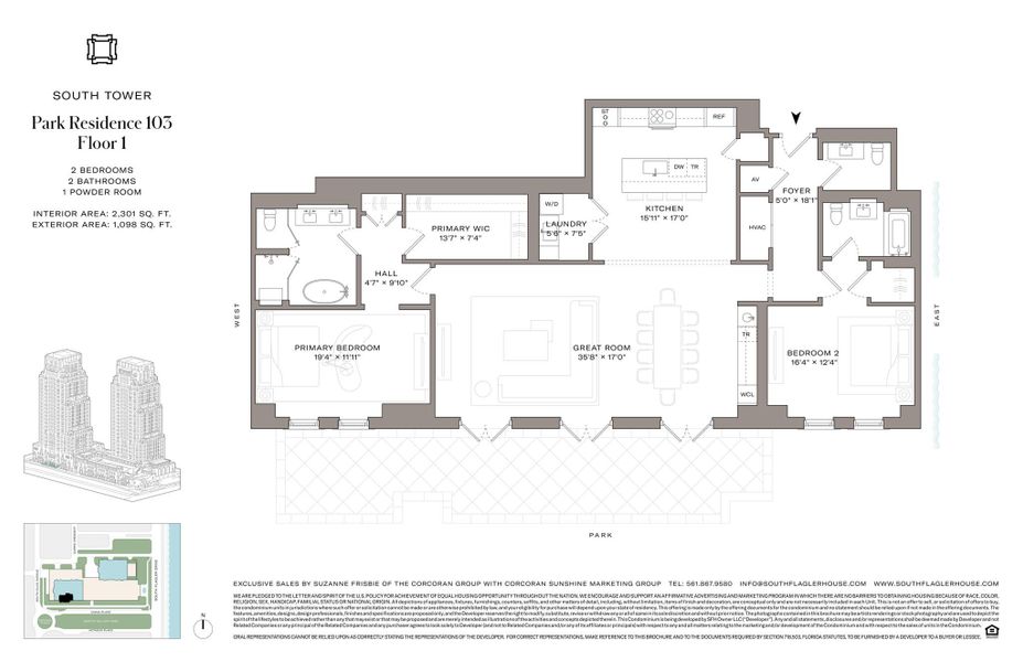
Residence 103 at South Flagler House is a beautifully appointed 2BR, 2.1 BA home designed for refined living. Offers a welcoming foyer, leading to a spacious great room that is perfect for entertaining or relaxing. The residence also features a gourmet kitchen with premium appliances, finishes and abundant storage. The primary suite includes a walk-in closet and a luxurious en suite bath. The secondary bedroom is complemented by a full bathroom. Additional highlights include a dedicated laundry room, and a generously sized, 1098 sqft. south-facing outdoor garden space offering a peaceful retreat overlooking the upcoming Norton Gallery Park.
The Corcoran Group, MLS R11128898
Information last verified by Jome: Today at 10:02 AM (December 30, 2025)
Home highlights
Book your tour. Save an average of $18,473. We'll handle the rest.
We collect exclusive builder offers, book your tours, and support you from start to housewarming.
- Confirmed tours
- Get matched & compare top deals
- Expert help, no pressure
- No added fees
Estimated value based on Jome data, T&C apply
Home details
- Property status:
- Under construction
- Size:
- 2,301 sqft
- Stories:
- 28
- Beds:
- 2
- Baths:
- 3
- Half baths:
- 1
- Garage spaces:
- 2
Construction details
- Year Built:
- 2027
Home features & finishes
- Appliances:
- Ice Maker
- Cooling:
- Central Air
- Flooring:
- Wood FlooringMarble FlooringHardwood Flooring
- Garage/Parking:
- Garage
- Interior Features:
- Walk-In ClosetFoyerPantryWet Bar
- Kitchen:
- DishwasherMicrowave OvenOvenRefrigeratorDisposalGas CooktopBuilt-In OvenGas OvenKitchen Range
- Laundry facilities:
- DryerWasher
- Security system:
- Fire Sprinkler SystemSecurity SystemSmoke Detector

Get a consultation with our New Homes Expert
- See how your home builds wealth
- Plan your home-buying roadmap
- Discover hidden gems
Utility information
- Heating:
- Zoned Heating, Water Heater, Central Heating
- Utilities:
- Electricity Available, Cable Available
Community amenities
- Gated Community
- Community Pool
- Game Room/Area
- Spa Zone
- Sauna
- Lifestyle Director
- Waterfront View
- Pickleball Court
Neighborhood
Home address
- City:
- West Palm Beach
- County:
- Palm Beach
- Zip Code:
- 33401
Schools in Palm Beach County School District
- Grades PK-KGPrivatenew generation montessori wpb0.4 mi1309 georgia avena
- Grades 01-07Privatethe bilgrav school0.7 mi307 evernia st 2nd flna
GreatSchools’ Summary Rating calculation is based on 4 of the school’s themed ratings, including test scores, student/academic progress, college readiness, and equity. This information should only be used as a reference. Jome is not affiliated with GreatSchools and does not endorse or guarantee this information. Please reach out to schools directly to verify all information and enrollment eligibility. Data provided by GreatSchools.org © 2025
Places of interest
Getting around
4 nearby routes: 4 bus, 0 rail, 0 otherNoise level
A Soundscore™ rating is a number between 50 (very loud) and 100 (very quiet) that tells you how loud a location is due to environmental noise.
Natural hazards risk
Climate hazards can impact homes and communities, with risks varying by location. These scores reflect the potential impact of natural disasters and climate-related risks on Palm Beach County
Provided by FEMA

Considering this home?
Our expert will guide your tour, in-person or virtual
Need more information?
Text or call (888) 486-2818
Financials
Let us help you find your dream home
How many bedrooms are you looking for?
Similar homes nearby
Recently added communities in this area
Nearby communities in West Palm Beach
New homes in nearby cities
More New Homes in West Palm Beach, FL
The Corcoran Group, MLS R11128898
All listings featuring the BMLS logo are provided by BeachesMLS, Inc. This information is not verified for authenticity or accuracy and is not guaranteed. Information is provided exclusively for consumers’ personal, non-commercial use and may not be used for any purpose other than to identify prospective properties consumers may be interested in purchasing. Copyright © 2025 BeachesMLS, Inc.
Read moreLast checked Dec 30, 6:00 pm
- Jome
- New homes search
- Florida
- Miami Metropolitan Area
- Palm Beach County
- West Palm Beach
- 1355 S Flagler Dr, Unit 103, West Palm Beach, FL 33401


























