














Book your tour. Save an average of $18,473. We'll handle the rest.
- Confirmed tours
- Get matched & compare top deals
- Expert help, no pressure
- No added fees
Estimated value based on Jome data, T&C apply

















- 4 bd
- 2.5 ba
- 2,143 sqft
4743 Yellow Elder Wy, Kissimmee, FL 34758
Why tour with Jome?
- No pressure toursTour at your own pace with no sales pressure
- Expert guidanceGet insights from our home buying experts
- Exclusive accessSee homes and deals not available elsewhere
Jome is featured in
- Single-Family
- $175.92/sqft
- $125/monthly HOA
- Northwest facing
Home description
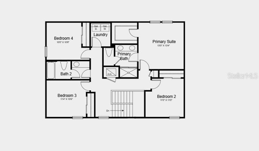
New Construction - September Completion! Built by Taylor Morrison, America's Most Trusted Homebuilder. Welcome to the Redbud at 4743 Yellow Elder Way in Aden South at Westview! This thoughtfully designed new home offers a bright and open main floor with elegant tile flooring throughout, creating a seamless flow from the foyer to the dining area and great room. The chef-inspired kitchen features gleaming quartz countertops, a spacious walk-in pantry, and direct access to the patio, perfect for enjoying Florida’s indoor/outdoor lifestyle. Upstairs, you’ll find three comfortable secondary bedrooms that share a full bath, along with a peaceful primary suite complete with a walk-in closet and a beautifully appointed bathroom. The laundry room is conveniently located on the second floor for everyday ease. Life at Aden South at Westview means waking up to the sounds of nature and being surrounded by protected wetlands, forested uplands, and miles of scenic trails, ponds, and open spaces. Located near Poinciana Parkway in Kissimmee, you’re close to Lake Toho, Kissimmee Lakefront Park, Old Town, Walt Disney World, and more. The community also features The Hub, a planned amenity center with a state-of-the-art fitness studio, rock climbing wall, sports courts, pet park, and a resort-style pool, bringing modern living and natural beauty together in perfect harmony. Additional Highlights Include: All appliances, washer and dryer, and whole house blinds. Photos are for representative purposes only. MLS#O6341369
TAYLOR MORRISON REALTY OF FLORIDA INC, MLS O6341369
May also be listed on the Taylor Morrison website
Information last verified by Jome: Yesterday at 10:06 AM (December 7, 2025)
Home highlights
Nature preserve in Kissimmee with boardwalks, paddling trails, and historic sites near family-friendly neighborhoods.
Book your tour. Save an average of $18,473. We'll handle the rest.
We collect exclusive builder offers, book your tours, and support you from start to housewarming.
- Confirmed tours
- Get matched & compare top deals
- Expert help, no pressure
- No added fees
Estimated value based on Jome data, T&C apply
Home details
- Property status:
- Pending/Under contract
- Lot size (acres):
- 0.18
- Size:
- 2,143 sqft
- Stories:
- 2
- Beds:
- 4
- Baths:
- 2.5
- Garage spaces:
- 2
- Facing direction:
- Northwest
Construction details
- Builder Name:
- Taylor Morrison
- Completion Date:
- September, 2025
- Year Built:
- 2025
- Roof:
- Shingle Roofing
Home features & finishes
- Appliances:
- Sprinkler System
- Construction Materials:
- StuccoBlockCement
- Cooling:
- Central Air
- Flooring:
- Carpet FlooringTile Flooring
- Foundation Details:
- Slab
- Garage/Parking:
- Door OpenerGarageAttached Garage
- Home amenities:
- Internet
- Interior Features:
- Ceiling-HighWindow TreatmentsWalk-In ClosetFoyerPantrySliding DoorsLoft
- Kitchen:
- DishwasherMicrowave OvenRefrigeratorDisposalKitchen Range
- Laundry facilities:
- DryerWasherLaundry Facilities In ClosetUtility/Laundry Room
- Pets:
- Pets Allowed
- Property amenities:
- PatioPorch
- Rooms:
- KitchenGuest RoomDining RoomFamily RoomOpen Concept FloorplanPrimary Bedroom Upstairs
Utility information
- Heating:
- Water Heater, Central Heating
- Utilities:
- Electricity Available, Internet-Fiber, Cable Available, Water Available

Community details
Aden South at Westview
by Taylor Morrison, Kissimmee, FL
- 2 homes
- 1,455 - 2,106 sqft
View Aden South at Westview details
Community amenities
- Dog Park
- Playground
- Fitness Center/Exercise Area
- Club House
- Gated Community
- Community Pool
- Park Nearby
- Wheelchair Adapted
- Sidewalks Available
- Waterfront View
More homes in Aden South at Westview
About the builder - Taylor Morrison
Neighborhood
Home address
Schools in Osceola County School District
GreatSchools’ Summary Rating calculation is based on 4 of the school’s themed ratings, including test scores, student/academic progress, college readiness, and equity. This information should only be used as a reference. Jome is not affiliated with GreatSchools and does not endorse or guarantee this information. Please reach out to schools directly to verify all information and enrollment eligibility. Data provided by GreatSchools.org © 2025
Places of interest
Getting around
Air quality
Natural hazards risk
Climate hazards can impact homes and communities, with risks varying by location. These scores reflect the potential impact of natural disasters and climate-related risks on Osceola County
Provided by FEMA

Considering this home?
Our expert will guide your tour, in-person or virtual
Need more information?
Text or call (888) 486-2818
Financials
Estimated monthly payment
Similar homes nearby
Recently added communities in this area
Nearby communities in Kissimmee
New homes in nearby cities
More New Homes in Kissimmee, FL
TAYLOR MORRISON REALTY OF FLORIDA INC, MLS O6341369
Based on information submitted to the MLS GRID as of 10/21/2024 2:31 PM CDT. All data is obtained from various sources and may not have been verified by broker or MLS GRID. Supplied Open House Information is subject to change without notice. All information should be independently reviewed and verified for accuracy. Properties may or may not be listed by the office/agent presenting the information. Some IDX listings have been excluded from this website. Properties displayed may be listed or sold by various participants in the MLS. IDX information is provided exclusively for personal, non-commercial use, and may not be used for any purpose other than to identify prospective properties consumers may be interested in purchasing. Information is deemed reliable but not guaranteed. Use of the MLS GRID Data may be subject to an end user license agreement prescribed by the Member Participant’s applicable MLS if any and as amended from time to time. The Digital Millennium Copyright Act of 1998, 17 U.S.C. § 512 (the “DMCA”) provides recourse for copyright owners who believe that material appearing on the Internet infringes their rights under U.S. copyright law. If you believe in good faith that any content or material made available in connection with our website or services infringes your copyright, you (or your agent) may send us a notice requesting that the content or material be removed, or access to it blocked. Notices must be sent in writing by email to DMCAnotice@MLSGrid.com. The DMCA requires that your notice of alleged copyright infringement include the following information: (1) description of the copyrighted work that is the subject of claimed infringement; (2) description of the alleged infringing content and information sufficient to permit us to locate the content; (3) contact information for you, including your address, telephone number and email address; (4) a statement by you that you have a good faith belief that the content in the manner complained of is not authorized by the copyright owner, or its agent, or by the operation of any law; (5) a statement by you, signed under penalty of perjury, that the information in the notification is accurate and that you have the authority to enforce the copyrights that are claimed to be infringed; and (6) a physical or electronic signature of the copyright owner or a person authorized to act on the copyright owner’s behalf. Failure to include all of the above information may result in the delay of the processing of your complaint. Listing Information presented by local MLS brokerage: NewHomesMate LLC, DBA Jome (888) 486-2818
Read moreLast checked Dec 8, 3:10 am
- Home
- New homes
- Florida
- Greater Orlando Area
- Osceola County
- Kissimmee
- Aden South at Westview
- 4743 Yellow Elder Wy, Kissimmee, FL 34758




























