














Book your tour. Save an average of $18,473. We'll handle the rest.
- Confirmed tours
- Get matched & compare top deals
- Expert help, no pressure
- No added fees
Estimated value based on Jome data, T&C apply

































- 3 bd
- 2 ba
- 1,613 sqft
3368 Fernleaf Dr, Hernando Beach, FL 34607
Why tour with Jome?
- No pressure toursTour at your own pace with no sales pressure
- Expert guidanceGet insights from our home buying experts
- Exclusive accessSee homes and deals not available elsewhere
Jome is featured in
- Single-Family
- Quick move-in
- $309.98/sqft
- West facing
Home description
MOVE IN READY, NEW CONSTRUCTION HOME WITH PRIVATE BOAT RAMP & DRIVE-THROUGH GARAGE AND BUILDER WARRANTY!
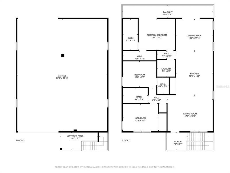
Experience the perfect blend of coastal charm and modern elegance in this open-concept 3 bedroom, 2 bath split-floorplan waterfront home. Designed for the boating lifestyle, the ground level provides expansive parking for 4+ vehicles, plus space for a game room, workshop, or endless possibilities. With double garage doors, you can conveniently drive a boat through the first level directly onto your private boat ramp.
Upstairs, the gourmet kitchen features white shaker cabinets, stainless steel appliances, quartz countertops, and a spacious eat-in island. The kitchen flows seamlessly into the bright living room with slider access to the balcony, while the front room serves perfectly as a dining space or flexible bonus area.
The primary suite offers a large walk-in closet, private porch access, and an en-suite bath with a double vanity and glass-enclosed shower. Two oversized guest bedrooms share a stylish bath with a tub/shower combo, ideal for family or visitors.
Just minutes from the boat lift, this property combines modern finishes, versatile space, and a true waterfront lifestyle.
Home is constructed on pilings with break away walls and impact windows and doors.
Hernando Beach is a vibrant waterfront community that offers the best of coastal living—boating, kayaking, paddleboarding, fishing, and more. Just minutes from the world-famous Weeki Wachee Springs, residents also enjoy close proximity to shopping, dining, and hospitals. The community is golf cart friendly and allows short-term rentals with no HOA, no deed restrictions, making it perfect for full-time residents, part-time snowbirds, or investors. The Suncoast Parkway offers easy commuting to Tampa, Brooksville, and beyond. This is your chance to own a piece of paradise.
JT REALTY & ASSOCIATES, MLS TB8422226
Information last verified by Jome: Today at 10:17 AM (December 27, 2025)
Home highlights
Book your tour. Save an average of $18,473. We'll handle the rest.
We collect exclusive builder offers, book your tours, and support you from start to housewarming.
- Confirmed tours
- Get matched & compare top deals
- Expert help, no pressure
- No added fees
Estimated value based on Jome data, T&C apply
Home details
- Property status:
- Move-in ready
- Lot size (acres):
- 0.11
- Size:
- 1,613 sqft
- Stories:
- 2
- Beds:
- 3
- Baths:
- 2
- Garage spaces:
- 4
- Facing direction:
- West
Construction details
- Year Built:
- 2025
- Roof:
- Shingle Roofing
Home features & finishes
- Construction Materials:
- StuccoWood Frame
- Cooling:
- Central Air
- Flooring:
- Vinyl Flooring
- Garage/Parking:
- GarageRear Entry Garage/ParkingAttached Garage
- Interior Features:
- Ceiling-HighCeiling-Vaulted
- Kitchen:
- DishwasherMicrowave OvenRefrigeratorKitchen Range
- Lighting:
- Exterior Lighting
- Pets:
- Pets Allowed
- Property amenities:
- CabinetsPorch
- Rooms:
- Dining RoomFamily RoomLiving RoomOpen Concept Floorplan

Get a consultation with our New Homes Expert
- See how your home builds wealth
- Plan your home-buying roadmap
- Discover hidden gems
Utility information
- Heating:
- Central Heating
- Utilities:
- Electricity Available, Cable Available, Water Available
Community amenities
- Canal
- Waterfront View
Neighborhood
Home address
- City:
- Hernando Beach
- County:
- Hernando
- Zip Code:
- 34607
Schools in Hernando County School District
- Grades PK-12Privatewest hernando christian school1.8 mi2250 osowaw blvdna
- Grades PK-12Privategrace education academy llc3.8 mi5408 patricia plna
GreatSchools’ Summary Rating calculation is based on 4 of the school’s themed ratings, including test scores, student/academic progress, college readiness, and equity. This information should only be used as a reference. Jome is not affiliated with GreatSchools and does not endorse or guarantee this information. Please reach out to schools directly to verify all information and enrollment eligibility. Data provided by GreatSchools.org © 2025
Places of interest
Getting around
Air quality
Natural hazards risk
Climate hazards can impact homes and communities, with risks varying by location. These scores reflect the potential impact of natural disasters and climate-related risks on Hernando County
Provided by FEMA

Considering this home?
Our expert will guide your tour, in-person or virtual
Need more information?
Text or call (888) 486-2818
Financials
Let us help you find your dream home
How many bedrooms are you looking for?
Similar homes nearby
Recently added communities in this area
Nearby communities in Hernando Beach
New homes in nearby cities
More New Homes in Hernando Beach, FL
JT REALTY & ASSOCIATES, MLS TB8422226
Based on information submitted to the MLS GRID as of 10/21/2024 2:31 PM CDT. All data is obtained from various sources and may not have been verified by broker or MLS GRID. Supplied Open House Information is subject to change without notice. All information should be independently reviewed and verified for accuracy. Properties may or may not be listed by the office/agent presenting the information. Some IDX listings have been excluded from this website. Properties displayed may be listed or sold by various participants in the MLS. IDX information is provided exclusively for personal, non-commercial use, and may not be used for any purpose other than to identify prospective properties consumers may be interested in purchasing. Information is deemed reliable but not guaranteed. Use of the MLS GRID Data may be subject to an end user license agreement prescribed by the Member Participant’s applicable MLS if any and as amended from time to time. The Digital Millennium Copyright Act of 1998, 17 U.S.C. § 512 (the “DMCA”) provides recourse for copyright owners who believe that material appearing on the Internet infringes their rights under U.S. copyright law. If you believe in good faith that any content or material made available in connection with our website or services infringes your copyright, you (or your agent) may send us a notice requesting that the content or material be removed, or access to it blocked. Notices must be sent in writing by email to DMCAnotice@MLSGrid.com. The DMCA requires that your notice of alleged copyright infringement include the following information: (1) description of the copyrighted work that is the subject of claimed infringement; (2) description of the alleged infringing content and information sufficient to permit us to locate the content; (3) contact information for you, including your address, telephone number and email address; (4) a statement by you that you have a good faith belief that the content in the manner complained of is not authorized by the copyright owner, or its agent, or by the operation of any law; (5) a statement by you, signed under penalty of perjury, that the information in the notification is accurate and that you have the authority to enforce the copyrights that are claimed to be infringed; and (6) a physical or electronic signature of the copyright owner or a person authorized to act on the copyright owner’s behalf. Failure to include all of the above information may result in the delay of the processing of your complaint. Listing Information presented by local MLS brokerage: NewHomesMate LLC, DBA Jome (888) 486-2818
Read moreLast checked Dec 27, 9:10 pm
- Jome
- New homes search
- Florida
- Tampa Bay Area
- Hernando County
- Hernando Beach
- 3368 Fernleaf Dr, Hernando Beach, FL 34607
























