











































- 3 bd
- 2 ba
- 1,944 sqft
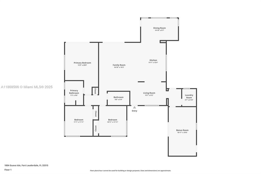
1004 Guava Isle Ft, Fort Lauderdale, FL 33315
- Single-Family
- $919.75/sqft
- Northwest facing
- 0.18-acre lot
New Homes for Sale Near 1004 Guava Isle Ft, Fort Lauderdale, FL 33315
About this Home
Welcome to 1004 Guava Isle, a fully reimagined waterfront home with 75 ft of frontage, private dock, brand-new infinity design pool + deck, and Direct Ocean Access, NO FIXED BRIDGES. The only area in Broward County with this feature. DEEPEST CANAL in the area. This Home was completely gutted and Major construction in 2025 includes all-new metal roof (up to 50 yrs), plumbing, electrical, flooring, all drywall & insulation, designer kitchen +spa like baths, and custom closets. Impact Windows and doors and Luxury Finishes throughout. The sunlit open concept integrates kitchen, dining, and living areas with seamless views of the canal, pool, and your boat. Extra room doubles as family room, office, or 4th bedroom. This is the one! — move-in ready for modern waterfront living.
Keller Williams Capital Realty, MLS A11868566
Information last verified by Jome: Today at 12:04 AM (December 8, 2025)
Home details
- Property status:
- Sold
- Neighborhood:
- River Oaks
- Lot size (acres):
- 0.18
- Size:
- 1,944 sqft
- Stories:
- 1
- Beds:
- 3
- Baths:
- 2
- Garage spaces:
- 2
- Facing direction:
- Northwest
Construction details
- Year Built:
- 2025
- Roof:
- Metal Roofing
Home features & finishes
- Appliances:
- Ice Maker
- Cooling:
- Central Air
- Flooring:
- Tile Flooring
- Garage/Parking:
- Garage
- Interior Features:
- Library
- Kitchen:
- DishwasherMicrowave OvenOvenRefrigeratorDisposal
- Laundry facilities:
- DryerWasher
- Property amenities:
- DeckCabinets
- Rooms:
- Primary Bedroom On MainDen RoomOffice/StudyFamily RoomPrimary Bedroom Downstairs
- Security system:
- Fire Alarm SystemSmoke Detector
Utility information
- Heating:
- Water Heater, Central Heating
Community amenities
- Sidewalks Available
- Garden View
- Waterfront View
Neighborhood
Home address
- City:
- Fort Lauderdale
- County:
- Broward
- Zip Code:
- 33315
Schools in Broward County School District
GreatSchools’ Summary Rating calculation is based on 4 of the school’s themed ratings, including test scores, student/academic progress, college readiness, and equity. This information should only be used as a reference. Jome is not affiliated with GreatSchools and does not endorse or guarantee this information. Please reach out to schools directly to verify all information and enrollment eligibility. Data provided by GreatSchools.org © 2025
Places of interest
Getting around
5 nearby routes: 5 bus, 0 rail, 0 otherNatural hazards risk
Climate hazards can impact homes and communities, with risks varying by location. These scores reflect the potential impact of natural disasters and climate-related risks on Broward County
Provided by FEMA
Financials
Nearby communities in Fort Lauderdale
Homes in Fort Lauderdale Neighborhoods
- Coral Ridge
- Central Beach Alliance
- Victoria Park
- Hendricks And Venice Isles
- Poinsettia Heights
- Harbor Beach
- Sailboat Bend
- Downtown
- Flagler Heights
- Rio Vista
- Las Olas Isles
- River Oaks
- Tarpon River
- Croissant Park
- South Middle River
- Sunrise Intracoastal
- Poinciana Park
- Lake Ridge
- Harbordale
- Colee Hammock
- Palm-Aire Village (East)
- Dorsey-Riverbend
- Coral Ridge Country Club
- Lauderdale Harbours
- Harbor Drive
- Seven Isles
- Riverland Woods
- Riviera Isles
- Harbour Inlet
- Rock Island
- Durrs Homeowners
- Lauderdale Beach
- Nurmi Isles
- Dolphin Isles
- Birch Park Finger Sts.
- Landings
- Laudergate Isles
- Idlewyld
- Chula Vista
- Bal Harbour
- Riverside Park
- Shady Banks
Recently added communities in this area
Other Builders in Fort Lauderdale, FL
Nearby sold homes
New homes in nearby cities
More New Homes in Fort Lauderdale, FL
Keller Williams Capital Realty, MLS A11868566
IDX information is provided exclusively for personal, non-commercial use, and may not be used for any purpose other than to identify prospective properties consumers may be interested in purchasing. Information is deemed reliable but not guaranteed.
Read moreLast checked Dec 8, 6:20 am
- Home
- New homes
- Florida
- Miami Metropolitan Area
- Broward County
- Fort Lauderdale
- 1004 Guava Isle Ft, Fort Lauderdale, FL 33315






















































