














Book your tour. Save an average of $18,473. We'll handle the rest.
- Confirmed tours
- Get matched & compare top deals
- Expert help, no pressure
- No added fees
Estimated value based on Jome data, T&C apply










- 2 bd
- 2.5 ba
- 1,178 sqft
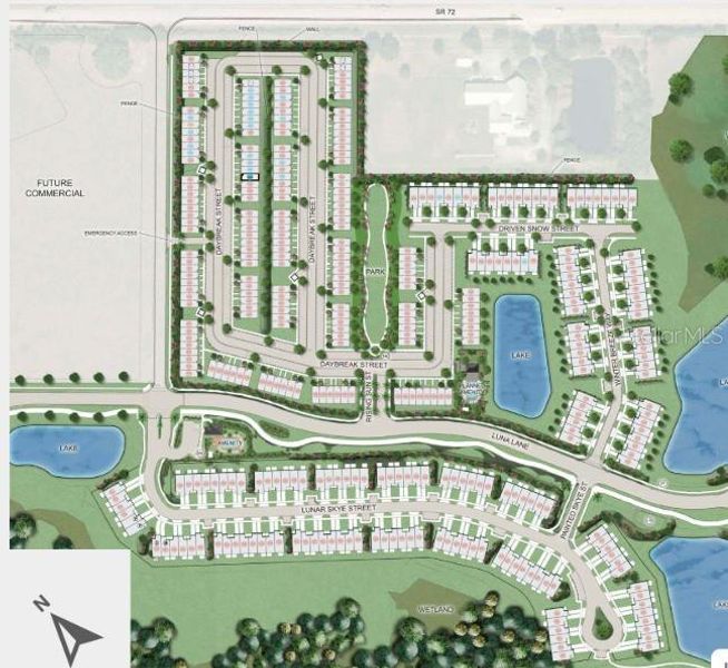
8720 Daybreak St, Sarasota, FL 34241
Why tour with Jome?
- No pressure toursTour at your own pace with no sales pressure
- Expert guidanceGet insights from our home buying experts
- Exclusive accessSee homes and deals not available elsewhere
Jome is featured in
- Townhouse
- Quick move-in
- $212.14/sqft
- $500/quarterly HOA
Home description
What's Special: Close to Park | Close to Amenity | Close to Trails | Second Floor Laundry Room. New Construction - Ready Now! Built by Taylor Morrison, America's Most Trusted Homebuilder. Welcome to the Ivy at 8720 Daybreak Street in The Townhomes at Skye Ranch! This floorplan offers thoughtful design with plenty of space to live and grow. Step inside to find a welcoming foyer that leads to a bright kitchen with a large pantry and convenient half bath. The open dining area flows into the great room, perfect for gathering, and just beyond, an outdoor lanai invites you to relax. Upstairs, retreat to the private primary suite with a spa-inspired bath featuring dual sinks and a walk-in shower. You’ll also find a second bedroom with its own ensuite and a nearby laundry for easy living. Skye Ranch is a special place in the heart of Sarasota, where natural beauty meets modern living. Surrounded by grand oaks, lush palms, pristine lakes, and forested wetlands, this community offers endless opportunities to explore, experience, and enjoy life. Additional Highlights Include: Whole house blinds. Photos are for representative purposes only. MLS# A4663150
TAYLOR MORRISON RLTY OF FLA, MLS A4663150
May also be listed on the Taylor Morrison website
Information last verified by Jome: Today at 10:24 AM (December 19, 2025)
Home highlights
Book your tour. Save an average of $18,473. We'll handle the rest.
We collect exclusive builder offers, book your tours, and support you from start to housewarming.
- Confirmed tours
- Get matched & compare top deals
- Expert help, no pressure
- No added fees
Estimated value based on Jome data, T&C apply
Home details
- Property status:
- Move-in ready
- Size:
- 1,178 sqft
- Stories:
- 2
- Beds:
- 2
- Baths:
- 2
- Half baths:
- 1
- Facing direction:
- West
Construction details
- Builder Name:
- Taylor Morrison
- Completion Date:
- October, 2025
- Year Built:
- 2025
- Roof:
- Shingle Roofing
Home features & finishes
- Appliances:
- Sprinkler System
- Construction Materials:
- BlockVinyl Siding
- Cooling:
- Central Air
- Flooring:
- Carpet FlooringTile Flooring
- Foundation Details:
- Slab
- Garage/Parking:
- Assigned parking
- Interior Features:
- Ceiling-HighWindow TreatmentsWalk-In ClosetShutters
- Kitchen:
- DishwasherMicrowave OvenRefrigeratorKitchen Range
- Laundry facilities:
- Laundry Facilities On Upper LevelDryerWasherUtility/Laundry Room
- Pets:
- Pets AllowedPets Allowed with Breed Restrictions
- Property amenities:
- PatioPorch
- Rooms:
- Family RoomOpen Concept Floorplan
Utility information
- Heating:
- Water Heater, Central Heating
- Utilities:
- Electricity Available, Underground Utilities, Cable Available, Water Available
Community amenities
- Dog Park
- Playground
- Tennis Courts
- Community Pool
- Park Nearby
- Fishing Pond
- Sidewalks Available
About the builder - Taylor Morrison
Neighborhood
Home address
Schools in Sarasota County School District
GreatSchools’ Summary Rating calculation is based on 4 of the school’s themed ratings, including test scores, student/academic progress, college readiness, and equity. This information should only be used as a reference. Jome is not affiliated with GreatSchools and does not endorse or guarantee this information. Please reach out to schools directly to verify all information and enrollment eligibility. Data provided by GreatSchools.org © 2025
Places of interest
Getting around
Air quality
Natural hazards risk
Climate hazards can impact homes and communities, with risks varying by location. These scores reflect the potential impact of natural disasters and climate-related risks on Sarasota County
Provided by FEMA

Considering this home?
Our expert will guide your tour, in-person or virtual
Need more information?
Text or call (888) 486-2818
Financials
Similar homes nearby
Recently added communities in this area
Nearby communities in Sarasota
New homes in nearby cities
More New Homes in Sarasota, FL
TAYLOR MORRISON RLTY OF FLA, MLS A4663150
Based on information submitted to the MLS GRID as of 10/21/2024 2:31 PM CDT. All data is obtained from various sources and may not have been verified by broker or MLS GRID. Supplied Open House Information is subject to change without notice. All information should be independently reviewed and verified for accuracy. Properties may or may not be listed by the office/agent presenting the information. Some IDX listings have been excluded from this website. Properties displayed may be listed or sold by various participants in the MLS. IDX information is provided exclusively for personal, non-commercial use, and may not be used for any purpose other than to identify prospective properties consumers may be interested in purchasing. Information is deemed reliable but not guaranteed. Use of the MLS GRID Data may be subject to an end user license agreement prescribed by the Member Participant’s applicable MLS if any and as amended from time to time. The Digital Millennium Copyright Act of 1998, 17 U.S.C. § 512 (the “DMCA”) provides recourse for copyright owners who believe that material appearing on the Internet infringes their rights under U.S. copyright law. If you believe in good faith that any content or material made available in connection with our website or services infringes your copyright, you (or your agent) may send us a notice requesting that the content or material be removed, or access to it blocked. Notices must be sent in writing by email to DMCAnotice@MLSGrid.com. The DMCA requires that your notice of alleged copyright infringement include the following information: (1) description of the copyrighted work that is the subject of claimed infringement; (2) description of the alleged infringing content and information sufficient to permit us to locate the content; (3) contact information for you, including your address, telephone number and email address; (4) a statement by you that you have a good faith belief that the content in the manner complained of is not authorized by the copyright owner, or its agent, or by the operation of any law; (5) a statement by you, signed under penalty of perjury, that the information in the notification is accurate and that you have the authority to enforce the copyrights that are claimed to be infringed; and (6) a physical or electronic signature of the copyright owner or a person authorized to act on the copyright owner’s behalf. Failure to include all of the above information may result in the delay of the processing of your complaint. Listing Information presented by local MLS brokerage: NewHomesMate LLC, DBA Jome (888) 486-2818
Read moreLast checked Dec 19, 10:25 am
- Jome
- New homes search
- Florida
- Sarasota County
- Sarasota
- 8720 Daybreak St, Sarasota, FL 34241


























