














Book your tour. Save an average of $18,473. We'll handle the rest.
- Confirmed tours
- Get matched & compare top deals
- Expert help, no pressure
- No added fees
Estimated value based on Jome data, T&C apply



































































- 9 bd
- 10.5 ba
- 6,385 sqft
1276 Grand Traverse Pkwy, Reunion, FL 34747
Why tour with Jome?
- No pressure toursTour at your own pace with no sales pressure
- Expert guidanceGet insights from our home buying experts
- Exclusive accessSee homes and deals not available elsewhere
Jome is featured in
- Single-Family
- Quick move-in
- $544.87/sqft
- $577.95/monthly HOA
Home description
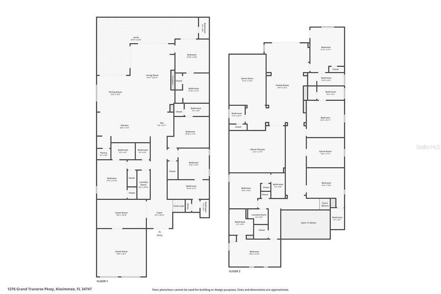
Luxe Retreat is a premier nine-bedroom villa in Reunion Resort, crafted to captivate discerning vacationers and maximize returns. This expansive estate blends opulent design with turnkey investment potential, designed to command top nightly rates and robust occupancy. The home offers nine full bedrooms, nine full baths, and three half-baths, with three uniquely themed rooms that enhance occupancy, social media appeal, and rate optimization. Each bedroom features its own en-suite bathroom to ensure privacy and convenience, while the open-concept living space showcases soaring ceilings, abundant natural light, and high-end furnishings for a warm, inviting atmosphere. The chef-ready kitchen is equipped with state-of-the-art appliances, quartz countertops, and custom cabinetry, providing a premium guest experience and streamlined property management.
Three distinct themed bedrooms deliver immersive, memorable stays that resonate with guests, while the exceptional entertainment suite elevates the experience further: a full game room with arcade, a basketball court with 16-foot ceilings, a hidden game room for exclusive discoveries, a private theater with plush reclining seating and a large screen, and a high-tech golf simulator. Outdoor amenities include a private pool with dual sun decks and a cozy fire pit, offering multiple settings to lounge, entertain, and create lasting moments with family and friends.
Located in Reunion Resort, Luxe Retreat provides access to world-class amenities such as championship golf courses, resort pools, dining, water parks, and spa facilities. Its proximity to Orlando’s major attractions, including Disney World, ensures strong year-round demand and premium rental rates. This estate represents a compelling investment in the thriving vacation rental market, backed by premium finishes, a prime location, and versatile use as a flagship short-term rental, a luxury second home, or a strategic addition to a real estate portfolio. Whether you’re seeking high-yield income or a prestigious luxury property, Luxe Retreat offers exceptional value, durability, and growth potential.
Luxe Retreat represents a compelling blend of elegance, entertainment, and economics. If you’re seeking a standout luxury property with potential for premium occupancy and strong returns, this estate delivers exceptional value, durability, and ongoing growth opportunities.
THE JERRY BARKER GROUP LLC, MLS O6332017
Information last verified by Jome: Yesterday at 10:09 AM (December 5, 2025)
Home highlights
World-famous Orlando resort with four theme parks, immersive entertainment, and family living nearby.
Book your tour. Save an average of $18,473. We'll handle the rest.
We collect exclusive builder offers, book your tours, and support you from start to housewarming.
- Confirmed tours
- Get matched & compare top deals
- Expert help, no pressure
- No added fees
Estimated value based on Jome data, T&C apply
Home details
- Property status:
- Move-in ready
- Lot size (acres):
- 0.22
- Size:
- 6,385 sqft
- Stories:
- 2
- Beds:
- 9
- Baths:
- 10
- Half baths:
- 3
- Facing direction:
- East
Construction details
- Year Built:
- 2024
- Roof:
- Tile Roofing
Home features & finishes
- Construction Materials:
- StuccoWood FrameBlock
- Cooling:
- Ceiling Fan(s)Central Air
- Flooring:
- Tile Flooring
- Foundation Details:
- Slab
- Interior Features:
- Ceiling-HighWindow TreatmentsSliding Doors
- Kitchen:
- DishwasherMicrowave OvenOvenRefrigeratorDisposalBuilt-In OvenCook TopFreezer
- Laundry facilities:
- DryerWasherUtility/Laundry Room
- Lighting:
- Exterior Lighting
- Pets:
- Pets Allowed
- Property amenities:
- SidewalkPoolFireplace
- Rooms:
- Family RoomOpen Concept FloorplanPrimary Bedroom Upstairs
Utility information
- Heating:
- Thermostat, Central Heating
Community amenities
- Playground
- Fitness Center/Exercise Area
- Club House
- Golf Course
- Gated Community
- Community Pool
- Security Guard/Safety Office
- Sidewalks Available
Neighborhood
Home address
Schools in Osceola County School District
- Grades PK-KGPrivatemontessori school of davenport inc4.2 mi101-103 ridge center drna
GreatSchools’ Summary Rating calculation is based on 4 of the school’s themed ratings, including test scores, student/academic progress, college readiness, and equity. This information should only be used as a reference. Jome is not affiliated with GreatSchools and does not endorse or guarantee this information. Please reach out to schools directly to verify all information and enrollment eligibility. Data provided by GreatSchools.org © 2025
Places of interest
Getting around
Air quality
Natural hazards risk
Climate hazards can impact homes and communities, with risks varying by location. These scores reflect the potential impact of natural disasters and climate-related risks on Osceola County
Provided by FEMA

Considering this home?
Our expert will guide your tour, in-person or virtual
Need more information?
Text or call (888) 486-2818
Financials
Similar homes nearby
Recently added communities in this area
Nearby communities in Reunion
New homes in nearby cities
More New Homes in Reunion, FL
THE JERRY BARKER GROUP LLC, MLS O6332017
Based on information submitted to the MLS GRID as of 10/21/2024 2:31 PM CDT. All data is obtained from various sources and may not have been verified by broker or MLS GRID. Supplied Open House Information is subject to change without notice. All information should be independently reviewed and verified for accuracy. Properties may or may not be listed by the office/agent presenting the information. Some IDX listings have been excluded from this website. Properties displayed may be listed or sold by various participants in the MLS. IDX information is provided exclusively for personal, non-commercial use, and may not be used for any purpose other than to identify prospective properties consumers may be interested in purchasing. Information is deemed reliable but not guaranteed. Use of the MLS GRID Data may be subject to an end user license agreement prescribed by the Member Participant’s applicable MLS if any and as amended from time to time. The Digital Millennium Copyright Act of 1998, 17 U.S.C. § 512 (the “DMCA”) provides recourse for copyright owners who believe that material appearing on the Internet infringes their rights under U.S. copyright law. If you believe in good faith that any content or material made available in connection with our website or services infringes your copyright, you (or your agent) may send us a notice requesting that the content or material be removed, or access to it blocked. Notices must be sent in writing by email to DMCAnotice@MLSGrid.com. The DMCA requires that your notice of alleged copyright infringement include the following information: (1) description of the copyrighted work that is the subject of claimed infringement; (2) description of the alleged infringing content and information sufficient to permit us to locate the content; (3) contact information for you, including your address, telephone number and email address; (4) a statement by you that you have a good faith belief that the content in the manner complained of is not authorized by the copyright owner, or its agent, or by the operation of any law; (5) a statement by you, signed under penalty of perjury, that the information in the notification is accurate and that you have the authority to enforce the copyrights that are claimed to be infringed; and (6) a physical or electronic signature of the copyright owner or a person authorized to act on the copyright owner’s behalf. Failure to include all of the above information may result in the delay of the processing of your complaint. Listing Information presented by local MLS brokerage: NewHomesMate LLC, DBA Jome (888) 486-2818
Read moreLast checked Dec 6, 3:10 am
- Home
- New homes
- Florida
- Greater Orlando Area
- Osceola County
- Reunion
- 1276 Grand Traverse Pkwy, Reunion, FL 34747




























