

- 3 bd
- 2.5 ba
- 1,873 sqft
2721 Skyline Lp, Kissimmee, FL 34758
- Townhouse
- $172.26/sqft
- $230/monthly HOA
- North facing
New Homes for Sale Near 2721 Skyline Lp, Kissimmee, FL 34758
About this Home
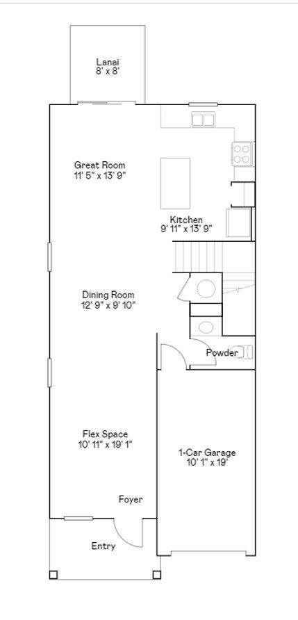
The first floor of the Sienna two-story townhome showcases three bedrooms 2 and a half baths with a one car garage. There is a versatile flex space well-suited to hosting guests. Down the hall is a breezy and convenient shared layout between the dining room, kitchen, and great room, along with an attached lanai. Upstairs, a multipurpose loft divides the tranquil owner’s suite with a full-sized bathroom from the remaining bedrooms. Westview is a master-planned community in Poinciana, FL. This amenity-rich, pet-friendly community has something for residents of all ages to enjoy, including a swimming pool, dog park, clubhouse and sports fields. Lake Marion Creek Wildlife Management Area is nearby with hiking trails, as well as Poinciana for shopping, dining and entertainment options. The community is in close proximity to Highway 17 for easy commuting to Greater Orlando.
LENNAR REALTY, MLS O6332613
May also be listed on the Lennar website
Information last verified by Jome: Today at 10:27 AM (December 6, 2025)
Home details
- Property status:
- Sold
- Lot size (acres):
- 0.05
- Size:
- 1,873 sqft
- Stories:
- 2
- Beds:
- 3
- Baths:
- 2
- Half baths:
- 1
- Garage spaces:
- 2
- Facing direction:
- North
Construction details
- Builder Name:
- Lennar
- Completion Date:
- September, 2025
- Year Built:
- 2025
- Roof:
- Shingle Roofing
Home features & finishes
- Construction Materials:
- BlockCement
- Cooling:
- Central Air
- Flooring:
- Ceramic FlooringCarpet FlooringTile Flooring
- Garage/Parking:
- Door OpenerGarageAttached Garage
- Interior Features:
- Walk-In Closet
- Kitchen:
- DishwasherMicrowave OvenRefrigeratorDisposalKitchen Range
- Laundry facilities:
- DryerWasher
- Pets:
- Pets Allowed
- Property amenities:
- PatioPorch
- Rooms:
- Family RoomOpen Concept Floorplan
- Security system:
- Smoke Detector
Utility information
- Heating:
- Electric Heating, Thermostat, Central Heating
- Utilities:
- Electricity Available, Underground Utilities, Cable Available, Water Available
Community amenities
- Playground
- Community Pool
About the builder - Lennar
Neighborhood
Home address
Schools in Polk County School District
- Grades PK-11Privatenew jerusalem academy4.2 mi4925 old pleasant hill rdna
GreatSchools’ Summary Rating calculation is based on 4 of the school’s themed ratings, including test scores, student/academic progress, college readiness, and equity. This information should only be used as a reference. Jome is not affiliated with GreatSchools and does not endorse or guarantee this information. Please reach out to schools directly to verify all information and enrollment eligibility. Data provided by GreatSchools.org © 2025
Places of interest
Getting around
Air quality
Natural hazards risk
Climate hazards can impact homes and communities, with risks varying by location. These scores reflect the potential impact of natural disasters and climate-related risks on Polk County
Provided by FEMA
Financials
Nearby communities in Kissimmee
Recently added communities in this area
Other Builders in Kissimmee, FL
Nearby sold homes
New homes in nearby cities
More New Homes in Kissimmee, FL
LENNAR REALTY, MLS O6332613
Based on information submitted to the MLS GRID as of 10/21/2024 2:31 PM CDT. All data is obtained from various sources and may not have been verified by broker or MLS GRID. Supplied Open House Information is subject to change without notice. All information should be independently reviewed and verified for accuracy. Properties may or may not be listed by the office/agent presenting the information. Some IDX listings have been excluded from this website. Properties displayed may be listed or sold by various participants in the MLS. IDX information is provided exclusively for personal, non-commercial use, and may not be used for any purpose other than to identify prospective properties consumers may be interested in purchasing. Information is deemed reliable but not guaranteed. Use of the MLS GRID Data may be subject to an end user license agreement prescribed by the Member Participant’s applicable MLS if any and as amended from time to time. The Digital Millennium Copyright Act of 1998, 17 U.S.C. § 512 (the “DMCA”) provides recourse for copyright owners who believe that material appearing on the Internet infringes their rights under U.S. copyright law. If you believe in good faith that any content or material made available in connection with our website or services infringes your copyright, you (or your agent) may send us a notice requesting that the content or material be removed, or access to it blocked. Notices must be sent in writing by email to DMCAnotice@MLSGrid.com. The DMCA requires that your notice of alleged copyright infringement include the following information: (1) description of the copyrighted work that is the subject of claimed infringement; (2) description of the alleged infringing content and information sufficient to permit us to locate the content; (3) contact information for you, including your address, telephone number and email address; (4) a statement by you that you have a good faith belief that the content in the manner complained of is not authorized by the copyright owner, or its agent, or by the operation of any law; (5) a statement by you, signed under penalty of perjury, that the information in the notification is accurate and that you have the authority to enforce the copyrights that are claimed to be infringed; and (6) a physical or electronic signature of the copyright owner or a person authorized to act on the copyright owner’s behalf. Failure to include all of the above information may result in the delay of the processing of your complaint. Listing Information presented by local MLS brokerage: NewHomesMate LLC, DBA Jome (888) 486-2818
Read moreLast checked Dec 6, 3:10 pm
- Home
- New homes
- Florida
- Greater Orlando Area
- Polk County
- Kissimmee
- 2721 Skyline Lp, Kissimmee, FL 34758











































