














Book your tour. Save an average of $18,473. We'll handle the rest.
We collect exclusive builder offers, book your tours, and support you from start to housewarming.
- Confirmed tours
- Get matched & compare top deals
- Expert help, no pressure
- No added fees
Estimated value based on Jome data, T&C apply



























- 5 bd
- 4.5 ba
- 3,203 sqft
1025 42Nd Ave N, St. Petersburg, FL 33703
Why tour with Jome?
- No pressure toursTour at your own pace with no sales pressure
- Expert guidanceGet insights from our home buying experts
- Exclusive accessSee homes and deals not available elsewhere
Jome is featured in
- Single-Family
- Under construction
- $414.92/sqft
- South facing
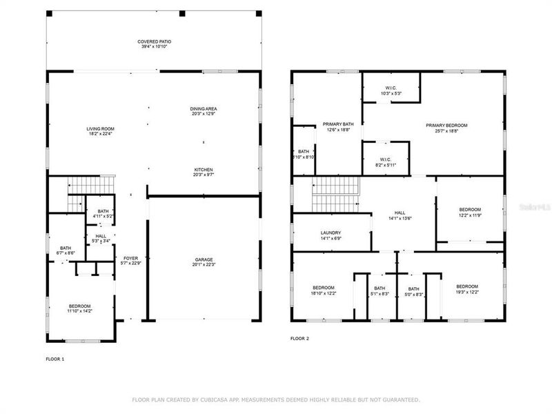
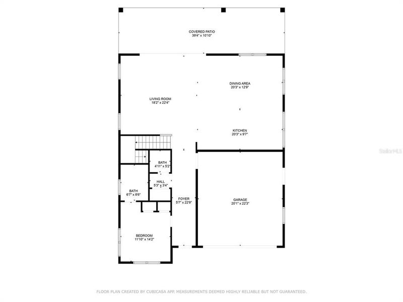
Home description
Welcome to this stunning new construction home located in one of the most desirable and quaint neighborhoods in all of St. Petersburg. As you enter the neighborhood, you are greeted by mature trees lining the streets, perfectly manicured landscaping, and a sense of serenity.
This home features 5 spacious bedrooms, 4.5 bathrooms, a 2 car garage, and more than 3,200 square feet of living space. The first floor open-concept floor plan is perfect for entertaining and hosting gatherings with friends and family. Sliders to the back porch and backyard allow for ample sunlight throughout the living room, kitchen, and dining area, and provide seamless indoor and outdoor living.
The home has been thoughtfully designed, with a large bedroom and en-suite bathroom on the ground floor, a second-floor laundry room, and a grand primary suite complete with dual walk-in closets, dual vanities, and dual shower heads.
The central location of Allendale should not be overlooked, as you are just minutes from the vibrant shopping, arts, and dining scene of downtown St. Pete, a short 20-minute drive to Tampa International Airport, and only 20 minutes from our world-renowned beaches along the Gulf.
SMITH & ASSOCIATES REAL ESTATE, MLS TB8390944
Information last verified by Jome: Yesterday at 10:16 AM (March 2, 2026)
Book your tour. Save an average of $18,473. We'll handle the rest.
We collect exclusive builder offers, book your tours, and support you from start to housewarming.
- Confirmed tours
- Get matched & compare top deals
- Expert help, no pressure
- No added fees
Estimated value based on Jome data, T&C apply
Home details
- Property status:
- Under construction
- Neighborhood:
- The Allendale Association
- Lot size (acres):
- 0.14
- Size:
- 3,203 sqft
- Stories:
- 2
- Beds:
- 5
- Baths:
- 4
- Half baths:
- 1
- Garage spaces:
- 2
- Facing direction:
- South
Construction details
- Completion Date:
- December, 2025
- Year Built:
- 2025
- Roof:
- Shingle Roofing
Home features & finishes
- Construction Materials:
- StuccoWood FrameBlock
- Cooling:
- Central Air
- Flooring:
- Vinyl FlooringTile Flooring
- Foundation Details:
- Slab
- Garage/Parking:
- GarageAttached Garage
- Interior Features:
- Ceiling-HighWalk-In ClosetSliding DoorsDouble Vanity
- Kitchen:
- DishwasherRefrigeratorKitchen Range
- Laundry facilities:
- Laundry Facilities On Upper LevelDryerWasherUtility/Laundry Room
- Lighting:
- Exterior Lighting
- Property amenities:
- SidewalkBackyardPorch
- Rooms:
- Dining RoomFamily RoomLiving RoomOpen Concept Floorplan

Get a consultation with our New Homes Expert
- See how your home builds wealth
- Plan your home-buying roadmap
- Discover hidden gems
Utility information
- Heating:
- Electric Heating
- Utilities:
- Other
Neighborhood
Home address
- Neighborhood:
- The Allendale Association
- City:
- St. Petersburg
Schools in Pinellas County School District
- Grades PK-08Privatethe french american school of tampa bay1.4 mi2100 62nd ave nna
GreatSchools’ Summary Rating calculation is based on 4 of the school’s themed ratings, including test scores, student/academic progress, college readiness, and equity. This information should only be used as a reference. Jome is not affiliated with GreatSchools and does not endorse or guarantee this information. Please reach out to schools directly to verify all information and enrollment eligibility. Data provided by GreatSchools.org © 2025
Places of interest
Getting around
4 nearby routes: 4 bus, 0 rail, 0 otherAir quality
Noise level
A Soundscore™ rating is a number between 50 (very loud) and 100 (very quiet) that tells you how loud a location is due to environmental noise.
Natural hazards risk
Provided by FEMA

Considering this home?
Our expert will guide your tour, in-person or virtual
Need more information?
Text or call (888) 488-9243
Financials
Estimated monthly payment
Let us help you find your dream home
How many bedrooms are you looking for?
Similar homes nearby
Recently added communities in this area
Nearby communities in St. Petersburg
New homes in nearby cities
More New Homes in St. Petersburg, FL
SMITH & ASSOCIATES REAL ESTATE, MLS TB8390944
Based on information submitted to the MLS GRID as of 10/21/2024 2:31 PM CDT. All data is obtained from various sources and may not have been verified by broker or MLS GRID. Supplied Open House Information is subject to change without notice. All information should be independently reviewed and verified for accuracy. Properties may or may not be listed by the office/agent presenting the information. Some IDX listings have been excluded from this website. Properties displayed may be listed or sold by various participants in the MLS. IDX information is provided exclusively for personal, non-commercial use, and may not be used for any purpose other than to identify prospective properties consumers may be interested in purchasing. Information is deemed reliable but not guaranteed. Use of the MLS GRID Data may be subject to an end user license agreement prescribed by the Member Participant’s applicable MLS if any and as amended from time to time. The Digital Millennium Copyright Act of 1998, 17 U.S.C. § 512 (the “DMCA”) provides recourse for copyright owners who believe that material appearing on the Internet infringes their rights under U.S. copyright law. If you believe in good faith that any content or material made available in connection with our website or services infringes your copyright, you (or your agent) may send us a notice requesting that the content or material be removed, or access to it blocked. Notices must be sent in writing by email to DMCAnotice@MLSGrid.com. The DMCA requires that your notice of alleged copyright infringement include the following information: (1) description of the copyrighted work that is the subject of claimed infringement; (2) description of the alleged infringing content and information sufficient to permit us to locate the content; (3) contact information for you, including your address, telephone number and email address; (4) a statement by you that you have a good faith belief that the content in the manner complained of is not authorized by the copyright owner, or its agent, or by the operation of any law; (5) a statement by you, signed under penalty of perjury, that the information in the notification is accurate and that you have the authority to enforce the copyrights that are claimed to be infringed; and (6) a physical or electronic signature of the copyright owner or a person authorized to act on the copyright owner’s behalf. Failure to include all of the above information may result in the delay of the processing of your complaint. Listing Information presented by local MLS brokerage: NewHomesMate LLC, DBA Jome (888) 488-9243
Read moreLast checked Mar 3, 3:10 am
- Jome
- New homes search
- Florida
- Tampa Bay Area
- Pinellas County
- St. Petersburg
- 1025 42Nd Ave N, St. Petersburg, FL 33703



























