














Book your tour. Save an average of $18,473. We'll handle the rest.
- Confirmed tours
- Get matched & compare top deals
- Expert help, no pressure
- No added fees
Estimated value based on Jome data, T&C apply




























- 3 bd
- 2.5 ba
- 945 sqft
1655 E Hwy 329, Citra, FL 32113
Why tour with Jome?
- No pressure toursTour at your own pace with no sales pressure
- Expert guidanceGet insights from our home buying experts
- Exclusive accessSee homes and deals not available elsewhere
Jome is featured in
- Single-Family
- Quick move-in
- $633.86/sqft
- South facing
Home description
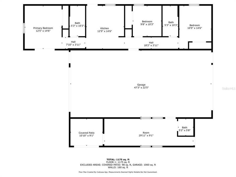
Location! Location! A beautiful barndominium sitting on 3.05 acres centrally located between Ocala and Gainesville! This is definitely a one of a kind property! The home consists of 3 bedrooms and 2.5 baths, vinyl flooring throughout, granite countertops, and all stainless steel appliances! The garage consists of 1,138 square feet and is fully insulated and runs off of its on seperate ac if you so desire! On one side of the garage you have your 945 sq ft 3 bed 2 bath house and on the other side of the insulated air conditioned garage you have 470 sq ft which consists of a storage area, a 1/2 bath, and a large room that could be used for storage or turned into a 4th bedroom. Off the back of the house you have a covered patio perfect for grilling out and a big screen tv on the wall! The entire house is spray foamed including the walls making it super energy efficient. The property consists of 3.05 acres but the fully fenced in area consist of 2 acres. The house is perfectly located on hwy 329 in sparr which means you're only 2 minutes from 441, 10 minutes from i75, 20 minutes from Ocala, 30 minutes from the world equestrian center and 45 minutes from Gainesville! The property is zoned agriculture so bring the animals with you!
KELLER WILLIAMS CORNERSTONE RE, MLS OM706406
Information last verified by Jome: Yesterday at 10:01 AM (December 5, 2025)
Home highlights
Premier equestrian venue in Ocala featuring world-class arenas, upscale amenities, and year-round horse events.
Book your tour. Save an average of $18,473. We'll handle the rest.
We collect exclusive builder offers, book your tours, and support you from start to housewarming.
- Confirmed tours
- Get matched & compare top deals
- Expert help, no pressure
- No added fees
Estimated value based on Jome data, T&C apply
Home details
- Property status:
- Move-in ready
- Lot size (acres):
- 3.05
- Size:
- 945 sqft
- Stories:
- 1
- Beds:
- 3
- Baths:
- 2
- Half baths:
- 1
- Garage spaces:
- 3
- Facing direction:
- South
Construction details
- Year Built:
- 2024
- Roof:
- Metal Roofing
Home features & finishes
- Construction Materials:
- Metal Siding
- Cooling:
- Central Air
- Flooring:
- Laminate Flooring
- Foundation Details:
- Slab
- Garage/Parking:
- GarageAttached Garage
- Kitchen:
- DishwasherMicrowave OvenRefrigeratorKitchen Range
- Property amenities:
- Storage Building
- Rooms:
- Primary Bedroom On MainKitchenPrimary Bedroom Downstairs
Utility information
- Heating:
- Central Heating
- Utilities:
- Electricity Available, Internet-Fiber, Cable Available
Neighborhood
Home address
Schools in Marion County School District
- Grades 01-11Privatebarbaras kitchen school of excellence (bkse)4.0 mi17050 n us highway 301 unit 1na
GreatSchools’ Summary Rating calculation is based on 4 of the school’s themed ratings, including test scores, student/academic progress, college readiness, and equity. This information should only be used as a reference. Jome is not affiliated with GreatSchools and does not endorse or guarantee this information. Please reach out to schools directly to verify all information and enrollment eligibility. Data provided by GreatSchools.org © 2025
Places of interest
Getting around
Air quality
Natural hazards risk
Climate hazards can impact homes and communities, with risks varying by location. These scores reflect the potential impact of natural disasters and climate-related risks on Marion County
Provided by FEMA

Considering this home?
Our expert will guide your tour, in-person or virtual
Need more information?
Text or call (888) 486-2818
Financials
Similar homes nearby
Recently added communities in this area
Nearby communities in Citra
New homes in nearby cities
More New Homes in Citra, FL
KELLER WILLIAMS CORNERSTONE RE, MLS OM706406
Based on information submitted to the MLS GRID as of 10/21/2024 2:31 PM CDT. All data is obtained from various sources and may not have been verified by broker or MLS GRID. Supplied Open House Information is subject to change without notice. All information should be independently reviewed and verified for accuracy. Properties may or may not be listed by the office/agent presenting the information. Some IDX listings have been excluded from this website. Properties displayed may be listed or sold by various participants in the MLS. IDX information is provided exclusively for personal, non-commercial use, and may not be used for any purpose other than to identify prospective properties consumers may be interested in purchasing. Information is deemed reliable but not guaranteed. Use of the MLS GRID Data may be subject to an end user license agreement prescribed by the Member Participant’s applicable MLS if any and as amended from time to time. The Digital Millennium Copyright Act of 1998, 17 U.S.C. § 512 (the “DMCA”) provides recourse for copyright owners who believe that material appearing on the Internet infringes their rights under U.S. copyright law. If you believe in good faith that any content or material made available in connection with our website or services infringes your copyright, you (or your agent) may send us a notice requesting that the content or material be removed, or access to it blocked. Notices must be sent in writing by email to DMCAnotice@MLSGrid.com. The DMCA requires that your notice of alleged copyright infringement include the following information: (1) description of the copyrighted work that is the subject of claimed infringement; (2) description of the alleged infringing content and information sufficient to permit us to locate the content; (3) contact information for you, including your address, telephone number and email address; (4) a statement by you that you have a good faith belief that the content in the manner complained of is not authorized by the copyright owner, or its agent, or by the operation of any law; (5) a statement by you, signed under penalty of perjury, that the information in the notification is accurate and that you have the authority to enforce the copyrights that are claimed to be infringed; and (6) a physical or electronic signature of the copyright owner or a person authorized to act on the copyright owner’s behalf. Failure to include all of the above information may result in the delay of the processing of your complaint. Listing Information presented by local MLS brokerage: NewHomesMate LLC, DBA Jome (888) 486-2818
Read moreLast checked Dec 6, 3:10 am
- Home
- New homes
- Florida
- Gainesville-Ocala Area
- Marion County
- Citra
- 1655 E Hwy 329, Citra, FL 32113



























