














Book your tour. Save an average of $18,473. We'll handle the rest.
We collect exclusive builder offers, book your tours, and support you from start to housewarming.
- Confirmed tours
- Get matched & compare top deals
- Expert help, no pressure
- No added fees
Estimated value based on Jome data, T&C apply






































- 4 bd
- 4 ba
- 6,123 sqft
234 Sw 22Nd Rd, Miami, FL 33129
Why tour with Jome?
- No pressure toursTour at your own pace with no sales pressure
- Expert guidanceGet insights from our home buying experts
- Exclusive accessSee homes and deals not available elsewhere
Jome is featured in
- Single-Family
- Quick move-in
- $751.27/sqft
- Northeast facing
Home description
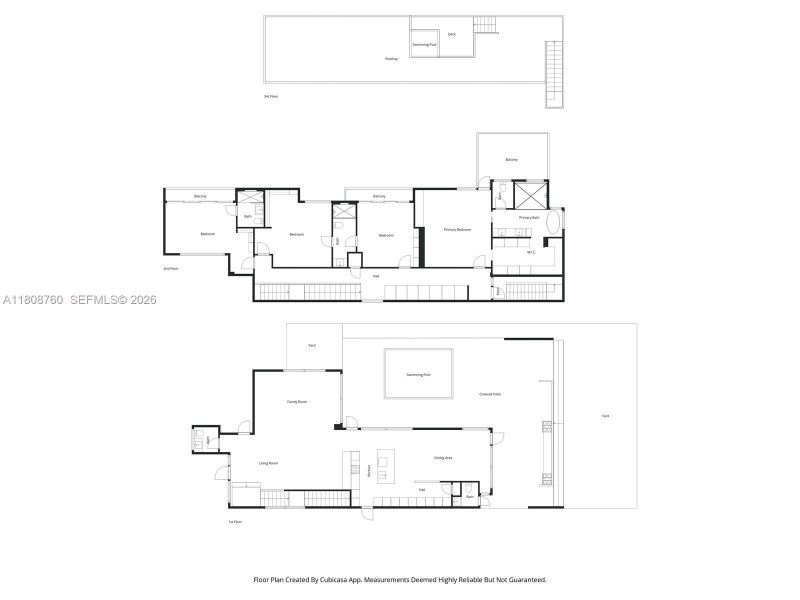
Located in The Roads—one of Miami’s most charming, tree-lined neighborhoods—this newly built modern home offers timeless design, open-concept living, high ceilings, and exceptional quality. 6123 total SqFt. Just minutes from Brickell, Downtown, the beaches, and the airport, it combines serenity with unmatched convenience. Enjoy rooftop views of Brickell’s skyline from your private hot tub, weekend BBQs by the pool with a built-in pizza oven, and the serenity of a soaking tub. Featuring smart appliances, custom-made closets, smart toilets, chef-worthy professional kitchen, this home is surrounded by top schools & hospitals. The Roads is a quiet, low-traffic area undergoing rapid transformation.
Great Properties International LLC, MLS A11808760
Information last verified by Jome: Today at 12:20 PM (February 21, 2026)
Book your tour. Save an average of $18,473. We'll handle the rest.
We collect exclusive builder offers, book your tours, and support you from start to housewarming.
- Confirmed tours
- Get matched & compare top deals
- Expert help, no pressure
- No added fees
Estimated value based on Jome data, T&C apply
Home details
- Property status:
- Move-in ready
- Neighborhood:
- Coral Way
- Lot size (acres):
- 0.15
- Size:
- 6,123 sqft
- Stories:
- 2
- Beds:
- 4
- Baths:
- 4
- Half baths:
- 2
- Garage spaces:
- 2
- Facing direction:
- Northeast
Construction details
- Year Built:
- 2025
- Roof:
- Concrete Roofing
Home features & finishes
- Appliances:
- Ice Maker
- Construction Materials:
- Concrete
- Cooling:
- Central Air
- Flooring:
- Tile Flooring
- Garage/Parking:
- GarageCovered Garage/ParkingAttached Garage
- Interior Features:
- Walk-In ClosetPantryStorageSeparate ShowerDouble Vanity
- Kitchen:
- DishwasherMicrowave OvenOvenRefrigeratorDisposalKitchen Range
- Laundry facilities:
- DryerWasherUtility/Laundry Room
- Pets:
- Pets Allowed
- Property amenities:
- Private RooftopBalconyDeckRooftop TerraceBBQ AreaSoaking TubBidet
- Rooms:
- Open Concept FloorplanPrimary Bedroom Upstairs

Get a consultation with our New Homes Expert
- See how your home builds wealth
- Plan your home-buying roadmap
- Discover hidden gems
Utility information
- Heating:
- Water Heater, Central Heating
- Utilities:
- Other
Community amenities
- Spa Zone
- Community Hot Tub
Neighborhood
Home address
- County:
- Miami-Dade
- Zip Code:
- 33129
Schools in Dade County School District
- Grades PK-05Privategordon day school of beth david cong.0.3 mi2625 sw 3rd avena
- Grades 06-08Chartermater brickell preparatory0.4 mi230 sw 17 rdna
GreatSchools’ Summary Rating calculation is based on 4 of the school’s themed ratings, including test scores, student/academic progress, college readiness, and equity. This information should only be used as a reference. Jome is not affiliated with GreatSchools and does not endorse or guarantee this information. Please reach out to schools directly to verify all information and enrollment eligibility. Data provided by GreatSchools.org © 2025
Places of interest
Getting around
12 nearby routes: 10 bus, 2 rail, 0 otherAir quality
Noise level
A Soundscore™ rating is a number between 50 (very loud) and 100 (very quiet) that tells you how loud a location is due to environmental noise.
Natural hazards risk
Provided by FEMA

Considering this home?
Our expert will guide your tour, in-person or virtual
Need more information?
Text or call (888) 488-9243
Financials
Estimated monthly payment
Let us help you find your dream home
How many bedrooms are you looking for?
Similar homes nearby
Recently added communities in this area
Nearby communities in Miami
New homes in nearby cities
More New Homes in Miami, FL
Great Properties International LLC, MLS A11808760
IDX information is provided exclusively for personal, non-commercial use, and may not be used for any purpose other than to identify prospective properties consumers may be interested in purchasing. Information is deemed reliable but not guaranteed.
Read moreLast checked Feb 21, 12:20 pm
- Jome
- New homes search
- Florida
- Miami Metropolitan Area
- Miami-Dade County
- Miami
- 234 Sw 22Nd Rd, Miami, FL 33129

























