








Book your tour. Save an average of $18,473. We'll handle the rest.
We collect exclusive builder offers, book your tours, and support you from start to housewarming.
- Confirmed tours
- Get matched & compare top deals
- Expert help, no pressure
- No added fees
Estimated value based on Jome data, T&C apply








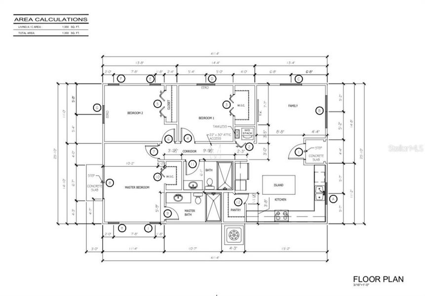
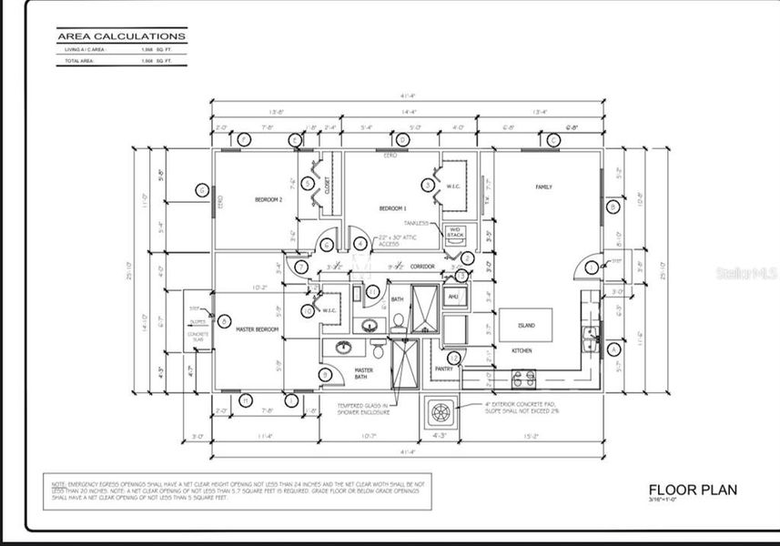
- 3 bd
- 2 ba
- 1,068 sqft
2399 Cr 423, Lake Panasoffkee, FL 33538
Why tour with Jome?
- No pressure toursTour at your own pace with no sales pressure
- Expert guidanceGet insights from our home buying experts
- Exclusive accessSee homes and deals not available elsewhere
Jome is featured in
- Single-Family
- Under construction
- $197.57/sqft
- West facing
Home description
Under Construction. New 3-Bedroom, 2-Bathroom Homes in Indian Estates This model is being built on 4 lots (43, 44, 45,46) Colors of finishings may vary home to home Discover these charming 1,050 sq. ft. homes located in the serene community of Indian Estates, Lake Panasoffkee, Florida. Featuring durable Hardy Board siding, architectural shingles, quarts countertops, stainless steel appliances. Luxury vinyl plank flooring, LED lighting, among many other finishing, this home is designed to impress. Nestled near the beautiful spring-fed Lake Panasoffkee, this community offers a peaceful retreat with convenient access to modern amenities. Enjoy being just minutes from The Villages and having quick access to I-75 and the Florida Turnpike, making travel a breeze. These homes won’t last long—schedule your tour today and find your perfect home in Indian Estates!
FLAMINGO REAL ESTATE & MNGMT, MLS G5095021
Information last verified by Jome: Today at 9:46 AM (April 13, 2026)
Book your tour. Save an average of $18,473. We'll handle the rest.
We collect exclusive builder offers, book your tours, and support you from start to housewarming.
- Confirmed tours
- Get matched & compare top deals
- Expert help, no pressure
- No added fees
Estimated value based on Jome data, T&C apply
Home details
- Property status:
- Under construction
- Lot size (acres):
- 0.33
- Size:
- 1,068 sqft
- Stories:
- 1
- Beds:
- 3
- Baths:
- 2
- Facing direction:
- West
Construction details
- Year Built:
- 2025
- Roof:
- Shingle Roofing
Home features & finishes
- Construction Materials:
- Wood Frame
- Cooling:
- Central Air
- Flooring:
- Vinyl Flooring
- Foundation Details:
- Slab
- Interior Features:
- Sliding Doors
- Kitchen:
- DishwasherMicrowave OvenRefrigeratorKitchen Range
- Rooms:
- Primary Bedroom On MainFamily RoomOpen Concept FloorplanPrimary Bedroom Downstairs

Get a consultation with our New Homes Expert
- See how your home builds wealth
- Plan your home-buying roadmap
- Discover hidden gems
Utility information
- Heating:
- Electric Heating, Thermostat
- Utilities:
- Electricity Available, Water Available
- Water source:
- Public
Neighborhood
Home address
- City:
- Lake Panasoffkee
- County:
- Sumter
- Zip Code:
- 33538
Schools in Sumter County School District
- Grades 03-06Publicwildwood intermediate school8.2 mi200 cleveland avena
GreatSchools’ Summary Rating calculation is based on 4 of the school’s themed ratings, including test scores, student/academic progress, college readiness, and equity. This information should only be used as a reference. Jome is not affiliated with GreatSchools and does not endorse or guarantee this information. Please reach out to schools directly to verify all information and enrollment eligibility. Data provided by GreatSchools.org © 2025
Places of interest
Getting around
Air quality
Natural hazards risk
Provided by FEMA

Considering this home?
Our expert will guide your tour, in-person or virtual
Need more information?
Text or call (888) 545-5198
Financials
Estimated monthly payment
Let us help you find your dream home
How many bedrooms are you looking for?
Similar homes nearby
Recently added communities in this area
Nearby communities in Lake Panasoffkee
New homes in nearby cities
More New Homes in Lake Panasoffkee, FL
FLAMINGO REAL ESTATE & MNGMT, MLS G5095021
Based on information submitted to the MLS GRID as of 10/21/2024 2:31 PM CDT. All data is obtained from various sources and may not have been verified by broker or MLS GRID. Supplied Open House Information is subject to change without notice. All information should be independently reviewed and verified for accuracy. Properties may or may not be listed by the office/agent presenting the information. Some IDX listings have been excluded from this website. Properties displayed may be listed or sold by various participants in the MLS. IDX information is provided exclusively for personal, non-commercial use, and may not be used for any purpose other than to identify prospective properties consumers may be interested in purchasing. Information is deemed reliable but not guaranteed. Use of the MLS GRID Data may be subject to an end user license agreement prescribed by the Member Participant’s applicable MLS if any and as amended from time to time. The Digital Millennium Copyright Act of 1998, 17 U.S.C. § 512 (the “DMCA”) provides recourse for copyright owners who believe that material appearing on the Internet infringes their rights under U.S. copyright law. If you believe in good faith that any content or material made available in connection with our website or services infringes your copyright, you (or your agent) may send us a notice requesting that the content or material be removed, or access to it blocked. Notices must be sent in writing by email to DMCAnotice@MLSGrid.com. The DMCA requires that your notice of alleged copyright infringement include the following information: (1) description of the copyrighted work that is the subject of claimed infringement; (2) description of the alleged infringing content and information sufficient to permit us to locate the content; (3) contact information for you, including your address, telephone number and email address; (4) a statement by you that you have a good faith belief that the content in the manner complained of is not authorized by the copyright owner, or its agent, or by the operation of any law; (5) a statement by you, signed under penalty of perjury, that the information in the notification is accurate and that you have the authority to enforce the copyrights that are claimed to be infringed; and (6) a physical or electronic signature of the copyright owner or a person authorized to act on the copyright owner’s behalf. Failure to include all of the above information may result in the delay of the processing of your complaint. Listing Information presented by local MLS brokerage: NewHomesMate LLC, DBA Jome (888) 545-5198
Read moreLast checked Apr 13, 3:10 pm
- Jome
- New homes search
- Florida
- Gainesville-Ocala Area
- Sumter County
- Lake Panasoffkee
- 2399 Cr 423, Lake Panasoffkee, FL 33538



























