













Book your tour. Save an average of $18,473. We'll handle the rest.
- Confirmed tours
- Get matched & compare top deals
- Expert help, no pressure
- No added fees
Estimated value based on Jome data, T&C apply



Why tour with Jome?
- No pressure toursTour at your own pace with no sales pressure
- Expert guidanceGet insights from our home buying experts
- Exclusive accessSee homes and deals not available elsewhere
Jome is featured in
- Single-Family
- $512.69/sqft
- $175/monthly HOA
- South facing
Home description
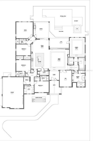
AR Homes' newest custom design is a true showstopper—set to debut in the 2026 Spring Parade of Homes! Nestled on a peaceful 3-acre homesite in the prestigious Kingston community, this 3,704 sq ft estate blends rustic charm with modern luxury, just minutes from Jonesville’s Publix, Starbucks, Tioga Town Center, and more.
A warm front porch and vaulted foyer welcome you into light-filled living spaces with stunning views through walls of sliding glass doors overlooking the pool, summer kitchen, and private backyard. The designer kitchen is built for entertaining with commercial-grade appliances, a 36” gas Rangetop, 42” built-in refrigerator, quartz countertops, and solid wood cabinetry with soft-close doors. A wine cooler and oversized walk-in pantry—complete with custom shelving and a second fridge—make hosting effortless. 4 Bedrooms, 4 Bathrooms, Den/Office, Bonus Room, and a 3 Car garage make for the perfectly appointed home.
Built with performance and durability in mind: 2x6 framing, post-tension slab, Zip System exterior wall sheathing, open-cell spray foam attic insulation, R-19 wall insulation, and double-pane Low-E windows. Additional features include two gas tankless water heaters and a 15-SEER Trane HVAC. Backed by a 1-year builder warranty and a 2–7 year Service Credo for added peace of mind.
BHGRE THOMAS GROUP, MLS GC531483
May also be listed on the AR HOMES website
Information last verified by Jome: Yesterday at 9:50 AM (January 15, 2026)
Home highlights
Expansive Gainesville-area prairie with wild horses, bison, and scenic trails in a rare Florida savanna ecosystem.
Book your tour. Save an average of $18,473. We'll handle the rest.
We collect exclusive builder offers, book your tours, and support you from start to housewarming.
- Confirmed tours
- Get matched & compare top deals
- Expert help, no pressure
- No added fees
Estimated value based on Jome data, T&C apply
Home details
- Property status:
- Pending/Under contract
- Lot size (acres):
- 3.01
- Size:
- 3,704 sqft
- Stories:
- 1
- Beds:
- 4
- Baths:
- 4
- Garage spaces:
- 3
- Facing direction:
- South
Construction details
- Builder Name:
- AR HOMES
- Completion Date:
- May, 2026
- Year Built:
- 2026
- Roof:
- Metal Roofing, Shingle Roofing
Home features & finishes
- Appliances:
- Sprinkler System
- Construction Materials:
- Wood FrameStone
- Cooling:
- Ceiling Fan(s)Central Air
- Flooring:
- Carpet FlooringTile FlooringHardwood Flooring
- Foundation Details:
- Slab
- Garage/Parking:
- GarageAttached Garage
- Home amenities:
- Internet
- Interior Features:
- Ceiling-HighWalk-In ClosetFoyerPantrySliding DoorsStorage
- Kitchen:
- Wine RefrigeratorDishwasherMicrowave OvenOvenRefrigeratorDisposalBuilt-In OvenCook TopKitchen Island
- Laundry facilities:
- DryerWasherUtility/Laundry Room
- Lighting:
- LightingStreet Lights
- Pets:
- Pets Allowed
- Property amenities:
- SidewalkBarPoolCabinetsPorch
- Rooms:
- Bonus RoomPrimary Bedroom On MainKitchenDen RoomOffice/StudyFamily RoomOpen Concept FloorplanPrimary Bedroom Downstairs
- Security system:
- Security SystemSmoke Detector

Get a consultation with our New Homes Expert
- See how your home builds wealth
- Plan your home-buying roadmap
- Discover hidden gems
Utility information
- Heating:
- Electric Heating, Heat Pump, Thermostat, Water Heater, Central Heating, Tankless water heater
- Utilities:
- Electricity Available, Natural Gas Available, Underground Utilities, Internet-Fiber, Phone Available, Cable Available

Community details
Kingston
by AR HOMES, Newberry, FL
- 11 plans
- 3,896 - 6,330 sqft
View Kingston details
Community amenities
- Woods View
- Sidewalks Available
Floor plans in Kingston
About the builder - AR HOMES
Neighborhood
Home address
Schools in Alachua County School District
GreatSchools’ Summary Rating calculation is based on 4 of the school’s themed ratings, including test scores, student/academic progress, college readiness, and equity. This information should only be used as a reference. Jome is not affiliated with GreatSchools and does not endorse or guarantee this information. Please reach out to schools directly to verify all information and enrollment eligibility. Data provided by GreatSchools.org © 2025
Places of interest
Getting around
Air quality
Noise level
A Soundscore™ rating is a number between 50 (very loud) and 100 (very quiet) that tells you how loud a location is due to environmental noise.

Considering this home?
Our expert will guide your tour, in-person or virtual
Need more information?
Text or call (888) 486-2818
Financials
Estimated monthly payment
Let us help you find your dream home
How many bedrooms are you looking for?
Similar homes nearby
Recently added communities in this area
Nearby communities in Newberry
New homes in nearby cities
More New Homes in Newberry, FL
BHGRE THOMAS GROUP, MLS GC531483
Based on information submitted to the MLS GRID as of 10/21/2024 2:31 PM CDT. All data is obtained from various sources and may not have been verified by broker or MLS GRID. Supplied Open House Information is subject to change without notice. All information should be independently reviewed and verified for accuracy. Properties may or may not be listed by the office/agent presenting the information. Some IDX listings have been excluded from this website. Properties displayed may be listed or sold by various participants in the MLS. IDX information is provided exclusively for personal, non-commercial use, and may not be used for any purpose other than to identify prospective properties consumers may be interested in purchasing. Information is deemed reliable but not guaranteed. Use of the MLS GRID Data may be subject to an end user license agreement prescribed by the Member Participant’s applicable MLS if any and as amended from time to time. The Digital Millennium Copyright Act of 1998, 17 U.S.C. § 512 (the “DMCA”) provides recourse for copyright owners who believe that material appearing on the Internet infringes their rights under U.S. copyright law. If you believe in good faith that any content or material made available in connection with our website or services infringes your copyright, you (or your agent) may send us a notice requesting that the content or material be removed, or access to it blocked. Notices must be sent in writing by email to DMCAnotice@MLSGrid.com. The DMCA requires that your notice of alleged copyright infringement include the following information: (1) description of the copyrighted work that is the subject of claimed infringement; (2) description of the alleged infringing content and information sufficient to permit us to locate the content; (3) contact information for you, including your address, telephone number and email address; (4) a statement by you that you have a good faith belief that the content in the manner complained of is not authorized by the copyright owner, or its agent, or by the operation of any law; (5) a statement by you, signed under penalty of perjury, that the information in the notification is accurate and that you have the authority to enforce the copyrights that are claimed to be infringed; and (6) a physical or electronic signature of the copyright owner or a person authorized to act on the copyright owner’s behalf. Failure to include all of the above information may result in the delay of the processing of your complaint. Listing Information presented by local MLS brokerage: NewHomesMate LLC, DBA Jome (888) 486-2818
Read moreLast checked Jan 16, 3:10 am
- Jome
- New homes search
- Florida
- Gainesville-Ocala Area
- Alachua County
- Newberry
- Kingston
- 2559 Nw 150Th Blvd, Newberry, FL 32669


































