








Book your tour. Save an average of $18,473. We'll handle the rest.
We collect exclusive builder offers, book your tours, and support you from start to housewarming.
- Confirmed tours
- Get matched & compare top deals
- Expert help, no pressure
- No added fees
Estimated value based on Jome data, T&C apply



































- 4 bd
- 2 ba
- 2,019 sqft
8 Cordia Ct, Homosassa, FL 34446
Why tour with Jome?
- No pressure toursTour at your own pace with no sales pressure
- Expert guidanceGet insights from our home buying experts
- Exclusive accessSee homes and deals not available elsewhere
Jome is featured in
- Single-Family
- Under construction
- $190.64/sqft
- $125/annual HOA
Home description
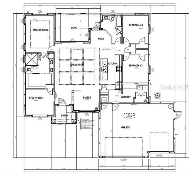
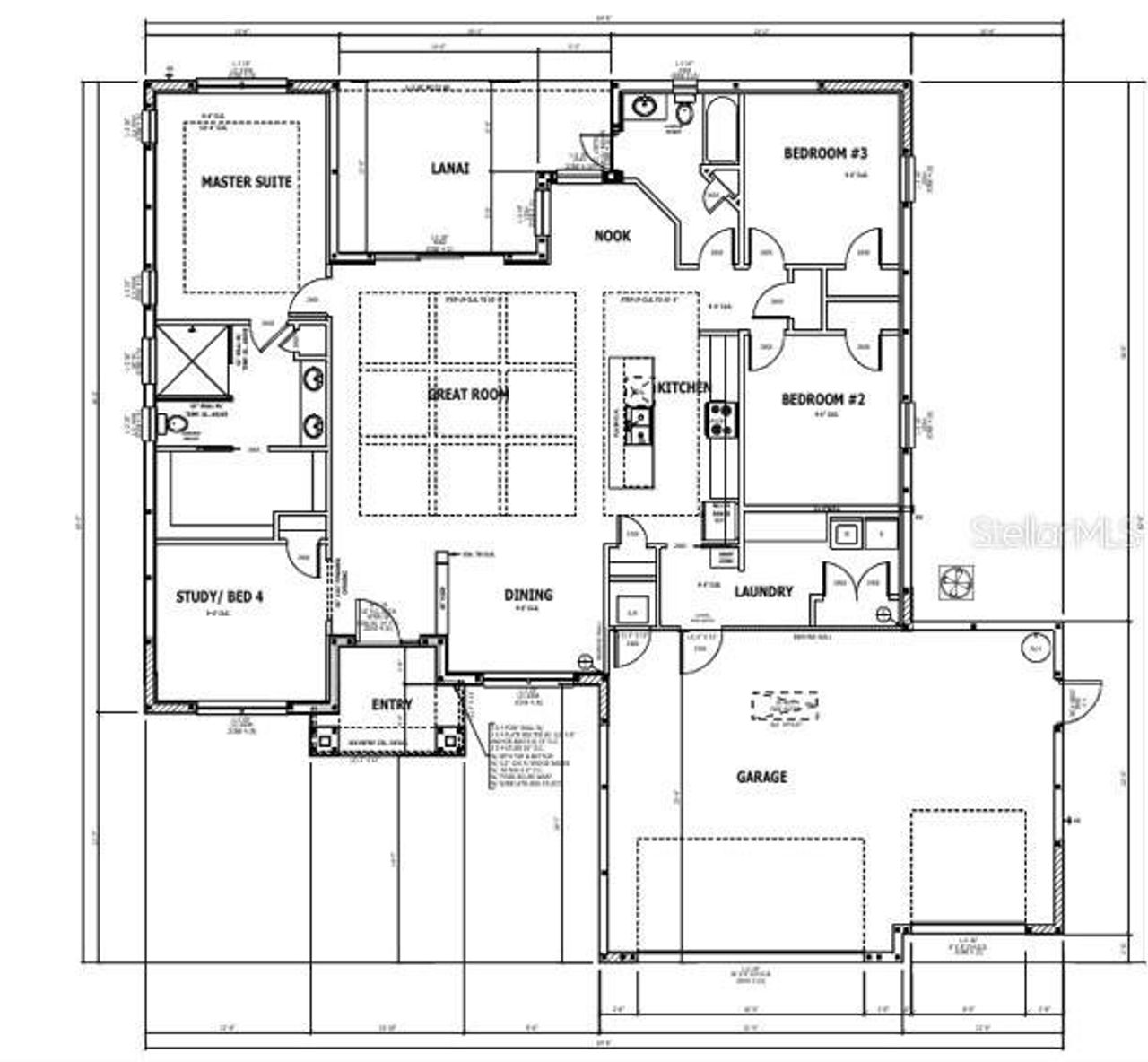
HOME IS COMPLETE AND PRICED TO SELL! Seller offering buyer incentives with a full-price contract. Custom built by a respected local builder, this beautifully designed 3-bedroom home with a dedicated office or optional 4th bedroom and an expansive 3-car garage offers luxury finishes and exceptional craftsmanship throughout.
A welcoming covered front entry opens into an expansive open-concept floor plan featuring premium vinyl plank flooring and soaring 9'4" ceilings. The spacious great room showcases an elegant, coffered ceiling and impressive three-panel stacking sliding glass doors, creating seamless indoor-outdoor living. Electrical outlets are conveniently placed both in-floor and on the walls for flexible furniture and entertainment setups. The chef-inspired kitchen features Quartz countertops, stainless-steel appliances, a generous 9-foot island with eat-up bar, a cozy kitchen nook, and a pantry closet. The home also features a formal dining room, perfect for entertaining guests and hosting memorable family holiday gatherings.
The owner’s suite is a private retreat with a tray ceiling, walk-in closet, and a spa-like ensuite bath featuring tiled flooring, a walk-in tiled shower, double vanities, and a linen closet. Guest bedrooms showcase plush carpeting with 8-lb padding for added comfort. The second bathroom includes tiled flooring, a linen closet, and a convenient exterior door with built-in blinds leading to the lanai, ideal for outdoor gatherings.
Additional highlights include: Oversized laundry room with cabinetry, countertop workspace, and a large storage closet; massive 745 sq ft 3-car garage; oversized covered lanai perfect for relaxing or entertaining; full landscaping package with irrigation in the front and rear yards; gutters installed around the entire home.
Situated in a quiet cul-de-sac in Sugarmill Woods, this home enjoys extra greenspace behind the property for added privacy. Sugarmill Woods is a desirable golf community offering optional memberships with access to social clubs, a clubhouse, pool, pickleball courts, and a variety of recreational activities. Conveniently located just 2 miles from the Suncoast Parkway, providing easy access to Tampa in under an hour.
BHHS FLORIDA PROPERTIES GROUP, MLS W7871227
Information last verified by Jome: Today at 10:30 AM (April 22, 2026)
Home highlights
Crystal-clear spring park in Dunnellon with swimming, tubing, and lush gardens in Florida’s Nature Coast region.
Book your tour. Save an average of $18,473. We'll handle the rest.
We collect exclusive builder offers, book your tours, and support you from start to housewarming.
- Confirmed tours
- Get matched & compare top deals
- Expert help, no pressure
- No added fees
Estimated value based on Jome data, T&C apply
Home details
- Property status:
- Under construction
- Lot size (acres):
- 0.27
- Size:
- 2,019 sqft
- Stories:
- 1
- Beds:
- 4
- Baths:
- 2
- Garage spaces:
- 3
- Facing direction:
- Southeast
Construction details
- Completion Date:
- October, 2025
- Year Built:
- 2025
- Roof:
- Shingle Roofing
Home features & finishes
- Construction Materials:
- Block
- Cooling:
- Central Air
- Flooring:
- Ceramic FlooringVinyl FlooringCarpet FlooringTile Flooring
- Foundation Details:
- Slab
- Garage/Parking:
- Garage
- Interior Features:
- Ceiling-HighWalk-In ClosetCrown MoldingCoffered CeilingSliding DoorsTray Ceiling
- Kitchen:
- DishwasherMicrowave OvenRefrigeratorDisposalCooktopKitchen Range
- Laundry facilities:
- DryerWasherLaundry Facilities In ClosetUtility/Laundry Room
- Lighting:
- Exterior LightingStreet Lights
- Pets:
- Pets Allowed
- Property amenities:
- Cul-de-sacPorch
- Rooms:
- Primary Bedroom On MainKitchenDining RoomOpen Concept FloorplanPrimary Bedroom Downstairs

Get a consultation with our New Homes Expert
- See how your home builds wealth
- Plan your home-buying roadmap
- Discover hidden gems
Utility information
- Heating:
- Electric Heating, Thermostat, Water Heater, Central Heating
- Sewer:
- Public Sewer
- Utilities:
- Electricity Available, Phone Available, Cable Available, Water Available
- Water source:
- Public
Community amenities
- Fitness Center/Exercise Area
- Club House
- Golf Course
- Tennis Courts
- Community Pool
Neighborhood
Home address
Schools in Citrus County School District
GreatSchools’ Summary Rating calculation is based on 4 of the school’s themed ratings, including test scores, student/academic progress, college readiness, and equity. This information should only be used as a reference. Jome is not affiliated with GreatSchools and does not endorse or guarantee this information. Please reach out to schools directly to verify all information and enrollment eligibility. Data provided by GreatSchools.org © 2025
Places of interest
Getting around
Air quality
Natural hazards risk
Provided by FEMA

Considering this home?
Our expert will guide your tour, in-person or virtual
Need more information?
Text or call (888) 545-5198
Financials
Estimated monthly payment
Let us help you find your dream home
How many bedrooms are you looking for?
Similar homes nearby
Recently added communities in this area
Nearby communities in Homosassa
New homes in nearby cities
More New Homes in Homosassa, FL
BHHS FLORIDA PROPERTIES GROUP, MLS W7871227
Based on information submitted to the MLS GRID as of 10/21/2024 2:31 PM CDT. All data is obtained from various sources and may not have been verified by broker or MLS GRID. Supplied Open House Information is subject to change without notice. All information should be independently reviewed and verified for accuracy. Properties may or may not be listed by the office/agent presenting the information. Some IDX listings have been excluded from this website. Properties displayed may be listed or sold by various participants in the MLS. IDX information is provided exclusively for personal, non-commercial use, and may not be used for any purpose other than to identify prospective properties consumers may be interested in purchasing. Information is deemed reliable but not guaranteed. Use of the MLS GRID Data may be subject to an end user license agreement prescribed by the Member Participant’s applicable MLS if any and as amended from time to time. The Digital Millennium Copyright Act of 1998, 17 U.S.C. § 512 (the “DMCA”) provides recourse for copyright owners who believe that material appearing on the Internet infringes their rights under U.S. copyright law. If you believe in good faith that any content or material made available in connection with our website or services infringes your copyright, you (or your agent) may send us a notice requesting that the content or material be removed, or access to it blocked. Notices must be sent in writing by email to DMCAnotice@MLSGrid.com. The DMCA requires that your notice of alleged copyright infringement include the following information: (1) description of the copyrighted work that is the subject of claimed infringement; (2) description of the alleged infringing content and information sufficient to permit us to locate the content; (3) contact information for you, including your address, telephone number and email address; (4) a statement by you that you have a good faith belief that the content in the manner complained of is not authorized by the copyright owner, or its agent, or by the operation of any law; (5) a statement by you, signed under penalty of perjury, that the information in the notification is accurate and that you have the authority to enforce the copyrights that are claimed to be infringed; and (6) a physical or electronic signature of the copyright owner or a person authorized to act on the copyright owner’s behalf. Failure to include all of the above information may result in the delay of the processing of your complaint. Listing Information presented by local MLS brokerage: NewHomesMate LLC, DBA Jome (888) 545-5198
Read moreLast checked Apr 22, 3:10 pm
- Jome
- New homes search
- Florida
- Citrus County
- Homosassa
- 8 Cordia Ct, Homosassa, FL 34446


























