

- 5 bd
- 3 ba
- 2,451 sqft
4796 Waltham Forest Dr, Davenport, FL 33837
- Single-Family
- $164.59/sqft
- $430/quarterly HOA
- Southwest facing
New Homes for Sale Near 4796 Waltham Forest Dr, Davenport, FL 33837
About this Home
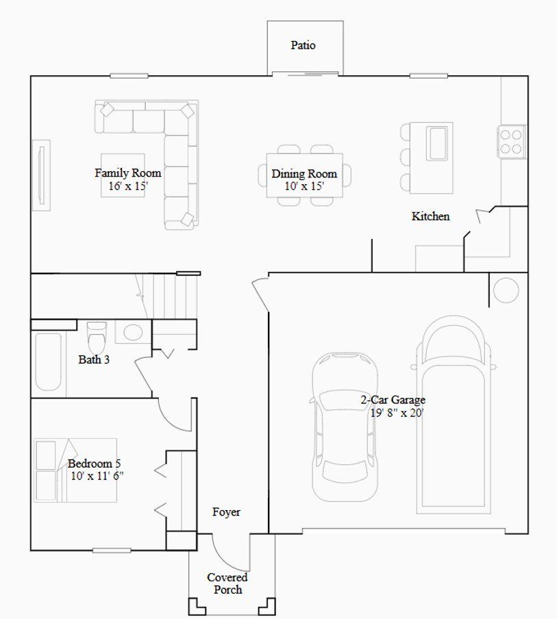
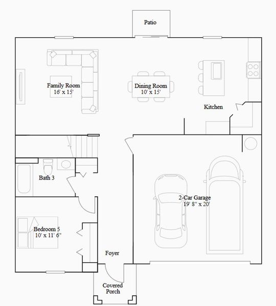
Looking for something on trend and built to last? Style is delivered with the Eclipse. The first floor of this two-story home shares an open layout between the kitchen, dining area and family room for easy entertaining with access to the patio. A secondary bedroom on the first floor can easily be converted to a guest room or home office. Upstairs is a versatile loft that serves as an additional shared living space, along with three secondary bedrooms and a luxe owner's suite comprised of an en-suite bathroom and a large walk-in closet. With “Everything’s Included”, luxury and value go hand in hand. New highly energy efficient homes feature 42” cabinetry, quartz countertops in both kitchen and bathrooms, new appliances, state of the art security system, and expansive covered lanais to enjoy your gorgeous views and much more! This brand new home is in the beautiful 24hr manned gated golf club community of Providence provides their residents luxury resort-like amenities. Providence is the Hidden Jewel of Davenport with elegance at every turn. The community was designed with active families in mind. Amenities include a fully-equipped fitness center, tennis courts, a resort-style swimming pool, lap pool, walking trails, tot lot, dog park, restaurant, Pro Shop and much more! The Michael Dasher designed, 18-hole course covers 7,046 yards and features championship tees and immaculately maintained greens. Providence has been voted the #1 Grand Award Community of the Year
LENNAR REALTY, MLS O6313376
May also be listed on the Lennar website
Information last verified by Jome: Yesterday at 10:19 AM (December 27, 2025)
Home details
- Property status:
- Sold
- Lot size (acres):
- 0.14
- Size:
- 2,451 sqft
- Stories:
- 2
- Beds:
- 5
- Baths:
- 3
- Garage spaces:
- 2
- Facing direction:
- Southwest
Construction details
- Builder Name:
- Lennar
- Completion Date:
- September, 2025
- Year Built:
- 2025
- Roof:
- Shingle Roofing
Home features & finishes
- Appliances:
- Sprinkler System
- Construction Materials:
- StuccoBlock
- Cooling:
- Central Air
- Flooring:
- Ceramic FlooringCarpet FlooringTile Flooring
- Foundation Details:
- Slab
- Garage/Parking:
- Door OpenerGarageAttached Garage
- Interior Features:
- Walk-In ClosetFoyerSliding DoorsStaircasesLoft
- Kitchen:
- DishwasherMicrowave OvenRefrigeratorDisposalKitchen IslandKitchen Range
- Laundry facilities:
- DryerWasherUtility/Laundry Room
- Lighting:
- Street Lights
- Pets:
- Pets Allowed
- Property amenities:
- SidewalkCabinetsPatioPorch
- Rooms:
- KitchenDining RoomFamily RoomOpen Concept FloorplanPrimary Bedroom Upstairs
- Security system:
- Smoke Detector
Utility information
- Heating:
- Electric Heating, Thermostat, Central Heating
- Utilities:
- Electricity Available, Underground Utilities, Internet-Fiber, HVAC, Cable Available

Community details
Providence: Estate Key Collection
by Lennar, Davenport, FL
- 4 homes
- 3 plans
- 1,824 - 2,451 sqft
View Providence: Estate Key Collection details
Community amenities
- Playground
- Fitness Center/Exercise Area
- Golf Course
- Gated Community
- Park Nearby
More homes in Providence: Estate Key Collection
Floor plans in Providence: Estate Key Collection
About the builder - Lennar
Neighborhood
Home address
Schools in Polk County School District
- Grades 06-06Chartermater academy davenport middle school3.4 mi318 ronald reagan parkwayna
GreatSchools’ Summary Rating calculation is based on 4 of the school’s themed ratings, including test scores, student/academic progress, college readiness, and equity. This information should only be used as a reference. Jome is not affiliated with GreatSchools and does not endorse or guarantee this information. Please reach out to schools directly to verify all information and enrollment eligibility. Data provided by GreatSchools.org © 2025
Places of interest
Getting around
Air quality
Natural hazards risk
Climate hazards can impact homes and communities, with risks varying by location. These scores reflect the potential impact of natural disasters and climate-related risks on Polk County
Provided by FEMA
Financials
Nearby communities in Davenport
Homes in Davenport by Lennar
Recently added communities in this area
Other Builders in Davenport, FL
Nearby sold homes
New homes in nearby cities
More New Homes in Davenport, FL
LENNAR REALTY, MLS O6313376
Based on information submitted to the MLS GRID as of 10/21/2024 2:31 PM CDT. All data is obtained from various sources and may not have been verified by broker or MLS GRID. Supplied Open House Information is subject to change without notice. All information should be independently reviewed and verified for accuracy. Properties may or may not be listed by the office/agent presenting the information. Some IDX listings have been excluded from this website. Properties displayed may be listed or sold by various participants in the MLS. IDX information is provided exclusively for personal, non-commercial use, and may not be used for any purpose other than to identify prospective properties consumers may be interested in purchasing. Information is deemed reliable but not guaranteed. Use of the MLS GRID Data may be subject to an end user license agreement prescribed by the Member Participant’s applicable MLS if any and as amended from time to time. The Digital Millennium Copyright Act of 1998, 17 U.S.C. § 512 (the “DMCA”) provides recourse for copyright owners who believe that material appearing on the Internet infringes their rights under U.S. copyright law. If you believe in good faith that any content or material made available in connection with our website or services infringes your copyright, you (or your agent) may send us a notice requesting that the content or material be removed, or access to it blocked. Notices must be sent in writing by email to DMCAnotice@MLSGrid.com. The DMCA requires that your notice of alleged copyright infringement include the following information: (1) description of the copyrighted work that is the subject of claimed infringement; (2) description of the alleged infringing content and information sufficient to permit us to locate the content; (3) contact information for you, including your address, telephone number and email address; (4) a statement by you that you have a good faith belief that the content in the manner complained of is not authorized by the copyright owner, or its agent, or by the operation of any law; (5) a statement by you, signed under penalty of perjury, that the information in the notification is accurate and that you have the authority to enforce the copyrights that are claimed to be infringed; and (6) a physical or electronic signature of the copyright owner or a person authorized to act on the copyright owner’s behalf. Failure to include all of the above information may result in the delay of the processing of your complaint. Listing Information presented by local MLS brokerage: NewHomesMate LLC, DBA Jome (888) 486-2818
Read moreLast checked Dec 27, 9:10 pm
- Jome
- New homes search
- Florida
- Greater Orlando Area
- Polk County
- Davenport
- Providence: Estate Key Collection
- 4796 Waltham Forest Dr, Davenport, FL 33837


























































