














Book your tour. Save an average of $18,473. We'll handle the rest.
- Confirmed tours
- Get matched & compare top deals
- Expert help, no pressure
- No added fees
Estimated value based on Jome data, T&C apply


































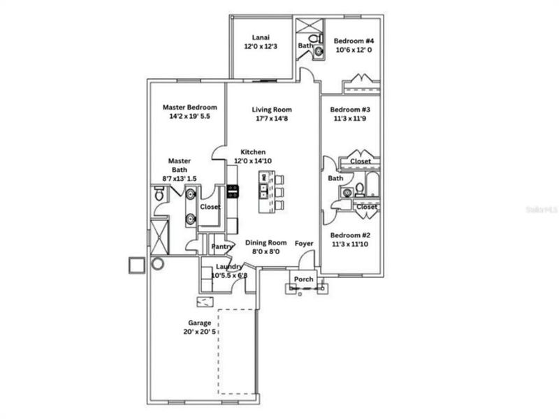
- 4 bd
- 3 ba
- 1,895 sqft
803 Allison Pl, Bartow, FL 33830
Why tour with Jome?
- No pressure toursTour at your own pace with no sales pressure
- Expert guidanceGet insights from our home buying experts
- Exclusive accessSee homes and deals not available elsewhere
Jome is featured in
- Single-Family
- Under construction
- $213.72/sqft
- $850/annual HOA
Home description
Construction JUST COMPLETED! Check out this beautiful Brand-New home FOR SALE! Your new home awaits you! Check out this beautiful Brand New 2025 Home FOR SALE! Located within a private and quiet gated lake community! Construction is estimated to be completed within 2 months! This quality custom home has 4 bedrooms with 3 full bathrooms. Everything is being built with special attention to detail and features many upgrades throughout including stone exterior accents, quartz countertops, upgraded trim, custom woodwork, and much more. The open floor plan is an amazing great room concept with tall ceilings that seamlessly blend the kitchen, living, and dining areas perfect for entertaining family and friends. The modern kitchen is the heart of the home and truly a chef's delight, complete with gorgeous cabinets, granite counters, tile backsplash, stainless appliances, island with bar seating, and a closet pantry with ample storage. You are going to LOVE the walk-in closet pantry! The luxurious master bedroom suite bath is another highlight of this incredible home. You will love the many windows, walk-in closet, and a private ensuite bathroom. The gorgeous master bathroom will have stunning tile, double vanities, a modern shower, and a linen closet. The split bedroom plan has three bedrooms and 2 more bathrooms across the house. The outdoor living here is fantastic! Enjoy sitting in the shade from your covered back porch. This home is NOT in a flood, zone x, so NO FLOOD insurance required. The location is great! Dining and shopping are just minutes away in charming Downtown Bartow. You will also appreciate the convenience between Tampa and Orlando. It is only 50 miles to Walt Disney World, 65 miles to Orlando airport, 48 miles to Tampa airport, and less than an hour and half to several Florida beaches. So many outstanding features about this lovely home! This home is JUST what you have been looking for! Why buy a resale home, when can have a beautiful brand new home with a warranty at a great price! Call today for more details and to set up your private showing. *** USE BUILDER'S PREFERRED LENDER AND GET CLOSING COSTS ASSISTANCE / RATE BUY DOWN, Must Call Jamie Brown, Compass Mortgage***
KELLER WILLIAMS REALTY SMART, MLS L4952109
Information last verified by Jome: Today at 10:15 AM (December 5, 2025)
Home highlights
Historic Florida park with river rapids, hiking, and camping under towering oaks near Tampa’s northeast suburbs.
Book your tour. Save an average of $18,473. We'll handle the rest.
We collect exclusive builder offers, book your tours, and support you from start to housewarming.
- Confirmed tours
- Get matched & compare top deals
- Expert help, no pressure
- No added fees
Estimated value based on Jome data, T&C apply
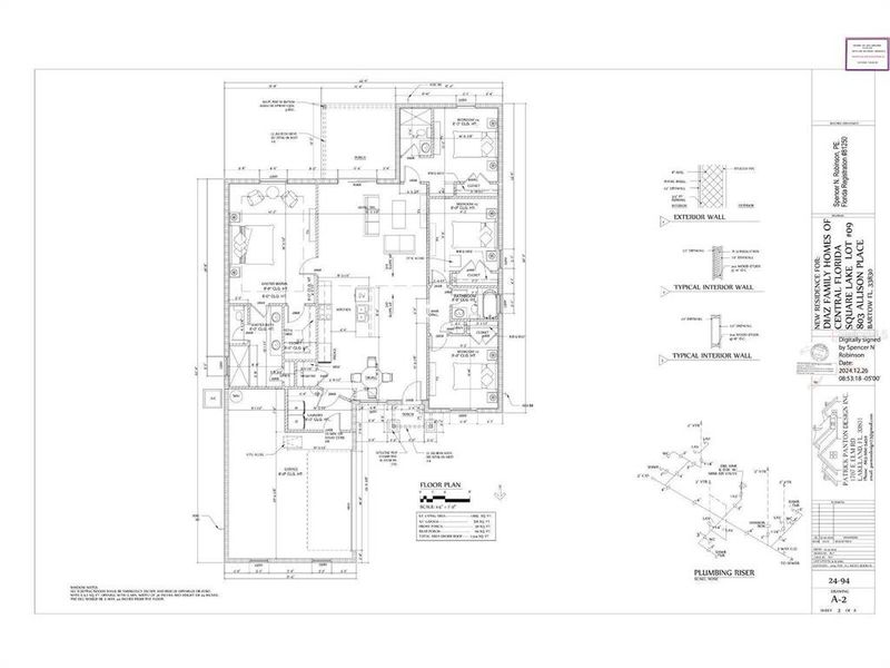
Home details
- Property status:
- Under construction
- Lot size (acres):
- 0.22
- Size:
- 1,895 sqft
- Stories:
- 1
- Beds:
- 4
- Baths:
- 3
- Garage spaces:
- 2
- Facing direction:
- Northwest
Construction details
- Completion Date:
- June, 2025
- Year Built:
- 2025
- Roof:
- Shingle Roofing
Home features & finishes
- Construction Materials:
- StuccoBlock
- Cooling:
- Ceiling Fan(s)Central Air
- Flooring:
- Vinyl FlooringCarpet Flooring
- Foundation Details:
- SlabConcrete Perimeter
- Garage/Parking:
- GarageSide Entry Garage/ParkingAttached Garage
- Kitchen:
- DishwasherMicrowave OvenRefrigeratorDisposalKitchen Range
- Laundry facilities:
- Utility/Laundry Room
- Lighting:
- Exterior Lighting
- Pets:
- Cat(s) Only AllowedDog(s) Only Allowed
- Rooms:
- Primary Bedroom On MainPrimary Bedroom Downstairs
Utility information
- Heating:
- Water Heater, Central Heating
- Utilities:
- Electricity Available, Underground Utilities, Cable Available
Community amenities
- Lake Access
- Gated Community
Neighborhood
Home address
Schools in Polk County School District
GreatSchools’ Summary Rating calculation is based on 4 of the school’s themed ratings, including test scores, student/academic progress, college readiness, and equity. This information should only be used as a reference. Jome is not affiliated with GreatSchools and does not endorse or guarantee this information. Please reach out to schools directly to verify all information and enrollment eligibility. Data provided by GreatSchools.org © 2025
Places of interest
Getting around
Air quality
Noise level
A Soundscore™ rating is a number between 50 (very loud) and 100 (very quiet) that tells you how loud a location is due to environmental noise.
Natural hazards risk
Climate hazards can impact homes and communities, with risks varying by location. These scores reflect the potential impact of natural disasters and climate-related risks on Polk County
Provided by FEMA

Considering this home?
Our expert will guide your tour, in-person or virtual
Need more information?
Text or call (888) 486-2818
Financials
Similar homes nearby
Recently added communities in this area
Nearby communities in Bartow
New homes in nearby cities
More New Homes in Bartow, FL
KELLER WILLIAMS REALTY SMART, MLS L4952109
Based on information submitted to the MLS GRID as of 10/21/2024 2:31 PM CDT. All data is obtained from various sources and may not have been verified by broker or MLS GRID. Supplied Open House Information is subject to change without notice. All information should be independently reviewed and verified for accuracy. Properties may or may not be listed by the office/agent presenting the information. Some IDX listings have been excluded from this website. Properties displayed may be listed or sold by various participants in the MLS. IDX information is provided exclusively for personal, non-commercial use, and may not be used for any purpose other than to identify prospective properties consumers may be interested in purchasing. Information is deemed reliable but not guaranteed. Use of the MLS GRID Data may be subject to an end user license agreement prescribed by the Member Participant’s applicable MLS if any and as amended from time to time. The Digital Millennium Copyright Act of 1998, 17 U.S.C. § 512 (the “DMCA”) provides recourse for copyright owners who believe that material appearing on the Internet infringes their rights under U.S. copyright law. If you believe in good faith that any content or material made available in connection with our website or services infringes your copyright, you (or your agent) may send us a notice requesting that the content or material be removed, or access to it blocked. Notices must be sent in writing by email to DMCAnotice@MLSGrid.com. The DMCA requires that your notice of alleged copyright infringement include the following information: (1) description of the copyrighted work that is the subject of claimed infringement; (2) description of the alleged infringing content and information sufficient to permit us to locate the content; (3) contact information for you, including your address, telephone number and email address; (4) a statement by you that you have a good faith belief that the content in the manner complained of is not authorized by the copyright owner, or its agent, or by the operation of any law; (5) a statement by you, signed under penalty of perjury, that the information in the notification is accurate and that you have the authority to enforce the copyrights that are claimed to be infringed; and (6) a physical or electronic signature of the copyright owner or a person authorized to act on the copyright owner’s behalf. Failure to include all of the above information may result in the delay of the processing of your complaint. Listing Information presented by local MLS brokerage: NewHomesMate LLC, DBA Jome (888) 486-2818
Read moreLast checked Dec 5, 9:10 pm
- Home
- New homes
- Florida
- Tampa Bay Area
- Polk County
- Bartow
- 803 Allison Pl, Bartow, FL 33830
























