














Book your tour. Save an average of $18,473. We'll handle the rest.
We collect exclusive builder offers, book your tours, and support you from start to housewarming.
- Confirmed tours
- Get matched & compare top deals
- Expert help, no pressure
- No added fees
Estimated value based on Jome data, T&C apply






- 4 bd
- 3.5 ba
- 3,300 sqft
119 Huron Ave, Tampa, FL 33606
Why tour with Jome?
- No pressure toursTour at your own pace with no sales pressure
- Expert guidanceGet insights from our home buying experts
- Exclusive accessSee homes and deals not available elsewhere
Jome is featured in
- Single-Family
- Ready by December 2026
- $665.15/sqft
- West facing
Home description
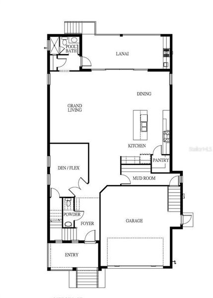
EXPECTED COMPLETION end of MAY, 2026!! Presenting this incredible pre-construction opportunity on Davis Islands — one of Tampa’s most iconic neighborhoods, known for its charm, walkability, and unbeatable location. This luxury residence boosts 3,300 square feet of open-concept living space - 4 BED(S), 3.5 BATH(S), a dedicated OFFICE, a LOFT, all thoughtfully designed with high-end finishes throughout. The layout is ideal for everyday living and entertaining, with a seamless indoor-outdoor flow that includes a custom OUTDOOR KITCHEN and a private POOL oasis. From the gourmet kitchen to the spa-style bathrooms and natural light-filled living areas, every detail is curated for luxury and comfort. What really sets this property apart is the location. Davis Islands offers a golf cart-friendly lifestyle, a private airport, marina, tennis courts, and dog beach — plus it’s zoned for A-RATED SCHOOLS. Additionally, You’re just minutes from Downtown Tampa, Water Street, Amalie Arena (home of the Tampa Bay Lightning), and the best local dining, coffee shops, and boutiques Davis Islands has to offer. Take a quick bike ride to the Davis Islands Yacht Club, Peter O. Knight Airport, tennis courts, or dog beach — it’s all part of the island lifestyle. This is a RARE OPPORTUNITY to own a brand-new, fully customized home in one of Tampa’s most established and vibrant communities. Features sheet and look-book available. Reach out to schedule your design appointment today!
SMITH & ASSOCIATES REAL ESTATE, MLS TB8380711
May also be listed on the Mobley Homes website
Information last verified by Jome: Today at 10:00 AM (March 6, 2026)
Book your tour. Save an average of $18,473. We'll handle the rest.
We collect exclusive builder offers, book your tours, and support you from start to housewarming.
- Confirmed tours
- Get matched & compare top deals
- Expert help, no pressure
- No added fees
Estimated value based on Jome data, T&C apply
Home details
- Property status:
- Under construction
- Neighborhood:
- Davis Island
- Lot size (acres):
- 0.15
- Size:
- 3,300 sqft
- Stories:
- 1
- Beds:
- 4
- Baths:
- 3
- Half baths:
- 1
- Garage spaces:
- 2
- Facing direction:
- West
Construction details
- Builder Name:
- Mobley Homes
- Completion Date:
- December, 2026
- Year Built:
- 2026
- Roof:
- Metal Roofing, Tile Roofing
Home features & finishes
- Appliances:
- Sprinkler System
- Construction Materials:
- Wood FrameBlock
- Cooling:
- Central Air
- Flooring:
- Carpet FlooringTile FlooringHardwood Flooring
- Foundation Details:
- Slab
- Garage/Parking:
- GarageAttached Garage
- Interior Features:
- Ceiling-HighWalk-In ClosetCrown MoldingSliding DoorsTray Ceiling
- Kitchen:
- DishwasherMicrowave OvenOvenRefrigeratorDisposalBuilt-In OvenCooktop
- Laundry facilities:
- Laundry Facilities On Upper LevelUtility/Laundry Room
- Property amenities:
- PoolIrrigation
- Rooms:
- Primary Bedroom On MainFamily RoomOpen Concept FloorplanPrimary Bedroom DownstairsPrimary Bedroom Upstairs

Get a consultation with our New Homes Expert
- See how your home builds wealth
- Plan your home-buying roadmap
- Discover hidden gems
Utility information
- Heating:
- Electric Heating, Central Heating
- Utilities:
- Electricity Available, Water Available
About the builder - Mobley Homes
Neighborhood
Home address
- Neighborhood:
- Davis Island
- City:
- Tampa
- County:
- Hillsborough
- Zip Code:
- 33606
Schools in Hillsborough County School District
- Grades 02-08Privatetampa pinnacle academy llc0.2 mi207 como stna
GreatSchools’ Summary Rating calculation is based on 4 of the school’s themed ratings, including test scores, student/academic progress, college readiness, and equity. This information should only be used as a reference. Jome is not affiliated with GreatSchools and does not endorse or guarantee this information. Please reach out to schools directly to verify all information and enrollment eligibility. Data provided by GreatSchools.org © 2025
Places of interest
Getting around
1 nearby routes: 1 bus, 0 rail, 0 otherAir quality
Noise level
A Soundscore™ rating is a number between 50 (very loud) and 100 (very quiet) that tells you how loud a location is due to environmental noise.
Natural hazards risk
Provided by FEMA

Considering this home?
Our expert will guide your tour, in-person or virtual
Need more information?
Text or call (888) 488-9243
Financials
Estimated monthly payment
Let us help you find your dream home
How many bedrooms are you looking for?
Similar homes nearby
Recently added communities in this area
Nearby communities in Tampa
New homes in nearby cities
More New Homes in Tampa, FL
SMITH & ASSOCIATES REAL ESTATE, MLS TB8380711
Based on information submitted to the MLS GRID as of 10/21/2024 2:31 PM CDT. All data is obtained from various sources and may not have been verified by broker or MLS GRID. Supplied Open House Information is subject to change without notice. All information should be independently reviewed and verified for accuracy. Properties may or may not be listed by the office/agent presenting the information. Some IDX listings have been excluded from this website. Properties displayed may be listed or sold by various participants in the MLS. IDX information is provided exclusively for personal, non-commercial use, and may not be used for any purpose other than to identify prospective properties consumers may be interested in purchasing. Information is deemed reliable but not guaranteed. Use of the MLS GRID Data may be subject to an end user license agreement prescribed by the Member Participant’s applicable MLS if any and as amended from time to time. The Digital Millennium Copyright Act of 1998, 17 U.S.C. § 512 (the “DMCA”) provides recourse for copyright owners who believe that material appearing on the Internet infringes their rights under U.S. copyright law. If you believe in good faith that any content or material made available in connection with our website or services infringes your copyright, you (or your agent) may send us a notice requesting that the content or material be removed, or access to it blocked. Notices must be sent in writing by email to DMCAnotice@MLSGrid.com. The DMCA requires that your notice of alleged copyright infringement include the following information: (1) description of the copyrighted work that is the subject of claimed infringement; (2) description of the alleged infringing content and information sufficient to permit us to locate the content; (3) contact information for you, including your address, telephone number and email address; (4) a statement by you that you have a good faith belief that the content in the manner complained of is not authorized by the copyright owner, or its agent, or by the operation of any law; (5) a statement by you, signed under penalty of perjury, that the information in the notification is accurate and that you have the authority to enforce the copyrights that are claimed to be infringed; and (6) a physical or electronic signature of the copyright owner or a person authorized to act on the copyright owner’s behalf. Failure to include all of the above information may result in the delay of the processing of your complaint. Listing Information presented by local MLS brokerage: NewHomesMate LLC, DBA Jome (888) 488-9243
Read moreLast checked Mar 6, 3:10 pm
- Jome
- New homes search
- Florida
- Tampa Bay Area
- Hillsborough County
- Tampa
- 119 Huron Ave, Tampa, FL 33606























