














Book your tour. Save an average of $18,473. We'll handle the rest.
- Confirmed tours
- Get matched & compare top deals
- Expert help, no pressure
- No added fees
Estimated value based on Jome data, T&C apply





Why tour with Jome?
- No pressure toursTour at your own pace with no sales pressure
- Expert guidanceGet insights from our home buying experts
- Exclusive accessSee homes and deals not available elsewhere
Jome is featured in
- Single-Family
- Quick move-in
- $186.82/sqft
- Southwest facing
Home description
BUILDER WILL CONTRIBUTE UP TO $10,000 TOWARDS BUYERS CLOSING COSTS/PRE-PAIDS AND/OR A MORTGAGE RATE BUY DOWN
(with a Preferred Lender).
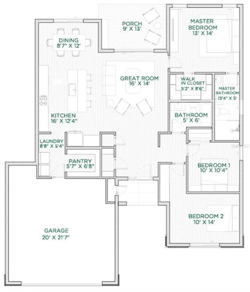
IBIS - This amazing home boasts a large open floor plan with tall ceilings and plenty of windows with an 8 ft slider for a bright, airy, open feeling. This elegant home offers 3 Generous sized bedrooms and 2 baths. Enter the home to a wide & open entry leading to the massive great room including a spacious dining area. The large chef’s kitchen overlooks the great room & dining area and includes quartz counter atop solid wood cabinets with soft closed doors and drawers with elegant hardware. A large, centered island completes this dream room. Just off the kitchen is a walk-in pantry and laundry room. The Primary bedroom is spacious with a massive walk-in closet and a top tier en-suite bathroom showcasing a tiled walk-in shower and dual sinks. Two additional bedrooms share your guest bathroom with a tub and shower. The entire family can comfortably spread out in the expansive great room. There is solid surface flooring throughout the home for easy cleaning. Upgraded raised height vanities and toilets in all bathrooms. Extra-large covered lanai for enjoying the Florida weather. Don't miss out on this incredible opportunity to own this beautiful home. Call Today!!! Photos coming soon.
ESTELA REALTY LLC, MLS OM700139
May also be listed on the Estela Living website
Information last verified by Jome: Today at 9:59 AM (January 15, 2026)
Book your tour. Save an average of $18,473. We'll handle the rest.
We collect exclusive builder offers, book your tours, and support you from start to housewarming.
- Confirmed tours
- Get matched & compare top deals
- Expert help, no pressure
- No added fees
Estimated value based on Jome data, T&C apply
Home details
- Property status:
- Move-in ready
- Lot size (acres):
- 0.23
- Size:
- 1,525 sqft
- Stories:
- 1
- Beds:
- 3
- Baths:
- 2
- Garage spaces:
- 2
- Facing direction:
- Southwest
Construction details
- Builder Name:
- Estela Living
- Completion Date:
- August, 2025
- Year Built:
- 2025
- Roof:
- Shingle Roofing
Home features & finishes
- Appliances:
- Exhaust Fan
- Construction Materials:
- StuccoBlockConcrete
- Cooling:
- Central Air
- Flooring:
- Ceramic FlooringTile Flooring
- Foundation Details:
- Slab
- Garage/Parking:
- GarageAttached Garage
- Interior Features:
- Ceiling-HighSliding Doors
- Kitchen:
- DishwasherMicrowave OvenRefrigeratorDisposalKitchen Range
- Laundry facilities:
- Utility/Laundry Room
- Property amenities:
- Cabinets
- Rooms:
- Primary Bedroom On MainDining RoomLiving RoomOpen Concept FloorplanPrimary Bedroom Downstairs

Get a consultation with our New Homes Expert
- See how your home builds wealth
- Plan your home-buying roadmap
- Discover hidden gems
Utility information
- Heating:
- Electric Heating, Thermostat, Water Heater, Central Heating
- Utilities:
- Electricity Available, Phone Available, Cable Available

Community details
Marion Oaks at Marion Oaks
by Estela Living, Ocala, FL
- 9 homes
- 1,287 - 1,873 sqft
View Marion Oaks details
More homes in Marion Oaks
- Home at address 8484 SW 138th Ln, Ocala, FL 34473

Home
$274,900
- 3 bd
- 2 ba
- 1,312 sqft
8484 SW 138th Ln, Ocala, FL 34473
- Home at address 780 Marion Oaks Pass, Ocala, FL 34473

Home
$279,900
- 3 bd
- 2 ba
- 1,525 sqft
780 Marion Oaks Pass, Ocala, FL 34473
- Home at address 7364 Sw 133 Lp Ne, Ocala, FL 34473

Home
$289,900
- 3 bd
- 2 ba
- 1,655 sqft
7364 Sw 133 Lp Ne, Ocala, FL 34473
- Home at address 7030 Sw 128Th St, Ocala, FL 34473

Home
$299,900
- 3 bd
- 2 ba
- 1,525 sqft
7030 Sw 128Th St, Ocala, FL 34473
- Home at address 13392 Sw 63Rd Ter, Ocala, FL 34473

Bimini
$319,900
- 3 bd
- 2 ba
- 1,711 sqft
13392 Sw 63Rd Ter, Ocala, FL 34473
- Home at address 13138 Sw 78Th Cir, Ocala, FL 34473

Home
$329,900
- 4 bd
- 2 ba
- 1,873 sqft
13138 Sw 78Th Cir, Ocala, FL 34473
About the builder - Estela Living
Neighborhood
Home address
Schools in Marion County School District
GreatSchools’ Summary Rating calculation is based on 4 of the school’s themed ratings, including test scores, student/academic progress, college readiness, and equity. This information should only be used as a reference. Jome is not affiliated with GreatSchools and does not endorse or guarantee this information. Please reach out to schools directly to verify all information and enrollment eligibility. Data provided by GreatSchools.org © 2025
Places of interest
Getting around
Air quality
Noise level
A Soundscore™ rating is a number between 50 (very loud) and 100 (very quiet) that tells you how loud a location is due to environmental noise.

Considering this home?
Our expert will guide your tour, in-person or virtual
Need more information?
Text or call (888) 486-2818
Financials
Estimated monthly payment
Let us help you find your dream home
How many bedrooms are you looking for?
Similar homes nearby
Recently added communities in this area
Nearby communities in Ocala
New homes in nearby cities
More New Homes in Ocala, FL
ESTELA REALTY LLC, MLS OM700139
Based on information submitted to the MLS GRID as of 10/21/2024 2:31 PM CDT. All data is obtained from various sources and may not have been verified by broker or MLS GRID. Supplied Open House Information is subject to change without notice. All information should be independently reviewed and verified for accuracy. Properties may or may not be listed by the office/agent presenting the information. Some IDX listings have been excluded from this website. Properties displayed may be listed or sold by various participants in the MLS. IDX information is provided exclusively for personal, non-commercial use, and may not be used for any purpose other than to identify prospective properties consumers may be interested in purchasing. Information is deemed reliable but not guaranteed. Use of the MLS GRID Data may be subject to an end user license agreement prescribed by the Member Participant’s applicable MLS if any and as amended from time to time. The Digital Millennium Copyright Act of 1998, 17 U.S.C. § 512 (the “DMCA”) provides recourse for copyright owners who believe that material appearing on the Internet infringes their rights under U.S. copyright law. If you believe in good faith that any content or material made available in connection with our website or services infringes your copyright, you (or your agent) may send us a notice requesting that the content or material be removed, or access to it blocked. Notices must be sent in writing by email to DMCAnotice@MLSGrid.com. The DMCA requires that your notice of alleged copyright infringement include the following information: (1) description of the copyrighted work that is the subject of claimed infringement; (2) description of the alleged infringing content and information sufficient to permit us to locate the content; (3) contact information for you, including your address, telephone number and email address; (4) a statement by you that you have a good faith belief that the content in the manner complained of is not authorized by the copyright owner, or its agent, or by the operation of any law; (5) a statement by you, signed under penalty of perjury, that the information in the notification is accurate and that you have the authority to enforce the copyrights that are claimed to be infringed; and (6) a physical or electronic signature of the copyright owner or a person authorized to act on the copyright owner’s behalf. Failure to include all of the above information may result in the delay of the processing of your complaint. Listing Information presented by local MLS brokerage: NewHomesMate LLC, DBA Jome (888) 486-2818
Read moreLast checked Jan 15, 9:10 am
- Jome
- New homes search
- Florida
- Gainesville-Ocala Area
- Marion County
- Ocala
- Marion Oaks
- 8272 Sw 139Th St, Ocala, FL 34473




























