














Book your tour. Save an average of $18,473. We'll handle the rest.
- Confirmed tours
- Get matched & compare top deals
- Expert help, no pressure
- No added fees
Estimated value based on Jome data, T&C apply


Why tour with Jome?
- No pressure toursTour at your own pace with no sales pressure
- Expert guidanceGet insights from our home buying experts
- Exclusive accessSee homes and deals not available elsewhere
Jome is featured in
- Single-Family
- Quick move-in
- $164.84/sqft
- $217/quarterly HOA
Home description
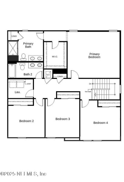
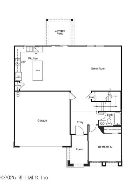
Visit this completed home today! This home features 4 bedrooms, 2 bath and a 2 car garage. Upon entering you will see the spacious great room and kitchen with upgraded tile. The kitchen includes Woodmont® 42-in. upper cabinets, island and Whirlpool® stainless steel appliances. Relax in the primary suite, which features a large walk-in closet and connecting bath that offers quartz countertops and dual-sink vanity. Additional highlights include a dedicated laundry room, security system pre-wiring, smart home package, ENERGY STAR® certified LED lighting, Moen® faucets, Kohler® sinks and a sprinkler system. Enjoy your evenings on the covered back patio. KB Home at Copper Ridge community pool, playground, and dog parks are now open! closing cost assistance available on this home.
ROUND TABLE REALTY, MLS 2094163
May also be listed on the KB Home website
Information last verified by Jome: Yesterday at 1:24 AM (January 16, 2026)
Book your tour. Save an average of $18,473. We'll handle the rest.
We collect exclusive builder offers, book your tours, and support you from start to housewarming.
- Confirmed tours
- Get matched & compare top deals
- Expert help, no pressure
- No added fees
Estimated value based on Jome data, T&C apply
Home details
- Property status:
- Move-in ready
- Neighborhood:
- Chimney Lakes
- Size:
- 2,566 sqft
- Stories:
- 2
- Beds:
- 5
- Baths:
- 3
- Garage spaces:
- 2
- Facing direction:
- East
Construction details
- Builder Name:
- KB Home
- Year Built:
- 2025
Home features & finishes
- Appliances:
- Ice MakerSprinkler System
- Construction Materials:
- CementFrameStone
- Cooling:
- Central Air
- Flooring:
- Vinyl FlooringCarpet FlooringTile Flooring
- Garage/Parking:
- Door OpenerGarageAttached Garage
- Interior Features:
- Walk-In ClosetFull Bath on MainFoyerPantry
- Kitchen:
- DishwasherMicrowave OvenRefrigeratorDisposalStainless Steel AppliancesGas CooktopQuartz countertopKitchen IslandGas OvenKitchen Range
- Laundry facilities:
- Utility/Laundry Room
- Property amenities:
- BackyardPatioPorch
- Rooms:
- KitchenFamily RoomOpen Concept FloorplanPrimary Bedroom Upstairs
- Security system:
- Security SystemSmoke DetectorCarbon Monoxide Detector

Get a consultation with our New Homes Expert
- See how your home builds wealth
- Plan your home-buying roadmap
- Discover hidden gems
Utility information
- Heating:
- Thermostat, Water Heater, Central Heating, Tankless water heater
- Utilities:
- Electricity Available, Natural Gas Available, Sewer Available, Water Available

Community details
Copper Ridge
by KB Home, Jacksonville, FL
- 5 homes
- 7 plans
- 1,286 - 2,766 sqft
View Copper Ridge details
More homes in Copper Ridge
- Home at address 7714 Rippa Valley Wy, Jacksonville, FL 32222

Home
$332,990
- 3 bd
- 2 ba
- 1,541 sqft
7714 Rippa Valley Wy, Jacksonville, FL 32222
- Home at address 11167 Spring Meadows Rd, Jacksonville, FL 32222

Home
$349,990
- 4 bd
- 2 ba
- 1,707 sqft
11167 Spring Meadows Rd, Jacksonville, FL 32222
- Home at address 7839 Rippa Valley Wy, Jacksonville, FL 32222

Home
$359,990
- 4 bd
- 2 ba
- 1,933 sqft
7839 Rippa Valley Wy, Jacksonville, FL 32222
- Home at address 7798 Rippa Valley Wy, Jacksonville, FL 32222

Home
$420,990
- 4 bd
- 3 ba
- 2,566 sqft
7798 Rippa Valley Wy, Jacksonville, FL 32222
Floor plans in Copper Ridge
About the builder - KB Home
Neighborhood
Home address
- Neighborhood:
- Chimney Lakes
- City:
- Jacksonville
Schools in Duval County School District
- Grades 06-12Chartersan jose early college at cecil3.8 mi13520 fscj cecil drna
GreatSchools’ Summary Rating calculation is based on 4 of the school’s themed ratings, including test scores, student/academic progress, college readiness, and equity. This information should only be used as a reference. Jome is not affiliated with GreatSchools and does not endorse or guarantee this information. Please reach out to schools directly to verify all information and enrollment eligibility. Data provided by GreatSchools.org © 2025
Places of interest
Getting around
Air quality
Noise level
A Soundscore™ rating is a number between 50 (very loud) and 100 (very quiet) that tells you how loud a location is due to environmental noise.

Considering this home?
Our expert will guide your tour, in-person or virtual
Need more information?
Text or call (888) 486-2818
Financials
Estimated monthly payment
Let us help you find your dream home
How many bedrooms are you looking for?
Similar homes nearby
Recently added communities in this area
Nearby communities in Jacksonville
New homes in nearby cities
More New Homes in Jacksonville, FL
ROUND TABLE REALTY, MLS 2094163
IDX information is provided exclusively for personal, non-commercial use, and may not be used for any purpose other than to identify prospective properties consumers may be interested in purchasing. Data is deemed reliable but is not guaranteed accurate by NEFMLS. © 2025 Northeast Florida Multiple Listing Service, Inc. All rights reserved.
Read moreLast checked Jan 16, 11:00 pm
- Jome
- New homes search
- Florida
- Jacksonville Metropolitan Area
- Duval County
- Jacksonville
- Copper Ridge
- 7726 Rippa Valley Wy, Jacksonville, FL 32222






























