














Book your tour. Save an average of $18,473. We'll handle the rest.
- Confirmed tours
- Get matched & compare top deals
- Expert help, no pressure
- No added fees
Estimated value based on Jome data, T&C apply











































- 4 bd
- 3.5 ba
- 3,692 sqft
14354 Crest Palm Ave, Windermere, FL 34786
Why tour with Jome?
- No pressure toursTour at your own pace with no sales pressure
- Expert guidanceGet insights from our home buying experts
- Exclusive accessSee homes and deals not available elsewhere
Jome is featured in
- Single-Family
- Quick move-in
- $291.98/sqft
- $215/monthly HOA
Home description
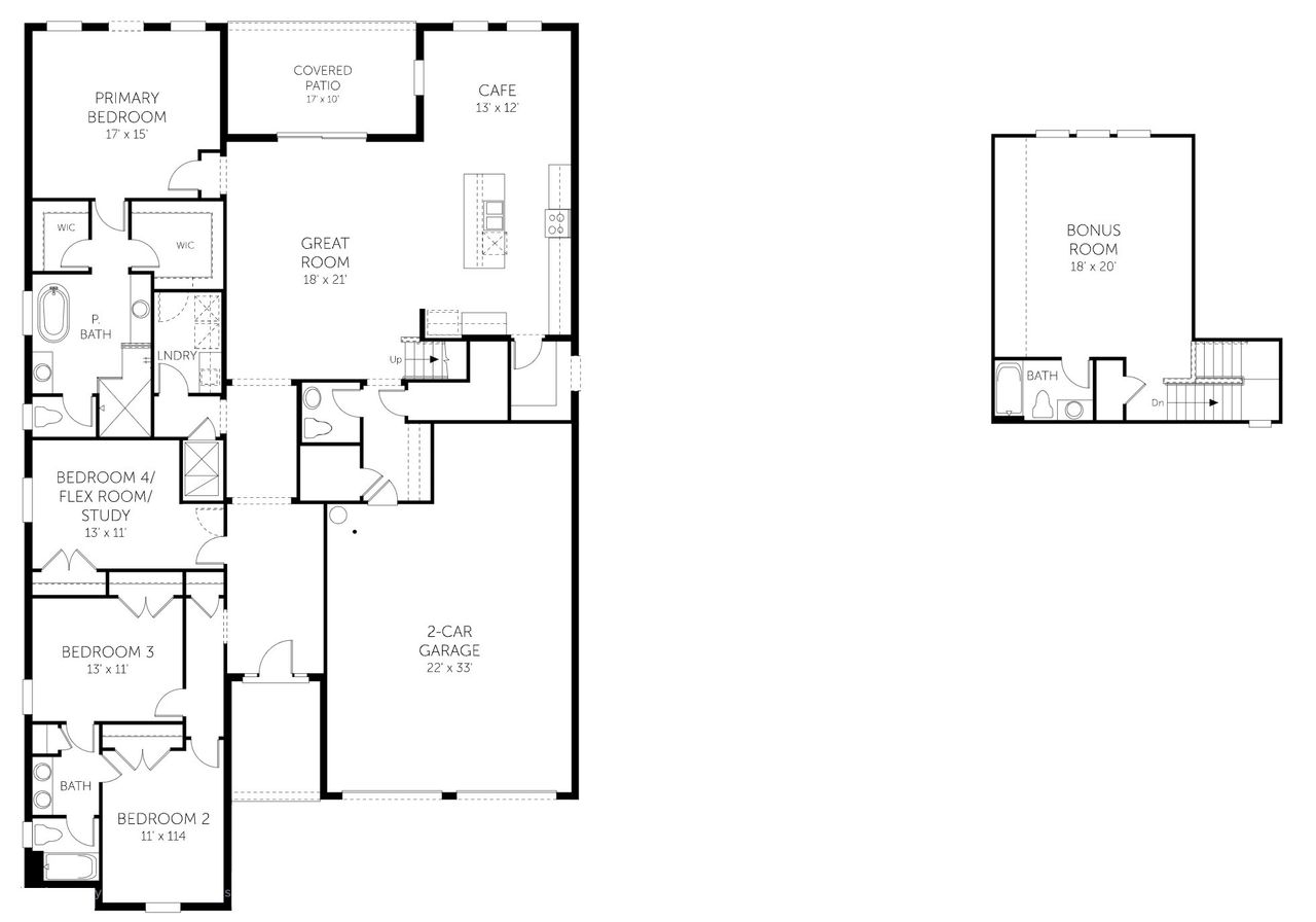
The Tidewater with Bonus floorplan offers a versatile and spacious two-story layout, featuring 4 bedrooms and 3.5 bathrooms. Spanning 3,692 sq. ft., this home includes a large two-car garage for ample storage and convenience. The first floor boasts an inviting great room connected to an open kitchen and dining area, perfect for entertaining. The owner’s suite provides a private retreat with a generous walk-in closet and en-suite bathroom. An optional study in Bedroom 4 adds flexibility for a home office or guest room as well as a bonus room and full bath on the second floor with its thoughtful design and roomy layout, the Tidewater floorplan combines comfort and practicality for modern living.
May also be listed on the Dream Finders Homes website
Information last verified by Jome: Today at 5:06 AM (December 30, 2025)
Home highlights
World-famous Orlando resort with four theme parks, immersive entertainment, and family living nearby.
Book your tour. Save an average of $18,473. We'll handle the rest.
We collect exclusive builder offers, book your tours, and support you from start to housewarming.
- Confirmed tours
- Get matched & compare top deals
- Expert help, no pressure
- No added fees
Estimated value based on Jome data, T&C apply
Home details
- Property status:
- Move-in ready
- Lot width (feet):
- 65
- Size:
- 3,692 sqft
- Stories:
- 2
- Beds:
- 4
- Baths:
- 3
- Half baths:
- 1
- Garage spaces:
- 2
- Facing direction:
- South
Construction details
- Builder Name:
- Dream Finders Homes
Home features & finishes
- Appliances:
- Sprinkler System
- Garage/Parking:
- GarageAttached Garage
- Interior Features:
- Ceiling-HighWalk-In ClosetFoyerPantry
- Kitchen:
- Gas Cooktop
- Laundry facilities:
- Utility/Laundry Room
- Property amenities:
- Bathtub in primaryPatio
- Rooms:
- Flex RoomPrimary Bedroom On MainKitchenPowder RoomOffice/StudyDining RoomFamily RoomPrimary Bedroom Downstairs

Get a consultation with our New Homes Expert
- See how your home builds wealth
- Plan your home-buying roadmap
- Discover hidden gems

Community details
Palms at Windermere
by Dream Finders Homes, Windermere, FL
- 9 homes
- 8 plans
- 2,687 - 4,571 sqft
View Palms at Windermere details
More homes in Palms at Windermere
Floor plans in Palms at Windermere
About the builder - Dream Finders Homes
Neighborhood
Home address
- City:
- Windermere
- County:
- Orange
- Zip Code:
- 34786
Schools in Orange County School District
GreatSchools’ Summary Rating calculation is based on 4 of the school’s themed ratings, including test scores, student/academic progress, college readiness, and equity. This information should only be used as a reference. Jome is not affiliated with GreatSchools and does not endorse or guarantee this information. Please reach out to schools directly to verify all information and enrollment eligibility. Data provided by GreatSchools.org © 2025
Places of interest
Getting around
Noise level
A Soundscore™ rating is a number between 50 (very loud) and 100 (very quiet) that tells you how loud a location is due to environmental noise.
Natural hazards risk
Climate hazards can impact homes and communities, with risks varying by location. These scores reflect the potential impact of natural disasters and climate-related risks on Orange County
Provided by FEMA

Considering this home?
Our expert will guide your tour, in-person or virtual
Need more information?
Text or call (888) 486-2818
Financials
Estimated monthly payment
Let us help you find your dream home
How many bedrooms are you looking for?
Similar homes nearby
Recently added communities in this area
Nearby communities in Windermere
New homes in nearby cities
More New Homes in Windermere, FL
- Jome
- New homes search
- Florida
- Greater Orlando Area
- Orange County
- Windermere
- Palms at Windermere
- 14354 Crest Palm Ave, Windermere, FL 34786





































