













Book your tour. Save an average of $18,473. We'll handle the rest.
We collect exclusive builder offers, book your tours, and support you from start to housewarming.
- Confirmed tours
- Get matched & compare top deals
- Expert help, no pressure
- No added fees
Estimated value based on Jome data, T&C apply























































- 3 bd
- 3 ba
- 2,200 sqft
187 145Th Ave E, Unit 4, St. Petersburg, FL 33708
Why tour with Jome?
- No pressure toursTour at your own pace with no sales pressure
- Expert guidanceGet insights from our home buying experts
- Exclusive accessSee homes and deals not available elsewhere
Jome is featured in
- Townhouse
- Quick move-in
- $500/sqft
- $797/monthly HOA
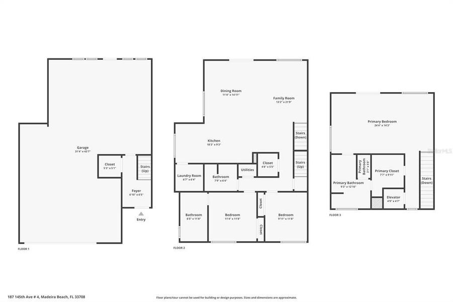
Home description
STEPS FROM THE BEACH!Welcome to this stunning, brand-new END-UNIT townhome on sunny Madeira Beach, just a short walk to the soft, sandy shoreline. Thoughtfully designed and built for coastal living, this high-end residence offers exceptional light, space, and peace of mind with hurricane-impact windows and doors throughout and an impressive 16.22-foot flood elevation. Offering exceptional flexibility for today’s buyers—seller will consider cash, traditional financing, and CRYPTOCURRENCY as acceptable forms of purchase.
The second-floor living level features expansive entertaining spaces anchored by a chef's kitchen with a Viking appliance package, 3cm quartz countertops, shaker-style cabinetry, and a large island. A stylish dry bar with wine cooler and glass-front cabinetry enhances the flow for hosting. The laundry room is unusually well-appointed with a sink, folding station, and storage. Step out to the private terrace to enjoy sunrise or sunset with Gulf breezes.
A secondary bedroom with en suite bath and frameless glass walk-in shower offers comfort for guests, while an additional bedroom and hall bath provide flexibility for visitors or a home office.
The entire third floor is dedicated to the primary suite, featuring commanding views, a private terrace, spa-inspired bath, and a walk-in closet with custom built-ins.
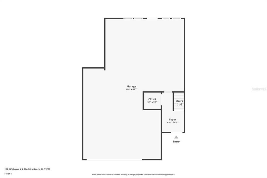
The ground-level garage spans the full footprint of the home, offering space for at least four vehicles plus storage, along with a private two-car-wide driveway-a rare find at the beach.
Designed for effortless entertaining and everyday enjoyment, this exceptional townhome delivers the best of luxury new construction and walkable beach living in one of Madeira Beach's most desirable locations. Come see this one for yourself!
MICHAEL SAUNDERS & COMPANY, MLS TB8459709
Information last verified by Jome: Yesterday at 10:04 AM (March 6, 2026)
Book your tour. Save an average of $18,473. We'll handle the rest.
We collect exclusive builder offers, book your tours, and support you from start to housewarming.
- Confirmed tours
- Get matched & compare top deals
- Expert help, no pressure
- No added fees
Estimated value based on Jome data, T&C apply
Home details
- Property status:
- Move-in ready
- Lot size (acres):
- 0.12
- Size:
- 2,200 sqft
- Stories:
- 3+
- Beds:
- 3
- Baths:
- 3
- Garage spaces:
- 4
- Facing direction:
- North
Construction details
- Year Built:
- 2025
- Roof:
- Metal Roofing, Shingle Roofing
Home features & finishes
- Appliances:
- Exhaust FanSprinkler System
- Construction Materials:
- StuccoWood FrameBlockVinyl Siding
- Cooling:
- Ceiling Fan(s)Central Air
- Flooring:
- Ceramic FlooringTile FlooringHardwood Flooring
- Foundation Details:
- Slab
- Garage/Parking:
- Door OpenerAssigned parkingGarageCovered Garage/ParkingOff-Street Garage/ParkingGolf Cart GarageAttached GarageTandem Parking
- Interior Features:
- Ceiling-HighWalk-In ClosetCrown MoldingSliding DoorsStorageTray CeilingWet BarFrench Doors
- Kitchen:
- Wine RefrigeratorDishwasherMicrowave OvenOvenRefrigeratorDisposalBuilt-In OvenConvection OvenCooktopKitchen Range
- Laundry facilities:
- DryerWasherUtility/Laundry Room
- Lighting:
- Exterior Lighting
- Pets:
- Pets AllowedCat(s) Only AllowedDog(s) Only Allowed
- Property amenities:
- BarBalconyDeckCabinetsIrrigationPorch
- Rooms:
- KitchenDining RoomFamily RoomLiving RoomOpen Concept FloorplanPrimary Bedroom Upstairs
- Security system:
- Smoke Detector

Get a consultation with our New Homes Expert
- See how your home builds wealth
- Plan your home-buying roadmap
- Discover hidden gems
Utility information
- Heating:
- Electric Heating, Thermostat, Water Heater, Central Heating, Tankless water heater
- Utilities:
- Electricity Available, Phone Available, Cable Available, Water Available
Community amenities
- Waterfront View
Neighborhood
Home address
- City:
- St. Petersburg
- County:
- Pinellas
- Zip Code:
- 33708
Schools in Pinellas County School District
GreatSchools’ Summary Rating calculation is based on 4 of the school’s themed ratings, including test scores, student/academic progress, college readiness, and equity. This information should only be used as a reference. Jome is not affiliated with GreatSchools and does not endorse or guarantee this information. Please reach out to schools directly to verify all information and enrollment eligibility. Data provided by GreatSchools.org © 2025
Places of interest
Getting around
Air quality
Noise level
A Soundscore™ rating is a number between 50 (very loud) and 100 (very quiet) that tells you how loud a location is due to environmental noise.
Natural hazards risk
Provided by FEMA

Considering this home?
Our expert will guide your tour, in-person or virtual
Need more information?
Text or call (888) 488-9243
Financials
Estimated monthly payment
Let us help you find your dream home
How many bedrooms are you looking for?
Similar homes nearby
Recently added communities in this area
Nearby communities in St. Petersburg
New homes in nearby cities
More New Homes in St. Petersburg, FL
MICHAEL SAUNDERS & COMPANY, MLS TB8459709
Based on information submitted to the MLS GRID as of 10/21/2024 2:31 PM CDT. All data is obtained from various sources and may not have been verified by broker or MLS GRID. Supplied Open House Information is subject to change without notice. All information should be independently reviewed and verified for accuracy. Properties may or may not be listed by the office/agent presenting the information. Some IDX listings have been excluded from this website. Properties displayed may be listed or sold by various participants in the MLS. IDX information is provided exclusively for personal, non-commercial use, and may not be used for any purpose other than to identify prospective properties consumers may be interested in purchasing. Information is deemed reliable but not guaranteed. Use of the MLS GRID Data may be subject to an end user license agreement prescribed by the Member Participant’s applicable MLS if any and as amended from time to time. The Digital Millennium Copyright Act of 1998, 17 U.S.C. § 512 (the “DMCA”) provides recourse for copyright owners who believe that material appearing on the Internet infringes their rights under U.S. copyright law. If you believe in good faith that any content or material made available in connection with our website or services infringes your copyright, you (or your agent) may send us a notice requesting that the content or material be removed, or access to it blocked. Notices must be sent in writing by email to DMCAnotice@MLSGrid.com. The DMCA requires that your notice of alleged copyright infringement include the following information: (1) description of the copyrighted work that is the subject of claimed infringement; (2) description of the alleged infringing content and information sufficient to permit us to locate the content; (3) contact information for you, including your address, telephone number and email address; (4) a statement by you that you have a good faith belief that the content in the manner complained of is not authorized by the copyright owner, or its agent, or by the operation of any law; (5) a statement by you, signed under penalty of perjury, that the information in the notification is accurate and that you have the authority to enforce the copyrights that are claimed to be infringed; and (6) a physical or electronic signature of the copyright owner or a person authorized to act on the copyright owner’s behalf. Failure to include all of the above information may result in the delay of the processing of your complaint. Listing Information presented by local MLS brokerage: NewHomesMate LLC, DBA Jome (888) 488-9243
Read moreLast checked Mar 7, 3:10 am
- Jome
- New homes search
- Florida
- Tampa Bay Area
- Pinellas County
- St. Petersburg
- 187 145Th Ave E, Unit 4, St. Petersburg, FL 33708



























