














Book your tour. Save an average of $18,473. We'll handle the rest.
- Confirmed tours
- Get matched & compare top deals
- Expert help, no pressure
- No added fees
Estimated value based on Jome data, T&C apply

































- 5 bd
- 5 ba
- 4,462 sqft
572 Sanctuary Golf Pl, Apopka, FL 32712
Why tour with Jome?
- No pressure toursTour at your own pace with no sales pressure
- Expert guidanceGet insights from our home buying experts
- Exclusive accessSee homes and deals not available elsewhere
Jome is featured in
- Single-Family
- Ready by May 2026
- $280.14/sqft
- $100/monthly HOA
Home description
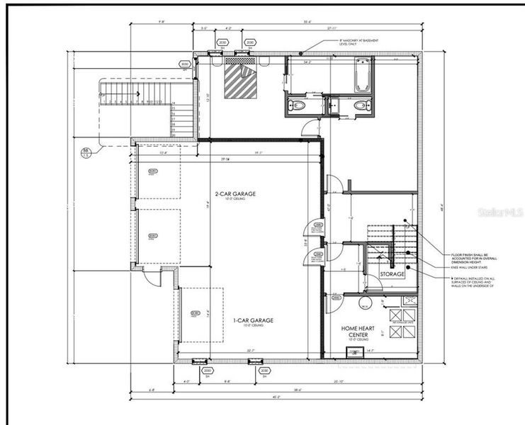
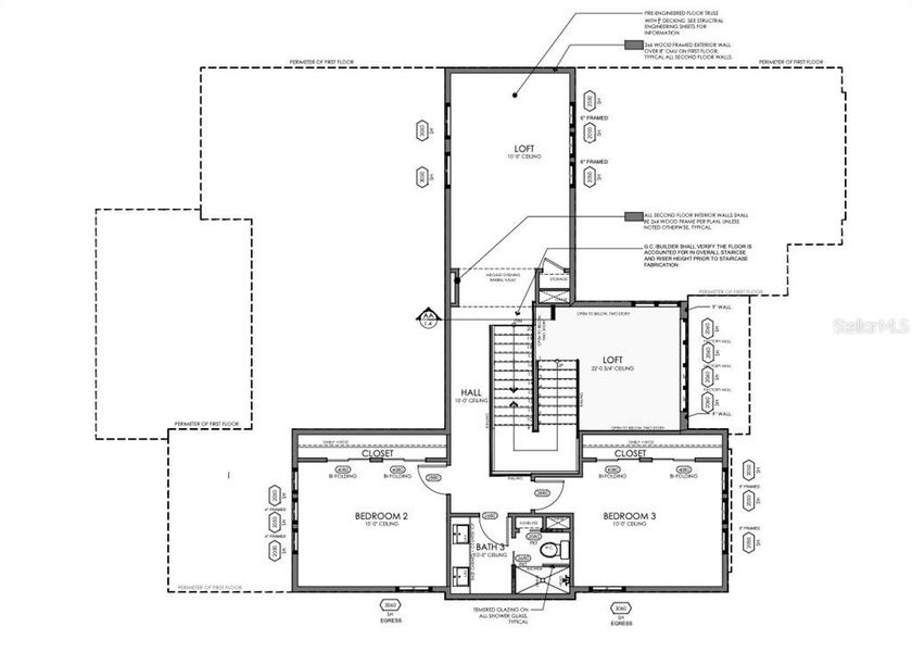
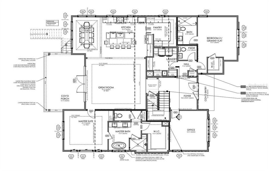
WALK-OUT Basement home with all the Custom Finishes! Talbot Custom Homes brings you this tri-level home with a 3 car garage and mother-in law suite, renowned for their energy-efficient and high-quality construction in Central Florida. Located in the gated Sanctuary Golf Estates, this 3-level masterpiece offers an incredible 4,400 square feet of air-conditioned living space (5,684 total under roof) and sits on a serene .29-acre lot with conservation tree views. ACT NOW and still choose your finishes & design selections! This home stands out as one of the most unique properties in Florida, boasting a rare walk-out basement. Built into the hillside with durable poured concrete walls, the basement features a 1-bedroom, 1-bathroom multi-generational suite, complete with kitchen plumbing and a private living space—ideal for extended family or guests. This level also includes a spacious 3-car garage, ensuring plenty of room for vehicles and storage. On the main level, you’ll find a light-filled, open-concept living area with designer details throughout. The kitchen showcases quartz countertops, a huge walk in pantry, high-end cabinetry, and luxury appliances, all seamlessly tied together with a modern aesthetic. The white oak engineered hardwood flooring adds warmth and elegance, while the living space flows out to a cantilevered deck overlooking your private nature preserve, with a dedicated staircase to get down to the lower level from the deck. The primary suite is a sanctuary in itself, featuring expansive windows, a large walk-in closet, and a contemporary spa-like bathroom. This floor also includes a dedicated office space, ideal for work-from-home professionals. The upper level offers even more space for your family with 2 additional bedrooms, and a versatile loft. Altogether, this home includes 5 bedrooms, 4 and 2 half bathrooms, an office, and a loft, providing the perfect blend of luxury and functionality. Talbot Custom Homes & their professional design team has spared no expense in delivering superior finishes and attention to detail, with some that you can still customize to your taste—choose your finishes now before it’s too late! Located less than 30 minutes from Downtown Orlando & Winter Park Florida, as well as less than 25 minutes to Plant Street winter Garden, this home provides peaceful living with convenient access to the 414 connector, the 429, wekiva state park, shopping, dining, and entertainment. Don’t miss your chance to own this brand-new luxury custom home, ready in Spring 2026. Contact us today to schedule your private tour and make this exceptional property yours!
ORLANDO PROPERTY ADVISORS, MLS O6347973
Information last verified by Jome: Today at 10:13 AM (January 14, 2026)
Home highlights
Natural spring park near Orlando with clear swimming waters, canoeing, and trails amid lush Central Florida forest.
Book your tour. Save an average of $18,473. We'll handle the rest.
We collect exclusive builder offers, book your tours, and support you from start to housewarming.
- Confirmed tours
- Get matched & compare top deals
- Expert help, no pressure
- No added fees
Estimated value based on Jome data, T&C apply
Home details
- Property status:
- Under construction
- Lot size (acres):
- 0.29
- Size:
- 4,462 sqft
- Stories:
- 3+
- Beds:
- 5
- Baths:
- 5
- Garage spaces:
- 3
- Facing direction:
- North
Construction details
- Completion Date:
- May, 2026
- Year Built:
- 2025
- Roof:
- Shingle Roofing
Home features & finishes
- Construction Materials:
- StuccoWood FrameConcrete
- Cooling:
- Central Air
- Flooring:
- Carpet FlooringTile FlooringHardwood Flooring
- Foundation Details:
- Slab
- Garage/Parking:
- Door OpenerGarageSide Entry Garage/ParkingAttached Garage
- Home amenities:
- Internet
- Interior Features:
- Walk-In ClosetSliding DoorsLoft
- Kitchen:
- DishwasherMicrowave OvenOvenRefrigeratorDisposalBuilt-In OvenConvection OvenCook TopKitchen Range
- Laundry facilities:
- Utility/Laundry Room
- Pets:
- Pets AllowedPets Allowed with Breed RestrictionsCat(s) Only AllowedDog(s) Only Allowed
- Property amenities:
- SidewalkBasementBalconyPorch
- Rooms:
- Den RoomOffice/Study

Get a consultation with our New Homes Expert
- See how your home builds wealth
- Plan your home-buying roadmap
- Discover hidden gems
Utility information
- Heating:
- Electric Heating, Water Heater, Central Heating, Tankless water heater
- Utilities:
- Electricity Available, Phone Available, Cable Available, Sewer Available, Water Available
Community amenities
- Woods View
- Playground
- Park Nearby
- Greenbelt View
Neighborhood
Home address
Schools in Orange County School District
GreatSchools’ Summary Rating calculation is based on 4 of the school’s themed ratings, including test scores, student/academic progress, college readiness, and equity. This information should only be used as a reference. Jome is not affiliated with GreatSchools and does not endorse or guarantee this information. Please reach out to schools directly to verify all information and enrollment eligibility. Data provided by GreatSchools.org © 2025
Places of interest
Getting around
1 nearby routes: 1 bus, 0 rail, 0 otherNatural hazards risk
Provided by FEMA

Considering this home?
Our expert will guide your tour, in-person or virtual
Need more information?
Text or call (888) 486-2818
Financials
Estimated monthly payment
Let us help you find your dream home
How many bedrooms are you looking for?
Similar homes nearby
Recently added communities in this area
Nearby communities in Apopka
New homes in nearby cities
More New Homes in Apopka, FL
ORLANDO PROPERTY ADVISORS, MLS O6347973
Based on information submitted to the MLS GRID as of 10/21/2024 2:31 PM CDT. All data is obtained from various sources and may not have been verified by broker or MLS GRID. Supplied Open House Information is subject to change without notice. All information should be independently reviewed and verified for accuracy. Properties may or may not be listed by the office/agent presenting the information. Some IDX listings have been excluded from this website. Properties displayed may be listed or sold by various participants in the MLS. IDX information is provided exclusively for personal, non-commercial use, and may not be used for any purpose other than to identify prospective properties consumers may be interested in purchasing. Information is deemed reliable but not guaranteed. Use of the MLS GRID Data may be subject to an end user license agreement prescribed by the Member Participant’s applicable MLS if any and as amended from time to time. The Digital Millennium Copyright Act of 1998, 17 U.S.C. § 512 (the “DMCA”) provides recourse for copyright owners who believe that material appearing on the Internet infringes their rights under U.S. copyright law. If you believe in good faith that any content or material made available in connection with our website or services infringes your copyright, you (or your agent) may send us a notice requesting that the content or material be removed, or access to it blocked. Notices must be sent in writing by email to DMCAnotice@MLSGrid.com. The DMCA requires that your notice of alleged copyright infringement include the following information: (1) description of the copyrighted work that is the subject of claimed infringement; (2) description of the alleged infringing content and information sufficient to permit us to locate the content; (3) contact information for you, including your address, telephone number and email address; (4) a statement by you that you have a good faith belief that the content in the manner complained of is not authorized by the copyright owner, or its agent, or by the operation of any law; (5) a statement by you, signed under penalty of perjury, that the information in the notification is accurate and that you have the authority to enforce the copyrights that are claimed to be infringed; and (6) a physical or electronic signature of the copyright owner or a person authorized to act on the copyright owner’s behalf. Failure to include all of the above information may result in the delay of the processing of your complaint. Listing Information presented by local MLS brokerage: NewHomesMate LLC, DBA Jome (888) 486-2818
Read moreLast checked Jan 14, 9:10 am
- Jome
- New homes search
- Florida
- Greater Orlando Area
- Orange County
- Apopka
- 572 Sanctuary Golf Pl, Apopka, FL 32712


























