




Book your tour. Save an average of $18,473. We'll handle the rest.
- Confirmed tours
- Get matched & compare top deals
- Expert help, no pressure
- No added fees
Estimated value based on Jome data, T&C apply
- 5 bd
- 4.5 ba
- 3,679 sqft
3220 W Villa Rosa St, Tampa, FL 33611
Why tour with Jome?
- No pressure toursTour at your own pace with no sales pressure
- Expert guidanceGet insights from our home buying experts
- Exclusive accessSee homes and deals not available elsewhere
Jome is featured in
- Single-Family
- $475.67/sqft
- North facing
- 0.15-acre lot
Home description
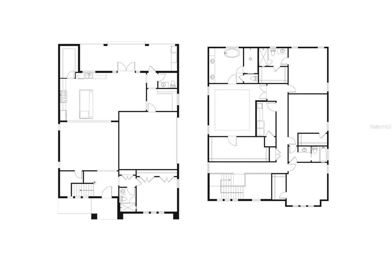
Discover the perfect blend of luxury and functionality in this stunning new construction by Milana Custom Homes, located in the heart of South Tampa. This 2-story single-family home offers 3,679 square feet of meticulously designed living space, featuring 5 bedrooms, 4.5 bathrooms, and a 2-car garage. Enter through the inviting foyer, where you'll find a guest suite before being drawn into the expansive family room. The open-concept layout seamlessly connects the family room to the chef-inspired kitchen, complete with a large island and a spacious walk-in pantry. Adjacent to the kitchen is the dining room, which offers convenient access to the pool bath, a mudroom, and the garage. Step outside to your private oasis, featuring a covered lanai, sparkling pool, and a fully equipped outdoor kitchen, perfect for entertaining.
The second floor is home to the luxurious primary suite, boasting a generous walk-in closet and an elegant primary bath with dual sinks, a soaking tub, and a separate shower. A centrally located laundry room adds convenience, while three additional bedrooms provide ample space for family or guests. One bedroom features an en-suite bath and walk-in closet, while the other two share a thoughtfully designed bathroom. With impeccable craftsmanship and attention to detail, this home is designed to elevate your lifestyle. Don't miss the opportunity to make this South Tampa gem yours!
CENTURY 21 LIST WITH BEGGINS, MLS TB8331782
Information last verified by Jome: Today at 10:02 AM (December 14, 2025)
Home highlights
MacDill AFB offers secure housing, top-rated schools, and abundant amenities in vibrant South Tampa.
Book your tour. Save an average of $18,473. We'll handle the rest.
We collect exclusive builder offers, book your tours, and support you from start to housewarming.
- Confirmed tours
- Get matched & compare top deals
- Expert help, no pressure
- No added fees
Estimated value based on Jome data, T&C apply
Home details
- Property status:
- Pending/Under contract
- Neighborhood:
- Bayshore Beautiful
- Lot size (acres):
- 0.15
- Size:
- 3,679 sqft
- Stories:
- 2
- Beds:
- 5
- Baths:
- 4.5
- Garage spaces:
- 2
- Facing direction:
- North
Construction details
- Completion Date:
- December, 2025
- Year Built:
- 2025
Home features & finishes
- Construction Materials:
- Block
- Cooling:
- Central Air
- Foundation Details:
- Slab
- Garage/Parking:
- GarageAttached Garage
- Interior Features:
- Walk-In Closet
- Kitchen:
- DishwasherMicrowave OvenRefrigerator
- Laundry facilities:
- Laundry Facilities On Upper LevelUtility/Laundry Room
- Pets:
- Pets Allowed
- Property amenities:
- Pool

Get a consultation with our New Homes Expert
- See how your home builds wealth
- Plan your home-buying roadmap
- Discover hidden gems
Utility information
- Heating:
- Central Heating
Neighborhood
Home address
- City:
- Tampa
- County:
- Hillsborough
- Zip Code:
- 33611
Schools in Hillsborough County School District
- Grades M-MPublicmanhattan pk-81.3 mi4210 w bay villa avena
GreatSchools’ Summary Rating calculation is based on 4 of the school’s themed ratings, including test scores, student/academic progress, college readiness, and equity. This information should only be used as a reference. Jome is not affiliated with GreatSchools and does not endorse or guarantee this information. Please reach out to schools directly to verify all information and enrollment eligibility. Data provided by GreatSchools.org © 2025
Places of interest
Getting around
4 nearby routes: 4 bus, 0 rail, 0 otherAir quality
Natural hazards risk
Climate hazards can impact homes and communities, with risks varying by location. These scores reflect the potential impact of natural disasters and climate-related risks on Hillsborough County
Provided by FEMA

Considering this home?
Our expert will guide your tour, in-person or virtual
Need more information?
Text or call (888) 486-2818
Financials
Let us help you find your dream home
How many bedrooms are you looking for?
Similar homes nearby
Recently added communities in this area
Nearby communities in Tampa
New homes in nearby cities
More New Homes in Tampa, FL
CENTURY 21 LIST WITH BEGGINS, MLS TB8331782
Based on information submitted to the MLS GRID as of 10/21/2024 2:31 PM CDT. All data is obtained from various sources and may not have been verified by broker or MLS GRID. Supplied Open House Information is subject to change without notice. All information should be independently reviewed and verified for accuracy. Properties may or may not be listed by the office/agent presenting the information. Some IDX listings have been excluded from this website. Properties displayed may be listed or sold by various participants in the MLS. IDX information is provided exclusively for personal, non-commercial use, and may not be used for any purpose other than to identify prospective properties consumers may be interested in purchasing. Information is deemed reliable but not guaranteed. Use of the MLS GRID Data may be subject to an end user license agreement prescribed by the Member Participant’s applicable MLS if any and as amended from time to time. The Digital Millennium Copyright Act of 1998, 17 U.S.C. § 512 (the “DMCA”) provides recourse for copyright owners who believe that material appearing on the Internet infringes their rights under U.S. copyright law. If you believe in good faith that any content or material made available in connection with our website or services infringes your copyright, you (or your agent) may send us a notice requesting that the content or material be removed, or access to it blocked. Notices must be sent in writing by email to DMCAnotice@MLSGrid.com. The DMCA requires that your notice of alleged copyright infringement include the following information: (1) description of the copyrighted work that is the subject of claimed infringement; (2) description of the alleged infringing content and information sufficient to permit us to locate the content; (3) contact information for you, including your address, telephone number and email address; (4) a statement by you that you have a good faith belief that the content in the manner complained of is not authorized by the copyright owner, or its agent, or by the operation of any law; (5) a statement by you, signed under penalty of perjury, that the information in the notification is accurate and that you have the authority to enforce the copyrights that are claimed to be infringed; and (6) a physical or electronic signature of the copyright owner or a person authorized to act on the copyright owner’s behalf. Failure to include all of the above information may result in the delay of the processing of your complaint. Listing Information presented by local MLS brokerage: NewHomesMate LLC, DBA Jome (888) 486-2818
Read moreLast checked Dec 14, 9:10 am
- Jome
- New homes search
- Florida
- Tampa Bay Area
- Hillsborough County
- Tampa
- 3220 W Villa Rosa St, Tampa, FL 33611


























