














Book your tour. Save an average of $18,473. We'll handle the rest.
- Confirmed tours
- Get matched & compare top deals
- Expert help, no pressure
- No added fees
Estimated value based on Jome data, T&C apply







































- 6 bd
- 4.5 ba
- 4,571 sqft
14427 Crest Palm Ave, Windermere, FL 34786
Why tour with Jome?
- No pressure toursTour at your own pace with no sales pressure
- Expert guidanceGet insights from our home buying experts
- Exclusive accessSee homes and deals not available elsewhere
Jome is featured in
- Single-Family
- Quick move-in
- $228.61/sqft
- $275/monthly HOA
Home description
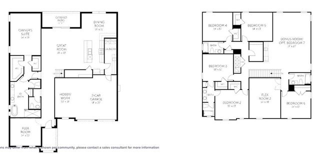
Step into your next home at the Sweetwater in Palms at Windermere.
With over 4,400 square feet, this expansive two-story floorplan offers six bedrooms and four and a half baths, blending luxury and function for today’s modern living.
On the first floor, the owner’s suite is a private retreat with dual walk-in closets and a spa-inspired bath. A flex room gives you space for a home office or creative studio, while a hobby/work area near the two-car garage adds even more functionality. The open-concept great room, filled with sunlit walls in warm ivory tones, flows seamlessly into the dining room and gourmet kitchen, where espresso cabinetry, quartz counters, and stainless steel finishes create a striking contrast. Just beyond, sliding glass doors open to the covered patio... the perfect spot to enjoy Florida’s golden evenings.
Upstairs, five additional bedrooms, most with walk-in closets, connect through airy corridors in calming dove gray hues. Multiple bonus spaces invite possibilities: a game room, media center, or fitness studio... whatever lifestyle your family envisions.
Beyond the front door, Palms at Windermere offers more than a community... It’s a way of life. Picture tree-lined streets, emerald-green lawns, shimmering lake views, and walking paths with surrounding conservation. Top-rated schools, boutique shopping, vibrant dining, and downtown Orlando are just minutes away, bringing both convenience and charm to your everyday life.
Schedule your private showing today and experience how the Sweetwater brings together comfort, sophistication, and timeless Windermere living.
COMMUNITY DETAILS:
Experience Life with Style, Serenity, and Sophistication at Palms at Windermere
Imagine waking up each day to the gentle breeze off a sparkling lake, surrounded by tree-lined streets and the timeless charm of Windermere. At Palms at Windermere, this lifestyle isn’t a getaway—it’s home.
Crafted by Dream Finders Homes, this exclusive enclave offers a limited collection of beautifully designed single-family homes, where every detail speaks to quality and comfort. Step inside to discover spacious open-concept living, gourmet kitchens perfect for entertaining, and serene owner’s suites that feel like a private retreat.
Beyond your doorstep, nature and community come together. Take an evening stroll along scenic trails or unwind in your backyard oasis. With top-rated schools, upscale shopping, vibrant dining, and downtown Orlando just minutes away, Palms at Windermere brings the best of Central Florida to your doorstep—without compromising peace or privacy.
Whether you're raising a family, working remotely, or simply seeking a refined place to call home, this is where life elevates.
Ready to experience the elegance for yourself?
Schedule a private tour today and discover why so many are choosing to call Palms at Windermere home.
OLYMPUS EXECUTIVE REALTY INC, MLS G5100372
May also be listed on the Dream Finders Homes website
Information last verified by Jome: Today at 10:25 AM (December 19, 2025)
Home highlights
World-famous Orlando resort with four theme parks, immersive entertainment, and family living nearby.
Book your tour. Save an average of $18,473. We'll handle the rest.
We collect exclusive builder offers, book your tours, and support you from start to housewarming.
- Confirmed tours
- Get matched & compare top deals
- Expert help, no pressure
- No added fees
Estimated value based on Jome data, T&C apply
Home details
- Property status:
- Move-in ready
- Lot size (acres):
- 0.16
- Size:
- 4,571 sqft
- Stories:
- 2
- Beds:
- 6
- Baths:
- 4.5
- Garage spaces:
- 2
- Facing direction:
- South
Construction details
- Builder Name:
- Dream Finders Homes
- Completion Date:
- December, 2024
- Year Built:
- 2024
- Roof:
- Tile Roofing
Home features & finishes
- Appliances:
- Exhaust FanSprinkler System
- Construction Materials:
- Wood FrameBlockCement
- Cooling:
- Central Air
- Flooring:
- Ceramic FlooringCarpet FlooringTile Flooring
- Foundation Details:
- Slab
- Garage/Parking:
- Door OpenerGarageAttached Garage
- Home amenities:
- Green Construction
- Interior Features:
- Ceiling-HighWalk-In ClosetFoyerPantrySliding DoorsStorage
- Kitchen:
- DishwasherMicrowave OvenOvenDisposalGas CooktopBuilt-In OvenCook Top
- Laundry facilities:
- Laundry Facilities On Upper LevelUtility/Laundry Room
- Lighting:
- Street Lights
- Pets:
- Pets Allowed
- Property amenities:
- SidewalkBathtub in primaryPatioSmart Home SystemPorch
- Rooms:
- Bonus RoomKitchenDen RoomPowder RoomOffice/StudyDining RoomFamily RoomLiving RoomOpen Concept Floorplan
- Security system:
- Smoke Detector
Utility information
- Heating:
- Electric Heating, Heat Pump, Thermostat, Water Heater, Central Heating, Tankless water heater
- Utilities:
- Electricity Available, Natural Gas Available, Underground Utilities, Internet-Fiber, Phone Available, HVAC, Water Available

Community details
Palms at Windermere
by Dream Finders Homes, Windermere, FL
- 9 homes
- 8 plans
- 2,687 - 4,571 sqft
View Palms at Windermere details
Community amenities
- Playground
- Park Nearby
- RV/Boat Parking
- Sidewalks Available
More homes in Palms at Windermere
Floor plans in Palms at Windermere
About the builder - Dream Finders Homes
Neighborhood
Home address
- City:
- Windermere
- County:
- Orange
- Zip Code:
- 34786
Schools in Orange County School District
GreatSchools’ Summary Rating calculation is based on 4 of the school’s themed ratings, including test scores, student/academic progress, college readiness, and equity. This information should only be used as a reference. Jome is not affiliated with GreatSchools and does not endorse or guarantee this information. Please reach out to schools directly to verify all information and enrollment eligibility. Data provided by GreatSchools.org © 2025
Places of interest
Getting around
Noise level
A Soundscore™ rating is a number between 50 (very loud) and 100 (very quiet) that tells you how loud a location is due to environmental noise.
Natural hazards risk
Climate hazards can impact homes and communities, with risks varying by location. These scores reflect the potential impact of natural disasters and climate-related risks on Orange County
Provided by FEMA

Considering this home?
Our expert will guide your tour, in-person or virtual
Need more information?
Text or call (888) 486-2818
Financials
Estimated monthly payment
Similar homes nearby
Recently added communities in this area
Nearby communities in Windermere
New homes in nearby cities
More New Homes in Windermere, FL
OLYMPUS EXECUTIVE REALTY INC, MLS G5100372
Based on information submitted to the MLS GRID as of 10/21/2024 2:31 PM CDT. All data is obtained from various sources and may not have been verified by broker or MLS GRID. Supplied Open House Information is subject to change without notice. All information should be independently reviewed and verified for accuracy. Properties may or may not be listed by the office/agent presenting the information. Some IDX listings have been excluded from this website. Properties displayed may be listed or sold by various participants in the MLS. IDX information is provided exclusively for personal, non-commercial use, and may not be used for any purpose other than to identify prospective properties consumers may be interested in purchasing. Information is deemed reliable but not guaranteed. Use of the MLS GRID Data may be subject to an end user license agreement prescribed by the Member Participant’s applicable MLS if any and as amended from time to time. The Digital Millennium Copyright Act of 1998, 17 U.S.C. § 512 (the “DMCA”) provides recourse for copyright owners who believe that material appearing on the Internet infringes their rights under U.S. copyright law. If you believe in good faith that any content or material made available in connection with our website or services infringes your copyright, you (or your agent) may send us a notice requesting that the content or material be removed, or access to it blocked. Notices must be sent in writing by email to DMCAnotice@MLSGrid.com. The DMCA requires that your notice of alleged copyright infringement include the following information: (1) description of the copyrighted work that is the subject of claimed infringement; (2) description of the alleged infringing content and information sufficient to permit us to locate the content; (3) contact information for you, including your address, telephone number and email address; (4) a statement by you that you have a good faith belief that the content in the manner complained of is not authorized by the copyright owner, or its agent, or by the operation of any law; (5) a statement by you, signed under penalty of perjury, that the information in the notification is accurate and that you have the authority to enforce the copyrights that are claimed to be infringed; and (6) a physical or electronic signature of the copyright owner or a person authorized to act on the copyright owner’s behalf. Failure to include all of the above information may result in the delay of the processing of your complaint. Listing Information presented by local MLS brokerage: NewHomesMate LLC, DBA Jome (888) 486-2818
Read moreLast checked Dec 19, 10:25 am
- Jome
- New homes search
- Florida
- Greater Orlando Area
- Orange County
- Windermere
- Palms at Windermere
- 14427 Crest Palm Ave, Windermere, FL 34786































