







Book your tour. Save an average of $18,473. We'll handle the rest.
We collect exclusive builder offers, book your tours, and support you from start to housewarming.
- Confirmed tours
- Get matched & compare top deals
- Expert help, no pressure
- No added fees
Estimated value based on Jome data, T&C apply















































- 4 bd
- 5 ba
- 3,793 sqft
609 Sw 24Th Rd, Miami, FL 33129
Why tour with Jome?
- No pressure toursTour at your own pace with no sales pressure
- Expert guidanceGet insights from our home buying experts
- Exclusive accessSee homes and deals not available elsewhere
Jome is featured in
- Single-Family
- Quick move-in
- $1450.04/sqft
- Southwest facing
Home description
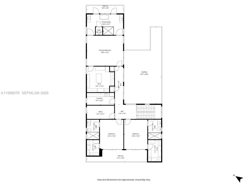
Welcome to Villa Verano, a newly completed (2026) ultra-modern architectural masterpiece offering 5,772 total square feet of construction, featuring 4 spacious bedrooms, a dedicated office, walk-in pantry, two expansive terraces, and a spectacular primary suite. The home also includes a swimming pool, dry sauna, and a spacious garage, combining luxury with functionality.Upon entry, a dramatic pivot door opens to soaring high ceilings and a completely open, column-free floor plan, creating a seamless and unobstructed flow. Floor-to-ceiling glass doors retract into the walls, effortlessly blending indoor and outdoor living, and leading to a fully equipped gourmet outdoor kitchen, ideal for entertaining. Featuring a full concrete roof and enhanced structural reinforcement, fully wired for high-speed internet and security cameras. Ideally located just 0.5 miles from I-95 and approximately 1 mile from Brickell and the future Citadel headquarters, this property offers unmatched access to one of the fastest-growing financial hubs.
AF Realty, MLS A11988076
Information last verified by Jome: Today at 12:20 AM (March 26, 2026)
Book your tour. Save an average of $18,473. We'll handle the rest.
We collect exclusive builder offers, book your tours, and support you from start to housewarming.
- Confirmed tours
- Get matched & compare top deals
- Expert help, no pressure
- No added fees
Estimated value based on Jome data, T&C apply
Home details
- Property status:
- Move-in ready
- Neighborhood:
- Coral Way
- Lot size (acres):
- 0.15
- Size:
- 3,793 sqft
- Stories:
- 2
- Beds:
- 4
- Baths:
- 5
- Half baths:
- 2
- Garage spaces:
- 1
- Facing direction:
- Southwest
Construction details
- Completion Date:
- January, 2025
- Year Built:
- 2026
- Roof:
- Concrete Roofing
Home features & finishes
- Appliances:
- Ice Maker
- Construction Materials:
- Concrete
- Cooling:
- Ceiling Fan(s)Central Air
- Flooring:
- Wood FlooringTile Flooring
- Garage/Parking:
- Door OpenerGarageAttached GarageCar Charging Stations
- Interior Features:
- Walk-In ClosetPantry
- Kitchen:
- DishwasherOvenRefrigeratorDisposalKitchen Range
- Laundry facilities:
- DryerWasherUtility/Laundry Room
- Lighting:
- Exterior Lighting
- Pets:
- Pets Allowed
- Property amenities:
- BalconyBBQ AreaCabinetsSauna

Get a consultation with our New Homes Expert
- See how your home builds wealth
- Plan your home-buying roadmap
- Discover hidden gems
Utility information
- Heating:
- Central Heating
- Utilities:
- Other
Community amenities
- Garden View
- Waterfront View
Neighborhood
Home address
- County:
- Miami-Dade
- Zip Code:
- 33129
Schools in Dade County School District
- Grades PK-05Privategordon day school of beth david cong.0.4 mi2625 sw 3rd avena
- Grades 06-08Chartermater brickell preparatory0.6 mi230 sw 17 rdna
GreatSchools’ Summary Rating calculation is based on 4 of the school’s themed ratings, including test scores, student/academic progress, college readiness, and equity. This information should only be used as a reference. Jome is not affiliated with GreatSchools and does not endorse or guarantee this information. Please reach out to schools directly to verify all information and enrollment eligibility. Data provided by GreatSchools.org © 2025
Places of interest
Getting around
18 nearby routes: 16 bus, 2 rail, 0 otherAir quality
Noise level
A Soundscore™ rating is a number between 50 (very loud) and 100 (very quiet) that tells you how loud a location is due to environmental noise.
Natural hazards risk
Provided by FEMA

Considering this home?
Our expert will guide your tour, in-person or virtual
Need more information?
Text or call (888) 545-5198
Financials
Estimated monthly payment
Let us help you find your dream home
How many bedrooms are you looking for?
Similar homes nearby
Recently added communities in this area
Nearby communities in Miami
New homes in nearby cities
More New Homes in Miami, FL
AF Realty, MLS A11988076
IDX information is provided exclusively for personal, non-commercial use, and may not be used for any purpose other than to identify prospective properties consumers may be interested in purchasing. Information is deemed reliable but not guaranteed.
Read moreLast checked Mar 26, 6:20 am
- Jome
- New homes search
- Florida
- Miami Metropolitan Area
- Miami-Dade County
- Miami
- 609 Sw 24Th Rd, Miami, FL 33129


























