














Book your tour. Save an average of $18,473. We'll handle the rest.
- Confirmed tours
- Get matched & compare top deals
- Expert help, no pressure
- No added fees
Estimated value based on Jome data, T&C apply


















































































- 6 bd
- 4 ba
- 2,600 sqft
1076 Nw 55Th St, Miami, FL 33127
Why tour with Jome?
- No pressure toursTour at your own pace with no sales pressure
- Expert guidanceGet insights from our home buying experts
- Exclusive accessSee homes and deals not available elsewhere
Jome is featured in
- Duplex
- Quick move-in
- $440.38/sqft
- North facing
Home description
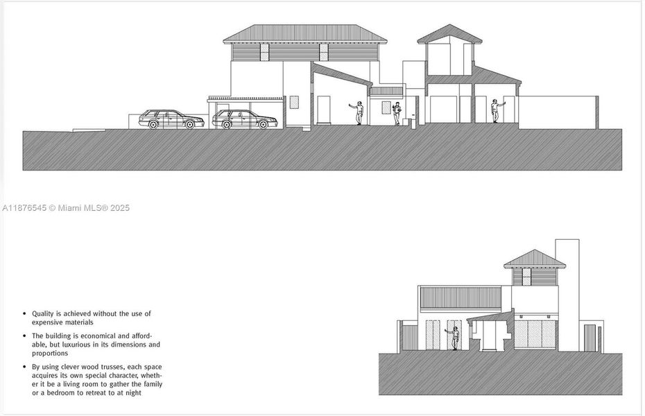
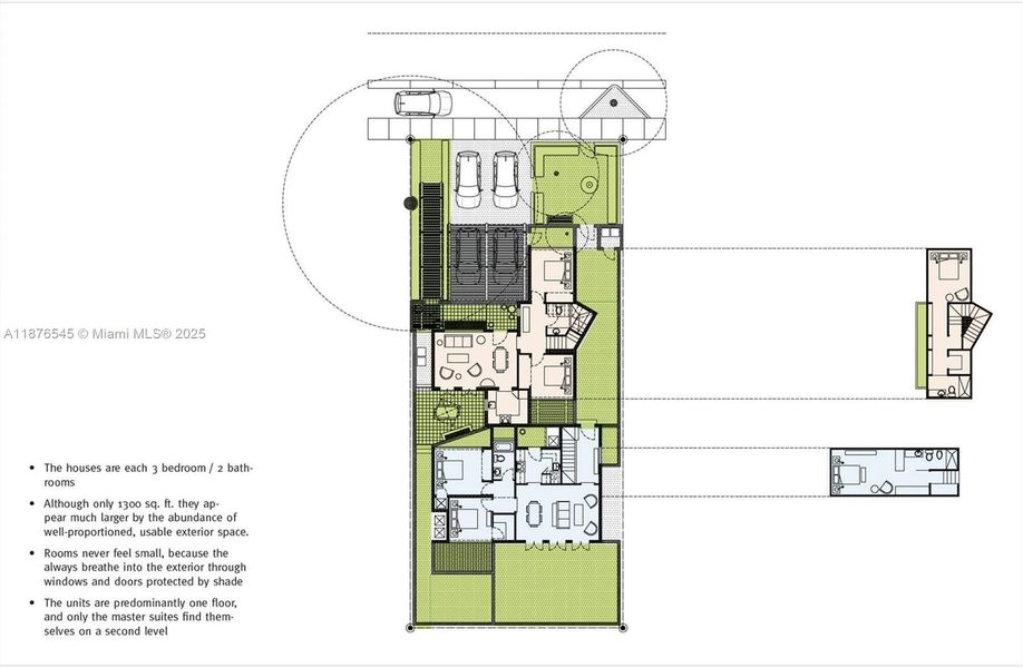
This brand-new Miami duplex (Sept 2025) combines modern living with tropical tranquility. Designed around a grand tree, one home sits at the front and the other further back, creating privacy , light, and garden . Each unit offers 3 bedrooms, 2 baths, open living, fully equipped kitchen, courtyard, and tandem parking. Live in one residence and rent the other for strong income potential. Minutes from Wynwood, Design District, Downtown, Brickell, the beaches and Miami International Airport, in a rapidly growing neighborhood. With projected Airbnb income of $90K–$130K+ annually or long-term rents of $84K–$101K, this duplex offers versatility for investors or owner-occupants. Cap rates range 6.2%–9.6% (Airbnb) and 5.7%–7.2% (long-term) at $1.187M valuation.
Get More Offers, MLS A11876545
Information last verified by Jome: Today at 12:04 AM (January 15, 2026)
Book your tour. Save an average of $18,473. We'll handle the rest.
We collect exclusive builder offers, book your tours, and support you from start to housewarming.
- Confirmed tours
- Get matched & compare top deals
- Expert help, no pressure
- No added fees
Estimated value based on Jome data, T&C apply
Home details
- Property status:
- Move-in ready
- Neighborhood:
- Liberty City
- Size:
- 2,600 sqft
- Stories:
- 2
- Beds:
- 6
- Baths:
- 4
- Garage spaces:
- 2
- Facing direction:
- North
Construction details
- Completion Date:
- January, 2025
- Year Built:
- 2025
- Roof:
- Metal Roofing, Shingle Roofing
Home features & finishes
- Construction Materials:
- BlockConcreteBrick
- Cooling:
- Central Air
- Flooring:
- Wood FlooringConcrete Flooring
- Garage/Parking:
- Garage
- Interior Features:
- Blinds
- Lighting:
- Exterior Lighting
- Property amenities:
- Patio

Get a consultation with our New Homes Expert
- See how your home builds wealth
- Plan your home-buying roadmap
- Discover hidden gems
Utility information
- Heating:
- Electric Heating, Central Heating, Humidity Control
Neighborhood
Home address
- Neighborhood:
- Liberty City
- City:
- Miami
- County:
- Miami-Dade
- Zip Code:
- 33127
Schools in Dade County School District
- Grades PK-KGPrivatewynwood learning center ii0.3 mi5580 nw 7th avena
GreatSchools’ Summary Rating calculation is based on 4 of the school’s themed ratings, including test scores, student/academic progress, college readiness, and equity. This information should only be used as a reference. Jome is not affiliated with GreatSchools and does not endorse or guarantee this information. Please reach out to schools directly to verify all information and enrollment eligibility. Data provided by GreatSchools.org © 2025
Places of interest
Getting around
10 nearby routes: 10 bus, 0 rail, 0 otherAir quality
Natural hazards risk
Provided by FEMA

Considering this home?
Our expert will guide your tour, in-person or virtual
Need more information?
Text or call (888) 486-2818
Financials
Estimated monthly payment
Let us help you find your dream home
How many bedrooms are you looking for?
Similar homes nearby
Recently added communities in this area
Nearby communities in Miami
New homes in nearby cities
More New Homes in Miami, FL
Get More Offers, MLS A11876545
IDX information is provided exclusively for personal, non-commercial use, and may not be used for any purpose other than to identify prospective properties consumers may be interested in purchasing. Information is deemed reliable but not guaranteed.
Read moreLast checked Jan 15, 6:20 pm
- Jome
- New homes search
- Florida
- Miami Metropolitan Area
- Miami-Dade County
- Miami
- 1076 Nw 55Th St, Miami, FL 33127

























