



Book your tour. Save an average of $18,473. We'll handle the rest.
We collect exclusive builder offers, book your tours, and support you from start to housewarming.
- Confirmed tours
- Get matched & compare top deals
- Expert help, no pressure
- No added fees
Estimated value based on Jome data, T&C apply
- 4 bd
- 3 ba
- 2,066 sqft
5310 Sawmill Point Wy, Jacksonville, FL 32210
Why tour with Jome?
- No pressure toursTour at your own pace with no sales pressure
- Expert guidanceGet insights from our home buying experts
- Exclusive accessSee homes and deals not available elsewhere
Jome is featured in
- Single-Family
- $152.46/sqft
- $225/annual HOA
- West facing
Home description
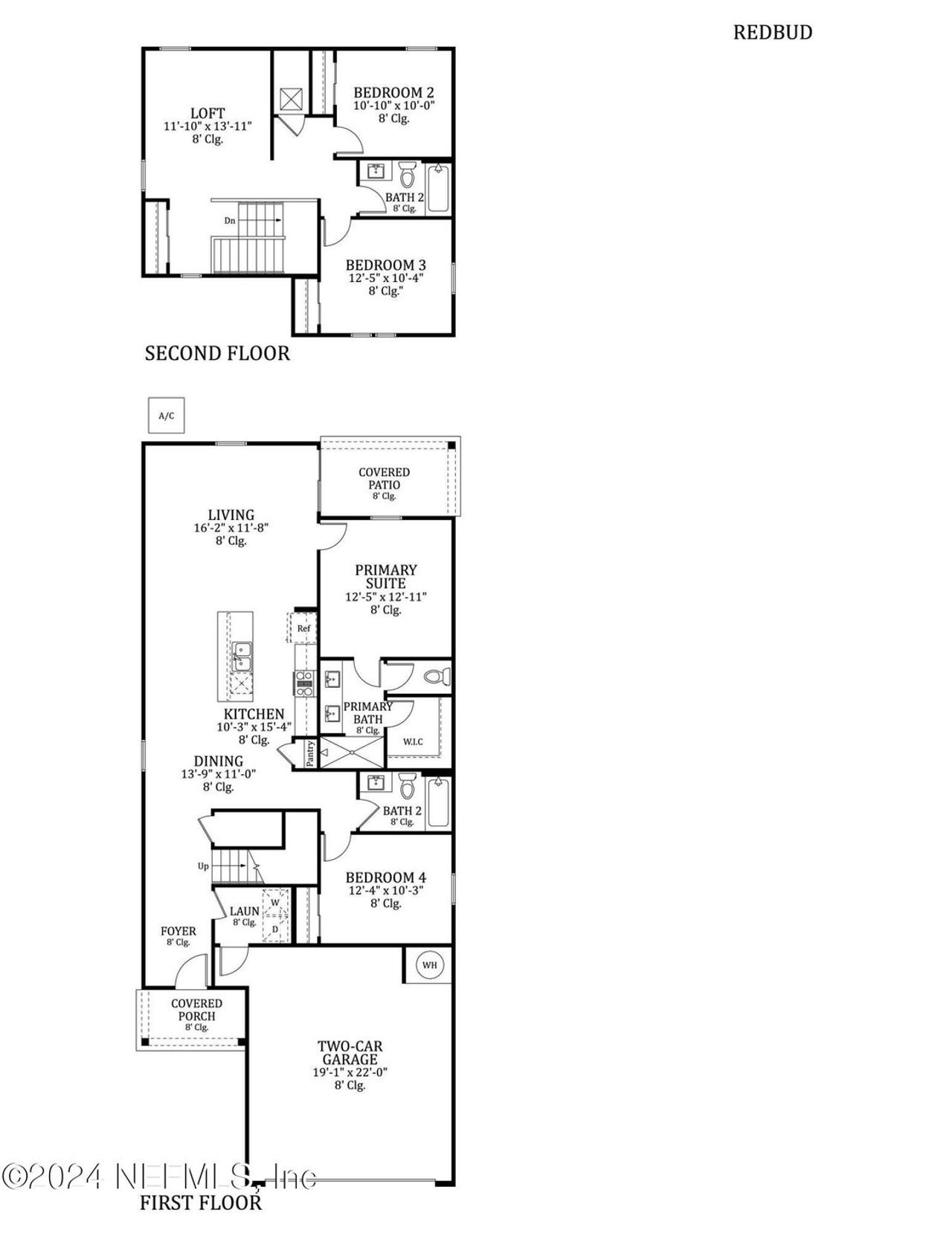
Discover the perfect blend of style, comfort, and functionality in the thoughtfully designed Redbud floorplan. This stunning two-story home offers 2,066 sq. ft. of living space, featuring 4 bedrooms, 3 full baths, and a versatile loft—ideal for a home office, playroom, or additional living area.
Step inside to discover the beauty of wood-look tile flooring throughout the main areas, complemented by cozy carpeted bedrooms. The heart of the home is the modern kitchen, featuring stunning granite countertops, a full appliance suite, and ample space for meal prep and gatherings. Relax and unwind on your cover back patio.
The two-car garage adds convenience, while the builder warranty ensures peace of mind for years to come.
Plus, take advantage of closing cost assistance to make your dream of homeownership even more achievable.
Experience the perfect blend of style, comfort, and value with the Redbud floorplan by Breeze Homes.
KELLER WILLIAMS REALTY ATLANTIC PARTNERS SOUTHSIDE, MLS 2113715
May also be listed on the Breeze Homes website
Information last verified by Jome: Today at 1:30 AM (April 8, 2026)
Home highlights
Charming Jacksonville parks with shaded trails and river views nestled in historic Riverside and Ortega neighborhoods.
Book your tour. Save an average of $18,473. We'll handle the rest.
We collect exclusive builder offers, book your tours, and support you from start to housewarming.
- Confirmed tours
- Get matched & compare top deals
- Expert help, no pressure
- No added fees
Estimated value based on Jome data, T&C apply
Home details
- Property status:
- Pending/Under contract
- Size:
- 2,066 sqft
- Stories:
- 2
- Beds:
- 4
- Baths:
- 3
- Garage spaces:
- 2
- Facing direction:
- West
Construction details
- Builder Name:
- Breeze Homes
- Year Built:
- 2024
Home features & finishes
- Appliances:
- Sprinkler System
- Construction Materials:
- Cement
- Cooling:
- Central Air
- Flooring:
- Carpet FlooringTile Flooring
- Garage/Parking:
- Door OpenerGarageAttached Garage
- Interior Features:
- Ceiling-HighWalk-In ClosetFoyerPantryBlindsLoft
- Kitchen:
- DishwasherMicrowave OvenRefrigeratorDisposalGas CooktopGranite countertopKitchen IslandKitchen Range
- Laundry facilities:
- DryerWasherUtility/Laundry Room
- Property amenities:
- SodPatioSmart Home SystemPorch
- Rooms:
- Primary Bedroom On MainKitchenDining RoomFamily RoomLiving RoomBreakfast AreaOpen Concept FloorplanPrimary Bedroom Downstairs
- Security system:
- Security SystemSmoke Detector

Get a consultation with our New Homes Expert
- See how your home builds wealth
- Plan your home-buying roadmap
- Discover hidden gems
Utility information
- Heating:
- Water Heater, Central Heating
- Sewer:
- Public Sewer
- Utilities:
- Electricity Available, Cable Available, Sewer Available, Water Available
- Water source:
- Public

Community details
Walker’s Ridge – Phase II
by Breeze Homes, Jacksonville, FL
- 5 plans
- 1,461 - 2,066 sqft
View Walker’s Ridge – Phase II details
Floor plans in Walker’s Ridge – Phase II
About the builder - Breeze Homes
Neighborhood
Home address
- City:
- Jacksonville
- County:
- Duval
- Zip Code:
- 32210
Schools in Duval County School District
GreatSchools’ Summary Rating calculation is based on 4 of the school’s themed ratings, including test scores, student/academic progress, college readiness, and equity. This information should only be used as a reference. Jome is not affiliated with GreatSchools and does not endorse or guarantee this information. Please reach out to schools directly to verify all information and enrollment eligibility. Data provided by GreatSchools.org © 2025
Places of interest
Getting around
1 nearby routes: 1 bus, 0 rail, 0 otherAir quality
Noise level
A Soundscore™ rating is a number between 50 (very loud) and 100 (very quiet) that tells you how loud a location is due to environmental noise.

Considering this home?
Our expert will guide your tour, in-person or virtual
Need more information?
Text or call (888) 545-5198
Financials
Estimated monthly payment
Let us help you find your dream home
How many bedrooms are you looking for?
Similar homes nearby
Recently added communities in this area
Nearby communities in Jacksonville
New homes in nearby cities
More New Homes in Jacksonville, FL
KELLER WILLIAMS REALTY ATLANTIC PARTNERS SOUTHSIDE, MLS 2113715
IDX information is provided exclusively for personal, non-commercial use, and may not be used for any purpose other than to identify prospective properties consumers may be interested in purchasing. Data is deemed reliable but is not guaranteed accurate by NEFMLS. © 2025 Northeast Florida Multiple Listing Service, Inc. All rights reserved.
Read moreLast checked Apr 8, 11:00 am
- Jome
- New homes search
- Florida
- Jacksonville Metropolitan Area
- Duval County
- Jacksonville
- Walker’s Ridge – Phase II
- 5310 Sawmill Point Wy, Jacksonville, FL 32210

































