

- 5 bd
- 6.5 ba
- 7,070 sqft
11027 Cromwell Rd, Orlando, FL 32827
- Single-Family
- $749.5/sqft
- $2,033/quarterly HOA
- West facing
New Homes for Sale Near 11027 Cromwell Rd, Orlando, FL 32827
About this Home
Under Construction. Being expertly built by DeVoe Custom Homes, and located in the new Cromwell expansion at Lake Nona Golf & Country Club, this luxurious custom home is perfectly situated with direct access to the Club’s amenity base, The United States Tennis Association’s National Campus, and Lake Nona’s Town Center.
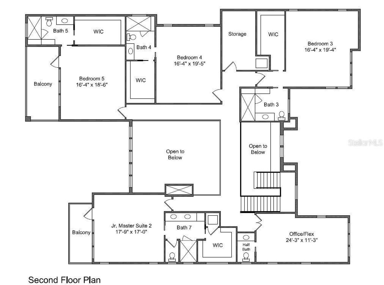
The warm, contemporary residence boasts five bedrooms, five full and three half baths, ranging over an impressive 7,070 sq. ft. floor plan that flows beautifully from the foyer to a large family room complete with direct views of the private sanctuary that is the backyard. Also located on the main level, the owner’s suite has a gracious custom closet that conveniently connects to the private golf cart garage for quick access to the community’s preferred mode of transportation. The stunning kitchen features an oversized t-shaped island which maximizes efficiency and functionality, along with floor-to-ceiling pocketed sliding doors that seamlessly blend indoor and outdoor living. The beautiful landscaping highlights all this home has to offer and is the perfect backdrop to the spectacular outdoor oasis complete with an expansive temperature-controlled enclosed lanai, a resort-style pool, spa and summer kitchen.
Additional features include: Scullery kitchen, Second Floor Flex Room / Office, Three-Car Garage and Golf Cart Garage.
LAKE NONA REALTY LLC, MLS O6201991
Information last verified by Jome: Yesterday at 9:52 AM (February 22, 2026)
Home details
- Property status:
- Sold
- Neighborhood:
- Lake Nona Central
- Lot size (acres):
- 0.28
- Size:
- 7,070 sqft
- Stories:
- 2
- Beds:
- 5
- Baths:
- 6
- Half baths:
- 3
- Garage spaces:
- 3
- Facing direction:
- West
Construction details
- Completion Date:
- December, 2025
- Year Built:
- 2026
- Roof:
- Tile Roofing
Home features & finishes
- Construction Materials:
- StuccoWood FrameBlockStoneWood Siding
- Cooling:
- Central Air
- Flooring:
- Tile Flooring
- Foundation Details:
- Slab
- Garage/Parking:
- Door OpenerGarageSide Entry Garage/ParkingGolf Cart GarageAttached Garage
- Home amenities:
- Internet
- Interior Features:
- Ceiling-HighWalk-In ClosetTray Ceiling
- Kitchen:
- Wine RefrigeratorDishwasherMicrowave OvenOvenRefrigeratorDisposalBuilt-In OvenKitchen Range
- Laundry facilities:
- Utility/Laundry Room
- Pets:
- Pets Allowed
- Property amenities:
- SidewalkBalconyPoolStorage BuildingOutdoor FireplacePatioFireplacePorch
- Rooms:
- KitchenDen RoomOffice/StudyDining RoomFamily RoomOpen Concept FloorplanSeparate Living and Dining
Utility information
- Heating:
- Thermostat, Central Heating
- Utilities:
- Electricity Available, Underground Utilities, Cable Available, Water Available
Community amenities
- Gated Community
- Security
- Security Guard/Safety Office
- Waterfront View
Neighborhood
Home address
- Neighborhood:
- Lake Nona Central
- City:
- Orlando
Schools in Orange County School District
GreatSchools’ Summary Rating calculation is based on 4 of the school’s themed ratings, including test scores, student/academic progress, college readiness, and equity. This information should only be used as a reference. Jome is not affiliated with GreatSchools and does not endorse or guarantee this information. Please reach out to schools directly to verify all information and enrollment eligibility. Data provided by GreatSchools.org © 2025
Places of interest
Getting around
2 nearby routes: 2 bus, 0 rail, 0 otherAir quality
Noise level
A Soundscore™ rating is a number between 50 (very loud) and 100 (very quiet) that tells you how loud a location is due to environmental noise.
Natural hazards risk
Provided by FEMA
Financials
Nearby communities in Orlando
Homes in Orlando Neighborhoods
- Vista East
- City Of Orlando-Goaa
- Lake Nona South
- Vista Park
- College Park
- Lawsona-Fern Creek
- Lake Nona Estates
- Colonialtown North
- Wadeview Park
- Meadow Woods
- Park Lake-Highland
- Colonialtown South
- Lake Como
- Holden Heights
- Lake Nona Central
- Dover Shores East
- Orlando International Airport
- Azalea Park
- Millenia
- Richmond Heights
- South Orange
Recently added communities in this area
Other Builders in Orlando, FL
Nearby sold homes
New homes in nearby cities
More New Homes in Orlando, FL
LAKE NONA REALTY LLC, MLS O6201991
Based on information submitted to the MLS GRID as of 10/21/2024 2:31 PM CDT. All data is obtained from various sources and may not have been verified by broker or MLS GRID. Supplied Open House Information is subject to change without notice. All information should be independently reviewed and verified for accuracy. Properties may or may not be listed by the office/agent presenting the information. Some IDX listings have been excluded from this website. Properties displayed may be listed or sold by various participants in the MLS. IDX information is provided exclusively for personal, non-commercial use, and may not be used for any purpose other than to identify prospective properties consumers may be interested in purchasing. Information is deemed reliable but not guaranteed. Use of the MLS GRID Data may be subject to an end user license agreement prescribed by the Member Participant’s applicable MLS if any and as amended from time to time. The Digital Millennium Copyright Act of 1998, 17 U.S.C. § 512 (the “DMCA”) provides recourse for copyright owners who believe that material appearing on the Internet infringes their rights under U.S. copyright law. If you believe in good faith that any content or material made available in connection with our website or services infringes your copyright, you (or your agent) may send us a notice requesting that the content or material be removed, or access to it blocked. Notices must be sent in writing by email to DMCAnotice@MLSGrid.com. The DMCA requires that your notice of alleged copyright infringement include the following information: (1) description of the copyrighted work that is the subject of claimed infringement; (2) description of the alleged infringing content and information sufficient to permit us to locate the content; (3) contact information for you, including your address, telephone number and email address; (4) a statement by you that you have a good faith belief that the content in the manner complained of is not authorized by the copyright owner, or its agent, or by the operation of any law; (5) a statement by you, signed under penalty of perjury, that the information in the notification is accurate and that you have the authority to enforce the copyrights that are claimed to be infringed; and (6) a physical or electronic signature of the copyright owner or a person authorized to act on the copyright owner’s behalf. Failure to include all of the above information may result in the delay of the processing of your complaint. Listing Information presented by local MLS brokerage: NewHomesMate LLC, DBA Jome (888) 488-9243
Read moreLast checked Feb 23, 3:10 am
- Jome
- New homes search
- Florida
- Greater Orlando Area
- Orange County
- Orlando
- 11027 Cromwell Rd, Orlando, FL 32827






















































