














Book your tour. Save an average of $18,473. We'll handle the rest.
- Confirmed tours
- Get matched & compare top deals
- Expert help, no pressure
- No added fees
Estimated value based on Jome data, T&C apply











- 3 bd
- 2 ba
- 1,680 sqft
2747 San Marco Wy, Winter Haven, FL 33884
Why tour with Jome?
- No pressure toursTour at your own pace with no sales pressure
- Expert guidanceGet insights from our home buying experts
- Exclusive accessSee homes and deals not available elsewhere
Jome is featured in
- Single-Family
- Ready by December 2025
- $172.61/sqft
- $156.34/annual HOA
Home description
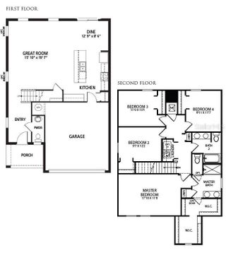
Welcome to the Vista model, a beautifully designed home offering the perfect combination of style, comfort, and functionality. Located in the charming Winter Haven, FL, this home features an open floor plan that maximizes space and natural light. The spacious great room welcomes you with ample room for relaxation and entertaining, and a nook window adds extra charm and brightness.
The gourmet kitchen is a true highlight, featuring granite countertops, a 27 cu ft stainless steel side-by-side refrigerator, a large island, and plenty of counter space for meal prep and family gatherings. Ceramic tile flooring extends throughout the main living areas, with the exception of the bedrooms, which are carpeted for comfort.
The Vista model boasts a luxurious master suite complete with a walk-in closet and an en-suite bath featuring a beautifully tiled shower and dual vanities for added convenience. Two additional bedrooms provide ample space, each with generous closet storage and easy access to a full bathroom. This home also includes a convenient laundry room with a washer and dryer, a two-car garage, and an inviting outdoor living space perfect for enjoying Florida’s sunny weather. The landscaping and irrigation system ensure a well-maintained yard with minimal upkeep.
Thoughtfully designed with contemporary finishes and energy-efficient features, the Vista model is a perfect blend of beauty and practicality. Whether you're relaxing in the spacious great room, hosting guests in the open kitchen, or enjoying the tranquility of the master suite, this home offers everything you need to live comfortably and in style.
Don’t miss out on the opportunity to make the Vista model your new home, where comfort, convenience, and elegance come together perfectly.
Includes full builder warranties.
NEW HOME STAR FLORIDA LLC, MLS O6202057
May also be listed on the Maronda Homes website
Information last verified by Jome: Yesterday at 10:05 AM (December 5, 2025)
Home highlights
Nature preserve in Kissimmee with boardwalks, paddling trails, and historic sites near family-friendly neighborhoods.
Book your tour. Save an average of $18,473. We'll handle the rest.
We collect exclusive builder offers, book your tours, and support you from start to housewarming.
- Confirmed tours
- Get matched & compare top deals
- Expert help, no pressure
- No added fees
Estimated value based on Jome data, T&C apply
Home details
- Property status:
- Under construction
- Lot size (acres):
- 0.10
- Size:
- 1,680 sqft
- Stories:
- 1
- Beds:
- 3
- Baths:
- 2
- Garage spaces:
- 2
- Facing direction:
- West
Construction details
- Builder Name:
- Maronda Homes
- Completion Date:
- December, 2025
- Year Built:
- 2024
- Roof:
- Shingle Roofing
Home features & finishes
- Construction Materials:
- StuccoBlock
- Cooling:
- Central Air
- Flooring:
- Ceramic FlooringCarpet FlooringTile Flooring
- Foundation Details:
- Slab
- Garage/Parking:
- GarageAttached Garage
- Interior Features:
- Walk-In ClosetSliding Doors
- Kitchen:
- DishwasherRefrigeratorDisposalKitchen Range
- Laundry facilities:
- DryerWasherUtility/Laundry Room
- Pets:
- Pets Allowed
- Rooms:
- Primary Bedroom On MainFamily RoomPrimary Bedroom Downstairs
- Security system:
- Smoke Detector
Utility information
- Heating:
- Electric Heating, Central Heating
- Utilities:
- Cable Available

Community details
Villamar
by Maronda Homes, Winter Haven, FL
- 6 homes
- 1,492 - 1,909 sqft
View Villamar details
More homes in Villamar
About the builder - Maronda Homes
Neighborhood
Home address
- City:
- Winter Haven
- County:
- Polk
- Zip Code:
- 33884
Schools in Polk County School District
- Grades 01-12Privatefamily life homeschool2.7 mi602 heather ctna
GreatSchools’ Summary Rating calculation is based on 4 of the school’s themed ratings, including test scores, student/academic progress, college readiness, and equity. This information should only be used as a reference. Jome is not affiliated with GreatSchools and does not endorse or guarantee this information. Please reach out to schools directly to verify all information and enrollment eligibility. Data provided by GreatSchools.org © 2025
Places of interest
Getting around
Air quality
Natural hazards risk
Climate hazards can impact homes and communities, with risks varying by location. These scores reflect the potential impact of natural disasters and climate-related risks on Polk County
Provided by FEMA

Considering this home?
Our expert will guide your tour, in-person or virtual
Need more information?
Text or call (888) 486-2818
Financials
Estimated monthly payment
Similar homes nearby
Recently added communities in this area
Nearby communities in Winter Haven
New homes in nearby cities
More New Homes in Winter Haven, FL
NEW HOME STAR FLORIDA LLC, MLS O6202057
Based on information submitted to the MLS GRID as of 10/21/2024 2:31 PM CDT. All data is obtained from various sources and may not have been verified by broker or MLS GRID. Supplied Open House Information is subject to change without notice. All information should be independently reviewed and verified for accuracy. Properties may or may not be listed by the office/agent presenting the information. Some IDX listings have been excluded from this website. Properties displayed may be listed or sold by various participants in the MLS. IDX information is provided exclusively for personal, non-commercial use, and may not be used for any purpose other than to identify prospective properties consumers may be interested in purchasing. Information is deemed reliable but not guaranteed. Use of the MLS GRID Data may be subject to an end user license agreement prescribed by the Member Participant’s applicable MLS if any and as amended from time to time. The Digital Millennium Copyright Act of 1998, 17 U.S.C. § 512 (the “DMCA”) provides recourse for copyright owners who believe that material appearing on the Internet infringes their rights under U.S. copyright law. If you believe in good faith that any content or material made available in connection with our website or services infringes your copyright, you (or your agent) may send us a notice requesting that the content or material be removed, or access to it blocked. Notices must be sent in writing by email to DMCAnotice@MLSGrid.com. The DMCA requires that your notice of alleged copyright infringement include the following information: (1) description of the copyrighted work that is the subject of claimed infringement; (2) description of the alleged infringing content and information sufficient to permit us to locate the content; (3) contact information for you, including your address, telephone number and email address; (4) a statement by you that you have a good faith belief that the content in the manner complained of is not authorized by the copyright owner, or its agent, or by the operation of any law; (5) a statement by you, signed under penalty of perjury, that the information in the notification is accurate and that you have the authority to enforce the copyrights that are claimed to be infringed; and (6) a physical or electronic signature of the copyright owner or a person authorized to act on the copyright owner’s behalf. Failure to include all of the above information may result in the delay of the processing of your complaint. Listing Information presented by local MLS brokerage: NewHomesMate LLC, DBA Jome (888) 486-2818
Read moreLast checked Dec 5, 9:10 pm
- Home
- New homes
- Florida
- Greater Orlando Area
- Polk County
- Winter Haven
- Villamar
- 2747 San Marco Wy, Winter Haven, FL 33884



































