









Book your tour. Save an average of $18,473. We'll handle the rest.
We collect exclusive builder offers, book your tours, and support you from start to housewarming.
- Confirmed tours
- Get matched & compare top deals
- Expert help, no pressure
- No added fees
Estimated value based on Jome data, T&C apply
















































Why tour with Jome?
- No pressure toursTour at your own pace with no sales pressure
- Expert guidanceGet insights from our home buying experts
- Exclusive accessSee homes and deals not available elsewhere
Jome is featured in
- Single-Family
- Quick move-in
- $201.23/sqft
- $104.29/monthly HOA
Home description
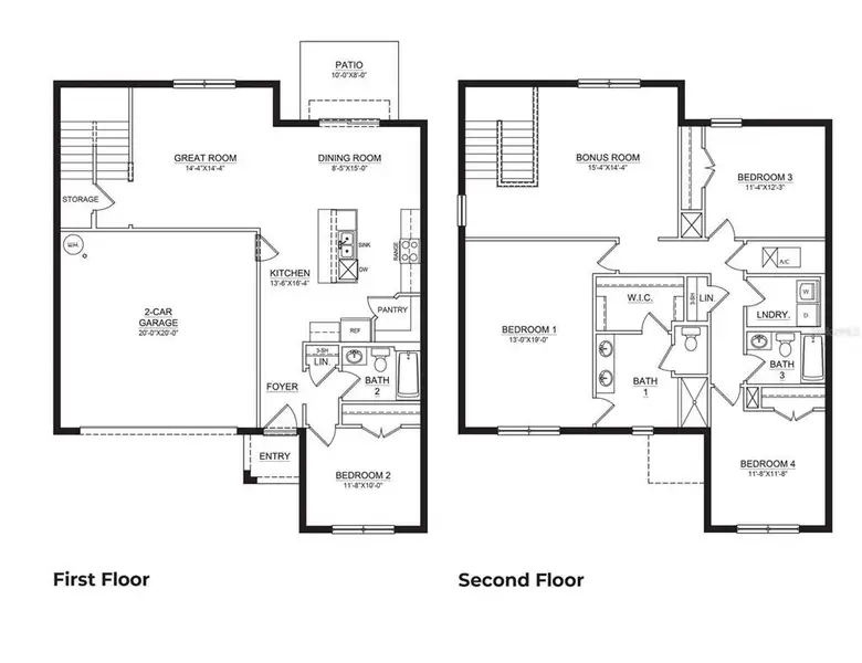
Move-in-Ready, Like New Construction, built in 2024. Modern 4-bedroom, 3-bathroom, two-story full masonry construction. Energy efficient open floor plan downstairs with Living, Dining and Kitchen areas creating a spacious and inviting atmosphere. The main living area has tile flooring. The Gourmet Kitchen is a true standout, offering beautiful granite countertops, modern cabinets, and is well-equipped with stainless-steel range, microwave, dishwasher. The first floor offers a flexible bedroom/office and a full bathroom ideal for guests or working from home. Upstairs, the large primary suite is a retreat with a large walk-in closet and ensuite master bathroom featuring double vanities. Also upstairs, you'll find two additional bedrooms, a full bath, laundry room and a very spacious loft.
FUTURE HOME REALTY INC, MLS TB8453646
May also be listed on the D.R. Horton website
Information last verified by Jome: Today at 9:37 AM (April 13, 2026)
Book your tour. Save an average of $18,473. We'll handle the rest.
We collect exclusive builder offers, book your tours, and support you from start to housewarming.
- Confirmed tours
- Get matched & compare top deals
- Expert help, no pressure
- No added fees
Estimated value based on Jome data, T&C apply
Home details
- Property status:
- Move-in ready
- Lot size (acres):
- 0.13
- Size:
- 2,435 sqft
- Stories:
- 2
- Beds:
- 4
- Baths:
- 3
- Garage spaces:
- 2
- Facing direction:
- East
Construction details
- Builder Name:
- D.R. Horton
- Year Built:
- 2024
- Roof:
- Shingle Roofing
Home features & finishes
- Construction Materials:
- StuccoBlock
- Cooling:
- Ceiling Fan(s)Central Air
- Flooring:
- Ceramic FlooringCarpet FlooringTile Flooring
- Foundation Details:
- Slab
- Garage/Parking:
- GarageAttached Garage
- Home amenities:
- Internet
- Interior Features:
- Ceiling-HighWindow TreatmentsWalk-In ClosetSliding Doors
- Kitchen:
- DishwasherMicrowave OvenRefrigeratorDisposalKitchen Range
- Laundry facilities:
- Laundry Facilities On Upper LevelDryerWasherLaundry Facilities In ClosetUtility/Laundry Room
- Lighting:
- Street Lights
- Pets:
- Pets AllowedPets Allowed with Breed Restrictions
- Property amenities:
- Irrigation
- Rooms:
- Dining RoomLiving RoomOpen Concept FloorplanPrimary Bedroom Upstairs

Get a consultation with our New Homes Expert
- See how your home builds wealth
- Plan your home-buying roadmap
- Discover hidden gems
Utility information
- Heating:
- Electric Heating, Heat Pump, Thermostat, Water Heater, Central Heating
- Sewer:
- Public Sewer
- Utilities:
- Electricity Available, Underground Utilities, Cable Available, Water Available
- Water source:
- Public

Community details
River Park
by D.R. Horton, Temple Terrace, FL
- 3 homes
- 1,846 - 2,674 sqft
View River Park details
More homes in River Park
- Home at address 9201 Sapphire Creek Pl, Temple Terrace, FL 33637

Home
$515,000
- 5 bd
- 3 ba
- 2,605 sqft
9201 Sapphire Creek Pl, Temple Terrace, FL 33637
- Home at address 9211 Mission Bay Pl, Temple Terrace, FL 33637

Home
$530,000
- 5 bd
- 3 ba
- 2,605 sqft
9211 Mission Bay Pl, Temple Terrace, FL 33637
About the builder - D.R. Horton

- 1,154communities on Jome
- 10,519homes on Jome
Neighborhood
Home address
- City:
- Temple Terrace
- County:
- Hillsborough
- Zip Code:
- 33637
Schools in Hillsborough County School District
GreatSchools’ Summary Rating calculation is based on 4 of the school’s themed ratings, including test scores, student/academic progress, college readiness, and equity. This information should only be used as a reference. Jome is not affiliated with GreatSchools and does not endorse or guarantee this information. Please reach out to schools directly to verify all information and enrollment eligibility. Data provided by GreatSchools.org © 2025
Places of interest
Getting around
1 nearby routes: 1 bus, 0 rail, 0 otherAir quality
Noise level
A Soundscore™ rating is a number between 50 (very loud) and 100 (very quiet) that tells you how loud a location is due to environmental noise.

Considering this home?
Our expert will guide your tour, in-person or virtual
Need more information?
Text or call (888) 545-5198
Financials
Estimated monthly payment
Let us help you find your dream home
How many bedrooms are you looking for?
Similar homes nearby
Recently added communities in this area
Nearby communities in Temple Terrace
New homes in nearby cities
More New Homes in Temple Terrace, FL
FUTURE HOME REALTY INC, MLS TB8453646
Based on information submitted to the MLS GRID as of 10/21/2024 2:31 PM CDT. All data is obtained from various sources and may not have been verified by broker or MLS GRID. Supplied Open House Information is subject to change without notice. All information should be independently reviewed and verified for accuracy. Properties may or may not be listed by the office/agent presenting the information. Some IDX listings have been excluded from this website. Properties displayed may be listed or sold by various participants in the MLS. IDX information is provided exclusively for personal, non-commercial use, and may not be used for any purpose other than to identify prospective properties consumers may be interested in purchasing. Information is deemed reliable but not guaranteed. Use of the MLS GRID Data may be subject to an end user license agreement prescribed by the Member Participant’s applicable MLS if any and as amended from time to time. The Digital Millennium Copyright Act of 1998, 17 U.S.C. § 512 (the “DMCA”) provides recourse for copyright owners who believe that material appearing on the Internet infringes their rights under U.S. copyright law. If you believe in good faith that any content or material made available in connection with our website or services infringes your copyright, you (or your agent) may send us a notice requesting that the content or material be removed, or access to it blocked. Notices must be sent in writing by email to DMCAnotice@MLSGrid.com. The DMCA requires that your notice of alleged copyright infringement include the following information: (1) description of the copyrighted work that is the subject of claimed infringement; (2) description of the alleged infringing content and information sufficient to permit us to locate the content; (3) contact information for you, including your address, telephone number and email address; (4) a statement by you that you have a good faith belief that the content in the manner complained of is not authorized by the copyright owner, or its agent, or by the operation of any law; (5) a statement by you, signed under penalty of perjury, that the information in the notification is accurate and that you have the authority to enforce the copyrights that are claimed to be infringed; and (6) a physical or electronic signature of the copyright owner or a person authorized to act on the copyright owner’s behalf. Failure to include all of the above information may result in the delay of the processing of your complaint. Listing Information presented by local MLS brokerage: NewHomesMate LLC, DBA Jome (888) 545-5198
Read moreLast checked Apr 13, 9:10 am
- Jome
- New homes search
- Florida
- Tampa Bay Area
- Hillsborough County
- Temple Terrace
- River Park
- 9208 Mission Bay Pl, Temple Terrace, FL 33637

























