













Book your tour. Save an average of $18,473. We'll handle the rest.
We collect exclusive builder offers, book your tours, and support you from start to housewarming.
- Confirmed tours
- Get matched & compare top deals
- Expert help, no pressure
- No added fees
Estimated value based on Jome data, T&C apply











































- 4 bd
- 4.5 ba
- 3,140 sqft
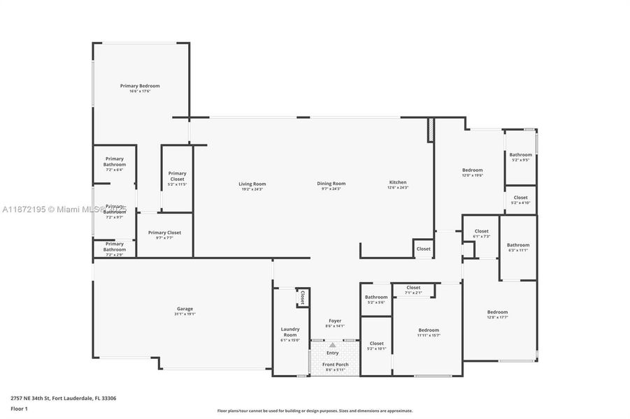
2757 Ne 34Th St, Fort Lauderdale, FL 33306
Why tour with Jome?
- No pressure toursTour at your own pace with no sales pressure
- Expert guidanceGet insights from our home buying experts
- Exclusive accessSee homes and deals not available elsewhere
Jome is featured in
- Single-Family
- Quick move-in
- $1111.46/sqft
- South facing
Home description
Discover a newly completed furnished custom estate in Coral Ridge Country Club Estates, masterfully designed for both elegance & ease of living. Soaring 12’ ceilings & walls of glass flood the home with natural light, while an 11’ Golden Belly quartz island anchors a chef’s kitchen with Miele Kitchen Suite appliances. Two 16’ sliding glass doors dissolve the boundary between indoors & outdoors, leading to a resort-style pool, jacuzzi, cabana bath & summer kitchen for al fresco dining. The spa-inspired primary suite features a wet room with soaking tub & shower, while three additional suites ensure privacy for guests. 3-car garage with lift potential & a total smart home system complete this rare opportunity to own a true modern masterpiece in one of Ft Lauderdale’s most prestigious neighborhoods.
Douglas Elliman, MLS A11872195
Information last verified by Jome: Today at 6:20 AM (February 13, 2026)
Home highlights
Lively Hallandale Beach destination blending horse racing, dining, shopping, and events in a walkable village setting.
Book your tour. Save an average of $18,473. We'll handle the rest.
We collect exclusive builder offers, book your tours, and support you from start to housewarming.
- Confirmed tours
- Get matched & compare top deals
- Expert help, no pressure
- No added fees
Estimated value based on Jome data, T&C apply
Home details
- Property status:
- Move-in ready
- Neighborhood:
- Coral Ridge Country Club
- Lot size (acres):
- 0.23
- Size:
- 3,140 sqft
- Stories:
- 1
- Beds:
- 4
- Baths:
- 4
- Half baths:
- 1
- Garage spaces:
- 3
- Fence:
- Fenced Yard
- Facing direction:
- South
Construction details
- Year Built:
- 2025
- Roof:
- Tile Roofing
Home features & finishes
- Construction Materials:
- Concrete
- Cooling:
- Central Air
- Flooring:
- Tile Flooring
- Garage/Parking:
- Door OpenerGarageAttached Garage
- Interior Features:
- LibraryDouble Vanity
- Kitchen:
- DishwasherRefrigeratorDisposal
- Laundry facilities:
- DryerWasherUtility/Laundry Room
- Property amenities:
- BasementBBQ AreaPatioPorch
- Rooms:
- Primary Bedroom On MainSitting AreaKitchenDen RoomMedia RoomOffice/StudyDining RoomFamily RoomPrimary Bedroom Downstairs

Get a consultation with our New Homes Expert
- See how your home builds wealth
- Plan your home-buying roadmap
- Discover hidden gems
Utility information
- Heating:
- Central Heating, Central Heat
- Utilities:
- Generator
Community amenities
- Golf Course
- Waterfront View
Neighborhood
Home address
- Neighborhood:
- Coral Ridge Country Club
- City:
- Fort Lauderdale
Schools in Broward County School District
- Grades PK-KGPrivatekla school of fort lauderdale0.2 mi2857 e oakland park blvdna
- Grades 09-12Privatecardinal gibbons high school1.0 mi2900 ne 47th stna
- Grades PK-05Privatechrist church school1.2 mi4845 ne 25th avena
- Grades KG-08Privateshepherd of the coast lutheran school1.5 mi1901 e commercial blvdna
GreatSchools’ Summary Rating calculation is based on 4 of the school’s themed ratings, including test scores, student/academic progress, college readiness, and equity. This information should only be used as a reference. Jome is not affiliated with GreatSchools and does not endorse or guarantee this information. Please reach out to schools directly to verify all information and enrollment eligibility. Data provided by GreatSchools.org © 2025
Places of interest
Getting around
5 nearby routes: 5 bus, 0 rail, 0 otherAir quality
Noise level
A Soundscore™ rating is a number between 50 (very loud) and 100 (very quiet) that tells you how loud a location is due to environmental noise.
Natural hazards risk
Provided by FEMA

Considering this home?
Our expert will guide your tour, in-person or virtual
Need more information?
Text or call (888) 486-2818
Financials
Estimated monthly payment
Let us help you find your dream home
How many bedrooms are you looking for?
Similar homes nearby
Recently added communities in this area
Nearby communities in Fort Lauderdale
New homes in nearby cities
More New Homes in Fort Lauderdale, FL
Douglas Elliman, MLS A11872195
IDX information is provided exclusively for personal, non-commercial use, and may not be used for any purpose other than to identify prospective properties consumers may be interested in purchasing. Information is deemed reliable but not guaranteed.
Read moreLast checked Feb 13, 6:20 am
- Jome
- New homes search
- Florida
- Miami Metropolitan Area
- Broward County
- Fort Lauderdale
- 2757 Ne 34Th St, Fort Lauderdale, FL 33306



























