



Book your tour. Save an average of $18,473. We'll handle the rest.
- Confirmed tours
- Get matched & compare top deals
- Expert help, no pressure
- No added fees
Estimated value based on Jome data, T&C apply
- 3 bd
- 2 ba
- 1,700 sqft
160 Honeycomb Trl, St. Augustine, FL 32084
Why tour with Jome?
- No pressure toursTour at your own pace with no sales pressure
- Expert guidanceGet insights from our home buying experts
- Exclusive accessSee homes and deals not available elsewhere
Jome is featured in
- Single-Family
- $238.23/sqft
- $1,000/annual HOA
- 745 days on Jome
Home description
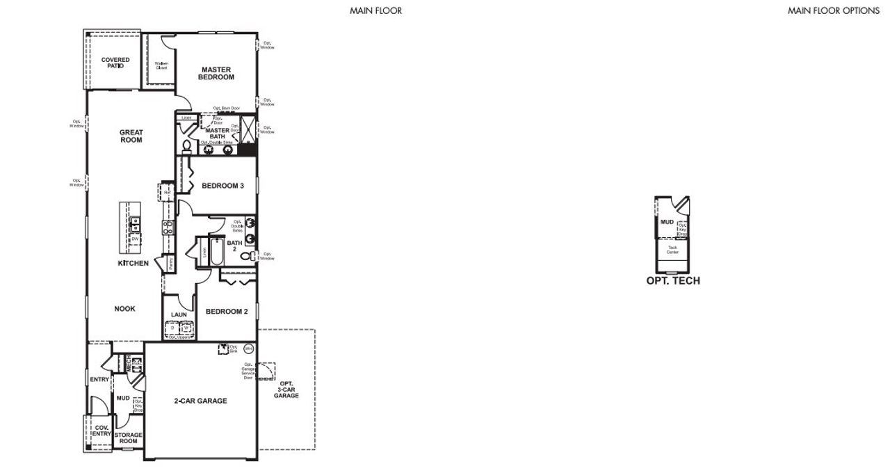
This beautiful ranch-style model home was designed for entertaining. Inside, you’ll find a spacious great room and a well-appointed kitchen featuring quartz countertops, a center island, a roomy pantry and an inviting dining nook. Two large bedrooms share a full bath, and a lavish primary suite boasts its own private bath with double sinks, as well as an oversized walk-in closet. Other highlights include a convenient laundry room, a mudroom, a tech center and a relaxing covered patio. A 2-car garage is also included.
May also be listed on the Richmond American Homes website
Information last verified by Jome: Wednesday at 6:49 AM (October 9, 2024)
Home highlights
Iconic golf course in Ponte Vedra Beach, home to The Players Championship and renowned island green on hole 17.
Special attention is paid to environmental friendliness, energy efficiency, water use and materials.
Book your tour. Save an average of $18,473. We'll handle the rest.
We collect exclusive builder offers, book your tours, and support you from start to housewarming.
- Confirmed tours
- Get matched & compare top deals
- Expert help, no pressure
- No added fees
Estimated value based on Jome data, T&C apply
Home details
- Property status:
- Not available
- Size:
- 1,700 sqft
- Stories:
- 1
- Beds:
- 3
- Baths:
- 2
- Garage spaces:
- 2
Construction details
- Builder Name:
- Richmond American Homes
Home features & finishes
- Garage/Parking:
- GarageAttached Garage
- Interior Features:
- Walk-In Closet
- Laundry facilities:
- Utility/Laundry Room
- Property amenities:
- BasementPatioPorch
- Rooms:
- Primary Bedroom On MainDining RoomFamily RoomPrimary Bedroom Downstairs

Community details
Verano Creek
by Richmond American Homes, St. Augustine, FL
View Verano Creek details
About the builder - Richmond American Homes
Neighborhood
Home address
- City:
- St. Augustine
- County:
- St. Johns
- Zip Code:
- 32084
Schools in St. Johns County School District
- Grades 06-12Publicst johns county juvenile residential3.1 mi4500 avenue dna
GreatSchools’ Summary Rating calculation is based on 4 of the school’s themed ratings, including test scores, student/academic progress, college readiness, and equity. This information should only be used as a reference. Jome is not affiliated with GreatSchools and does not endorse or guarantee this information. Please reach out to schools directly to verify all information and enrollment eligibility. Data provided by GreatSchools.org © 2025
Places of interest
Getting around
Natural hazards risk
Climate hazards can impact homes and communities, with risks varying by location. These scores reflect the potential impact of natural disasters and climate-related risks on St. Johns County
Provided by FEMA

Considering this home?
Our expert will guide your tour, in-person or virtual
Need more information?
Text or call (888) 486-2818
Financials
Similar homes nearby
Recently added communities in this area
Nearby communities in St. Augustine
New homes in nearby cities
More New Homes in St. Augustine, FL
- Jome
- New homes search
- Florida
- Jacksonville Metropolitan Area
- St. Johns County
- St. Augustine
- Verano Creek
- 160 Honeycomb Trl, St. Augustine, FL 32084
























