













Book your tour. Save an average of $18,473. We'll handle the rest.
- Confirmed tours
- Get matched & compare top deals
- Expert help, no pressure
- No added fees
Estimated value based on Jome data, T&C apply










- 3 bd
- 4 ba
- 2,941 sqft
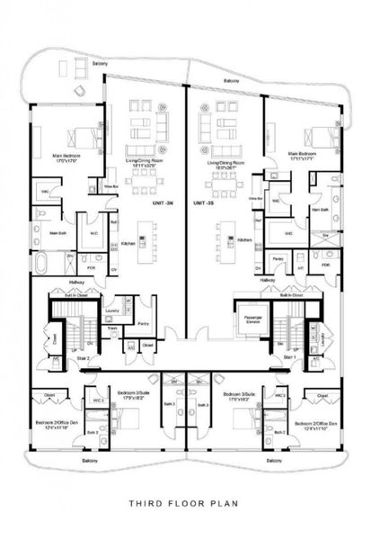
500 Hendricks Isle, Unit 3N, Fort Lauderdale, FL 33301
Why tour with Jome?
- No pressure toursTour at your own pace with no sales pressure
- Expert guidanceGet insights from our home buying experts
- Exclusive accessSee homes and deals not available elsewhere
Jome is featured in
- Condo
- Under construction
- $1193.47/sqft
- $3,278/monthly HOA
Home description
New “Saint-Tropez North” at Lumiere residences, a boutique collection of only 7 waterfront units on prestigious Las Olas Isles as an estate alternative lifestyle. Sunrise to Sunset views with a flow-through floorplan, window walls of glass set the stage for this residence with wraparound balconies to enjoy. Rare assigned boat dock for up to 50 +/-feet included. Amenities include a 2 garage parking spaces, resort-style pool, fitness center and roof top sky deck. . Conveniently located minutes to fashionable Las Olas Village fine dining/shopping and sandy beaches. Shown by appt only.
Premier Estate Properties Inc., MLS F10525767
Information last verified by Jome: Today at 10:04 AM (December 6, 2025)
Home highlights
Lively Hallandale Beach destination blending horse racing, dining, shopping, and events in a walkable village setting.
Book your tour. Save an average of $18,473. We'll handle the rest.
We collect exclusive builder offers, book your tours, and support you from start to housewarming.
- Confirmed tours
- Get matched & compare top deals
- Expert help, no pressure
- No added fees
Estimated value based on Jome data, T&C apply
Home details
- Property status:
- Under construction
- Neighborhood:
- Hendricks And Venice Isles
- Size:
- 2,941 sqft
- Stories:
- 5
- Beds:
- 3
- Baths:
- 4
- Garage spaces:
- 2
- Fence:
- Fenced Yard
- Facing direction:
- West
Construction details
- Year Built:
- 2026
Home features & finishes
- Appliances:
- Ice Maker
- Cooling:
- Central Air
- Flooring:
- Tile Flooring
- Garage/Parking:
- Door OpenerAssigned parkingGarageUnderground Garage/ParkingAttached Garage
- Interior Features:
- Ceiling-HighWalk-In ClosetPantryWet BarSeparate Shower
- Kitchen:
- Bar Ice MakerDishwasherMicrowave OvenOvenRefrigeratorDisposalGas CooktopDouble SinkBuilt-In OvenKitchen IslandGas OvenKitchen Range
- Laundry facilities:
- DryerWasher
- Pets:
- Pets AllowedPets Allowed with Breed Restrictions
- Property amenities:
- BarBalcony
- Rooms:
- NookDining RoomLiving RoomBreakfast AreaSeparate Living and DiningPrimary Bedroom Downstairs
- Security system:
- Camera(s)Fire Alarm SystemSecurity SystemSmoke Detector
Utility information
- Heating:
- Electric Heating, Space Heater, Zoned Heating, Water Heater, Central Heating
- Utilities:
- Cable Available
Community amenities
- Gated Community
- Elevator
- Canal
- Dock
- Waterfront View
- Ocean View
- Beach Access
- Guest Parking
- Waterfront Lots
Neighborhood
Home address
- City:
- Fort Lauderdale
- County:
- Broward
- Zip Code:
- 33301
Schools in Broward County School District
GreatSchools’ Summary Rating calculation is based on 4 of the school’s themed ratings, including test scores, student/academic progress, college readiness, and equity. This information should only be used as a reference. Jome is not affiliated with GreatSchools and does not endorse or guarantee this information. Please reach out to schools directly to verify all information and enrollment eligibility. Data provided by GreatSchools.org © 2025
Places of interest
Getting around
1 nearby routes: 1 bus, 0 rail, 0 otherAir quality
Noise level
A Soundscore™ rating is a number between 50 (very loud) and 100 (very quiet) that tells you how loud a location is due to environmental noise.
Natural hazards risk
Climate hazards can impact homes and communities, with risks varying by location. These scores reflect the potential impact of natural disasters and climate-related risks on Broward County
Provided by FEMA

Considering this home?
Our expert will guide your tour, in-person or virtual
Need more information?
Text or call (888) 486-2818
Financials
Similar homes nearby
Recently added communities in this area
Nearby communities in Fort Lauderdale
New homes in nearby cities
More New Homes in Fort Lauderdale, FL
Premier Estate Properties Inc., MLS F10525767
All listings featuring the BMLS logo are provided by BeachesMLS, Inc. This information is not verified for authenticity or accuracy and is not guaranteed. Information is provided exclusively for consumers’ personal, non-commercial use and may not be used for any purpose other than to identify prospective properties consumers may be interested in purchasing. Copyright © 2025 BeachesMLS, Inc.
Read moreLast checked Dec 6, 12:00 pm
- Home
- New homes
- Florida
- Miami Metropolitan Area
- Broward County
- Fort Lauderdale
- 500 Hendricks Isle, Unit 3N, Fort Lauderdale, FL 33301























