



Book your tour. Save an average of $18,473. We'll handle the rest.
We collect exclusive builder offers, book your tours, and support you from start to housewarming.
- Confirmed tours
- Get matched & compare top deals
- Expert help, no pressure
- No added fees
Estimated value based on Jome data, T&C apply

Why tour with Jome?
- No pressure toursTour at your own pace with no sales pressure
- Expert guidanceGet insights from our home buying experts
- Exclusive accessSee homes and deals not available elsewhere
Jome is featured in
- Townhouse
- Ready by May 2026
- $312.63/sqft
- $184/monthly HOA
Home description
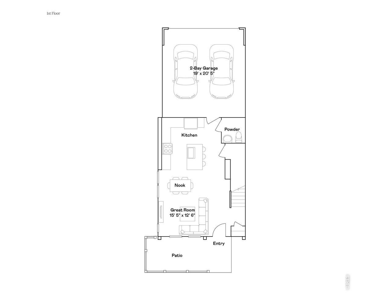
*Contact builder today about Special Financing for this home - terms and conditions apply. Welcome to Riano Ridge! This end-unit townhome, available May 2026, offers added privacy, natural light, and a desirable location with a greenbelt just out front. The main level features an open-concept layout designed for both comfort and functionality. The great room flows seamlessly into the dining nook and kitchen, creating an ideal space for everyday living and entertaining. The kitchen is finished with slab quartz countertops, stainless steel appliances, luxury vinyl plank flooring, and a center island that anchors the space. A convenient powder bath and access to the attached 2-car garage complete the main level. Upstairs, the spacious owner's suite includes a walk-in closet and private bath. Two additional bedrooms are served by a full hall bath, while the upstairs laundry adds everyday convenience. This home also includes a crawl space for additional storage and energy-efficient construction designed for long-term comfort and savings. Riano Ridge offers multiple floor plans to choose from, providing flexibility to fit a variety of lifestyles. End-unit opportunities like this are limited-reach out for details on May 2026 availability.
MLS IRE1055463
May also be listed on the Lennar website
Information last verified by Jome: Today at 12:36 AM (April 3, 2026)
Home highlights
Book your tour. Save an average of $18,473. We'll handle the rest.
We collect exclusive builder offers, book your tours, and support you from start to housewarming.
- Confirmed tours
- Get matched & compare top deals
- Expert help, no pressure
- No added fees
Estimated value based on Jome data, T&C apply
Home details
- Property status:
- Under construction
- Lot size (acres):
- 0.07
- Size:
- 1,528 sqft
- Stories:
- 2
- Beds:
- 3
- Baths:
- 1
- Half baths:
- 2
- Garage spaces:
- 2
Construction details
- Builder Name:
- Lennar
- Completion Date:
- May, 2026
- Year Built:
- 2026
- Roof:
- Composition Roofing
Home features & finishes
- Construction Materials:
- Frame
- Cooling:
- Central Air
- Garage/Parking:
- GarageAttached Garage
- Home amenities:
- Green Construction
- Interior Features:
- Walk-In Closet
- Kitchen:
- DishwasherMicrowave OvenRefrigeratorDisposalKitchen Island
- Laundry facilities:
- DryerWasher
- Property amenities:
- BasementPatio
- Rooms:
- Open Concept Floorplan
- Security system:
- Fire Alarm System
Room details
Master Bedroom
Kitchen
Bedroom 2

Get a consultation with our New Homes Expert
- See how your home builds wealth
- Plan your home-buying roadmap
- Discover hidden gems
Utility information
- Heating:
- Forced Air Heating
- Utilities:
- Electricity Available, Natural Gas Available

Community details
Riano Ridge
by Lennar, Loveland, CO
- 14 homes
- 12 plans
- 1,099 - 3,162 sqft
View Riano Ridge details
Community amenities
- Community Pool
- Park Nearby
More homes in Riano Ridge
- Home at address 3554 Quincy Bay Pl, Loveland, CO 80538

305
SavingsRiano Ridge: The Parkside
$464,695
- 3 bd
- 2.5 ba
- 1,528 sqft
3554 Quincy Bay Pl, Loveland, CO 80538
- Home at address 3067 Gladstone Ave, Loveland, CO 80538

Home
$480,345
- 3 bd
- 1.5 ba
- 1,666 sqft
3067 Gladstone Ave, Loveland, CO 80538
- Home at address 3067 Gladstone Ave, Loveland, CO 80538

306
SavingsRiano Ridge: The Parkside
$480,345
- 3 bd
- 2.5 ba
- 1,666 sqft
3067 Gladstone Ave, Loveland, CO 80538
- Home at address 3067 Gladstone Ave, Loveland, CO 80538

Home
$480,345
- 3 bd
- 1.5 ba
- 1,666 sqft
3067 Gladstone Ave, Loveland, CO 80538
- Home at address 3067 Gladstone Ave, Loveland, CO 80538

Home
$507,250
- 3 bd
- 1.5 ba
- 1,623 sqft
3067 Gladstone Ave, Loveland, CO 80538
Floor plans in Riano Ridge
About the builder - Lennar

- 1,814communities on Jome
- 6,762homes on Jome
Neighborhood
Home address
Schools in Thompson School District R-2J
GreatSchools’ Summary Rating calculation is based on 4 of the school’s themed ratings, including test scores, student/academic progress, college readiness, and equity. This information should only be used as a reference. Jome is not affiliated with GreatSchools and does not endorse or guarantee this information. Please reach out to schools directly to verify all information and enrollment eligibility. Data provided by GreatSchools.org © 2025
Places of interest
Getting around
Air quality
Noise level
A Soundscore™ rating is a number between 50 (very loud) and 100 (very quiet) that tells you how loud a location is due to environmental noise.

Considering this home?
Our expert will guide your tour, in-person or virtual
Need more information?
Text or call (888) 545-5198
Financials
Estimated monthly payment
Let us help you find your dream home
How many bedrooms are you looking for?
Similar homes nearby
Recently added communities in this area
Nearby communities in Loveland
New homes in nearby cities
More New Homes in Loveland, CO
MLS IRE1055463
Information source: Information and Real Estate Services, LLC. Provided for limited non-commercial use only under IRES Rules © 2025 IRES, LLC. Listing information is provided exclusively for consumers' personal, non-commercial use and may not be used for any purpose other than to identify prospective properties consumers may be interested in purchasing. Information deemed reliable but not guaranteed by the MLS. Compensation information displayed on listing details is only applicable to other participants and subscribers of the source MLS.
Read moreLast checked Apr 3, 12:20 am
- Jome
- New homes search
- Colorado
- Denver Metropolitan Area
- Larimer County
- Loveland
- Riano Ridge
- 3554 Quincy Bay Pl, Loveland, CO 80538































