








Book your tour. Save an average of $18,473. We'll handle the rest.
We collect exclusive builder offers, book your tours, and support you from start to housewarming.
- Confirmed tours
- Get matched & compare top deals
- Expert help, no pressure
- No added fees
Estimated value based on Jome data, T&C apply















































- 4 bd
- 2.5 ba
- 3,344 sqft
1080 Pronghorn Trl, Del Norte, CO 81132
Why tour with Jome?
- No pressure toursTour at your own pace with no sales pressure
- Expert guidanceGet insights from our home buying experts
- Exclusive accessSee homes and deals not available elsewhere
Jome is featured in
- Single-Family
- Quick move-in
- $358.55/sqft
- $144/annual HOA
Home description
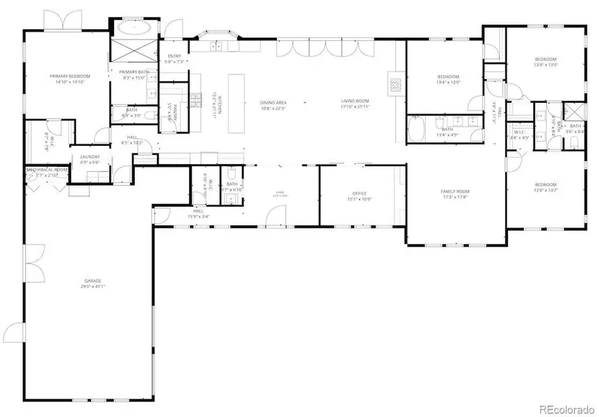
New construction in an exclusive and private gated community 10 minutes to downtown Del Norte. Main floor living with multi generational floor plan. No stairs, handicap accessible throughout. Luxurious and private living in a peaceful country setting. 4 bedrooms, 3 full baths, 1 half bath, + office & an extra den/flex space on your own 98 acres. Kitchen is a cook’s and homesteader’s dream! Enjoy looking out at your acreage or watching the little ones play from your oversized farm sink with BrassPure Unlacquered Brass Kitchen. 11-foot hickory butcher block island with electricity, custom built by Columbine Woodworks in Monte Vista. Calacatta Martarazzo marble countertops complement the open shelving. Full-sized walk-in pantry to store groceries, canning, and preserves. GE matching appliances, Café freestanding propane double oven stove. Flawless five-piece primary bathroom with oversized soaking tub, multiple shower heads, leathered marble countertop, and a private water closet. Oversized 2.5 car garage, with a door to pull in your ATV/Side by side. Energy efficient boiler, appliances & construction including Anderson double pane windows. Floor to ceiling 18 foot 6 panel accordion style, quadruple pane doors from the living room to the back patio take advantage of the north facing pasture views as well as the cool summer breezes. Ready to build additional accessory dwelling unit with plans, well, septic, electricity in place, minimum 1,700 sq ft per HOA. Bring your all your animals. Domestic well allows for 1 acre of watering, a homesteader’s delight, ample opportunity for gardening. Custom Lusa lighting, day & night settings & dimmers to complement the ample natural sunlight. Galaxy White granite countertops in the jack-n-jill bathroom, knotty alder solid wood doors and trim throughout. Walnut accents in office. Vermont Casting free standing wood burning stove, with floor to ceiling stone work in the living room. Sold mostly furnished; start enjoying now!
Mountain Dream Real Estate, LLC, MLS REC8437309
Information last verified by Jome: Today at 10:08 AM (April 1, 2026)
Home highlights
Book your tour. Save an average of $18,473. We'll handle the rest.
We collect exclusive builder offers, book your tours, and support you from start to housewarming.
- Confirmed tours
- Get matched & compare top deals
- Expert help, no pressure
- No added fees
Estimated value based on Jome data, T&C apply
Home details
- Property status:
- Move-in ready
- Lot size (acres):
- 98.00
- Size:
- 3,344 sqft
- Stories:
- 1
- Beds:
- 4
- Baths:
- 2
- Half baths:
- 1
- Garage spaces:
- 2
- Fence:
- No Fence
- Facing direction:
- South
Construction details
- Year Built:
- 2025
- Roof:
- Metal Roofing
Home features & finishes
- Appliances:
- Trash Compactor
- Construction Materials:
- StoneWood Siding
- Cooling:
- Ceiling Fan(s)
- Flooring:
- Concrete FlooringCarpet Flooring
- Foundation Details:
- SlabStructural
- Garage/Parking:
- GarageHeated GarageAttached GarageTandem Parking
- Home amenities:
- Green Construction
- Interior Features:
- Ceiling-HighWindow TreatmentsCeiling-VaultedWalk-In ClosetFoyerPantryJack and Jill BathroomBreakfast BarBay WindowsWindow Coverings
- Kitchen:
- DishwasherMicrowave OvenOvenRefrigeratorDisposalSelf Cleaning OvenGranite countertopKitchen IslandKitchen RangeDouble Oven
- Laundry facilities:
- Laundry Facilities In UnitDryerWasher
- Lighting:
- Lighting
- Pets:
- Cat(s) Only AllowedDog(s) Only Allowed
- Property amenities:
- SkylightDeckFireplaceYardSmart Home SystemPorch
- Rooms:
- Primary Bedroom On MainKitchenFamily RoomBreakfast AreaOpen Concept FloorplanPrimary Bedroom Downstairs
- Security system:
- Carbon Monoxide Detector
Room details
Kitchen
Dining Room
Living Room

Get a consultation with our New Homes Expert
- See how your home builds wealth
- Plan your home-buying roadmap
- Discover hidden gems
Utility information
- Heating:
- Wood Heating, Water Heater, Forced Air Heating, Tankless water heater, Radiant Heating, Wood Stove Heating
- Utilities:
- Electricity Available, Propane, HVAC
Community amenities
- Greenbelt View
- Mountain(s) View
Neighborhood
Home address
- City:
- Del Norte
- County:
- Rio Grande
- Zip Code:
- 81132
Schools in Upper Rio Grande School District C-7
- Grades KG-08Privatehigh valley christian school13.7 mi45651 county road ena
GreatSchools’ Summary Rating calculation is based on 4 of the school’s themed ratings, including test scores, student/academic progress, college readiness, and equity. This information should only be used as a reference. Jome is not affiliated with GreatSchools and does not endorse or guarantee this information. Please reach out to schools directly to verify all information and enrollment eligibility. Data provided by GreatSchools.org © 2025
Getting around
Natural hazards risk
Provided by FEMA

Considering this home?
Our expert will guide your tour, in-person or virtual
Need more information?
Text or call (888) 545-5198
Financials
Estimated monthly payment
Let us help you find your dream home
How many bedrooms are you looking for?
Similar homes nearby
New homes in nearby cities
More New Homes in Del Norte, CO
Mountain Dream Real Estate, LLC, MLS REC8437309
The content relating to real estate for sale in this Web site comes in part from the Internet Data eXchange (“IDX”) program of METROLIST, INC., DBA RECOLORADO® Real estate listings held by brokers other than NewHomesMate LLC, DBA Jome are marked with the IDX Logo. This information is being provided for the consumers’ personal, non-commercial use and may not be used for any other purpose. All information subject to change and should be independently verified. This publication is designed to provide information with regard to the subject matter covered. It is displayed with the understanding that the publisher and authors are not engaged in rendering real estate, legal, accounting, tax, or other professional services and that the publisher and authors are not offering such advice in this publication. If real estate, legal, or other expert assistance is required, the services of a competent, professional person should be sought. The information contained in this publication is subject to change without notice. METROLIST, INC., DBA RECOLORADO MAKES NO WARRANTY OF ANY KIND WITH REGARD TO THIS MATERIAL, INCLUDING, BUT NOT LIMITED TO, THE IMPLIED WARRANTIES OF MERCHANTABILITY AND FITNESS FOR A PARTICULAR PURPOSE. METROLIST, INC., DBA RECOLORADO SHALL NOT BE LIABLE FOR ERRORS CONTAINED HEREIN OR FOR ANY DAMAGES IN CONNECTION WITH THE FURNISHING, PERFORMANCE, OR USE OF THIS MATERIAL. PUBLISHER'S NOTICE: All real estate advertised herein is subject to the Federal Fair Housing Act and the Colorado Fair Housing Act, which Acts make it illegal to make or publish any advertisement that indicates any preference, limitation, or discrimination based on race, color, religion, sex, handicap, familial status, or national origin. METROLIST, INC., DBA RECOLORADO will not knowingly accept any advertising for real estate that is in violation of the law. All persons are hereby informed that all dwellings advertised are available on an equal opportunity basis. © 2025 METROLIST, INC., DBA RECOLORADO® - All Rights Reserved. 6455 S. Yosemite St., Suite 500, Greenwood Village, CO 80111 USA. ALL RIGHTS RESERVED WORLDWIDE. No part of this publication may be reproduced, adapted, translated, stored in a retrieval system or transmitted in any form or by any means, electronic, mechanical, photocopying, recording, or otherwise, without the prior written permission of the publisher. The information contained herein including but not limited to all text, photographs, digital images, virtual tours, may be seeded and monitored for protection and tracking.
Read moreLast checked Apr 1, 10:00 am
- Jome
- New homes search
- Colorado
- Rio Grande County
- Del Norte
- 1080 Pronghorn Trl, Del Norte, CO 81132
