














Book your tour. Save an average of $18,473. We'll handle the rest.
We collect exclusive builder offers, book your tours, and support you from start to housewarming.
- Confirmed tours
- Get matched & compare top deals
- Expert help, no pressure
- No added fees
Estimated value based on Jome data, T&C apply






- 3 bd
- 2 ba
- 2,018 sqft
20 E Main St, Unit 203, Frisco, CO 80443
Why tour with Jome?
- No pressure toursTour at your own pace with no sales pressure
- Expert guidanceGet insights from our home buying experts
- Exclusive accessSee homes and deals not available elsewhere
Jome is featured in
- Condo
- Quick move-in
- $1251.24/sqft
- 2 days on Jome
Home description
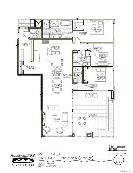
Welcome to Prime Lofts, residence 203! This property faces west and south, towards Madison Avenue. Three bedrooms, plus three bathrooms. The residence features ample storage throughout, as well as a dedicated storage closet for gear. Designed by Allen-Guerra Architecture, this residence is open and airy, with a combined kitchen/dining/living room. Enjoy the Peak One mountain views from your hot tub-ready deck. The builder is offering many upgrade options, including an in-home oxygenation system, an ice maker in the kitchen, an EV charger in the garage, patio ceiling-mounted heaters, and many more! The Prime Lofts development, located at 20 East Main Street in Frisco, Colorado, offers an exclusive, boutique-style living experience on the second and third floors above a new restaurant. Built with a modern architectural flair that honors the charm of Frisco’s historic downtown, each loft offers sweeping views of Main Street and the surrounding mountains through floor-to-ceiling windows. Interiors are finished to luxury standards, featuring sleek, open-concept living areas, gourmet kitchens with high-end appliances, spa-inspired bathrooms, and high ceilings that enhance the open, elegant feel. Residents will enjoy private balconies or terraces—perfect for savoring an evening apéro or starting the day with mountain views—while vaulted ceilings and rich finishes blend contemporary sophistication with cozy alpine warmth.
Christie's International Real Estate Colorado- Summit Colorado, MLS REC9126996
Information last verified by Jome: Today at 4:00 PM (March 17, 2026)
Book your tour. Save an average of $18,473. We'll handle the rest.
We collect exclusive builder offers, book your tours, and support you from start to housewarming.
- Confirmed tours
- Get matched & compare top deals
- Expert help, no pressure
- No added fees
Estimated value based on Jome data, T&C apply
Home details
- Property status:
- Move-in ready
- Size:
- 2,018 sqft
- Beds:
- 3
- Baths:
- 2
Construction details
- Year Built:
- 2026
- Roof:
- Membrane Roofing
Home features & finishes
- Construction Materials:
- Concrete
- Cooling:
- Ceiling Fan(s)Central Air
- Flooring:
- Wood FlooringCarpet FlooringTile Flooring
- Garage/Parking:
- GarageUnderground Garage/ParkingHeated GarageTandem Parking
- Interior Features:
- Ceiling-HighWalk-In ClosetFoyerPantry
- Kitchen:
- Wine RefrigeratorDishwasherMicrowave OvenRefrigeratorDisposalQuartz countertopKitchen IslandKitchen Range
- Laundry facilities:
- Laundry Facilities In Unit
- Lighting:
- Exterior Lighting
- Property amenities:
- BalconyDeckElevatorFireplace
- Rooms:
- KitchenLiving RoomOpen Concept Floorplan

Get a consultation with our New Homes Expert
- See how your home builds wealth
- Plan your home-buying roadmap
- Discover hidden gems
Utility information
- Heating:
- Heat Pump
- Utilities:
- Electricity Available, Natural Gas Available, Internet Cable
Community amenities
- City View
- Mountain(s) View
Neighborhood
Home address
Schools in Summit School District RE-1
GreatSchools’ Summary Rating calculation is based on 4 of the school’s themed ratings, including test scores, student/academic progress, college readiness, and equity. This information should only be used as a reference. Jome is not affiliated with GreatSchools and does not endorse or guarantee this information. Please reach out to schools directly to verify all information and enrollment eligibility. Data provided by GreatSchools.org © 2025
Getting around
Air quality
Natural hazards risk
Provided by FEMA

Considering this home?
Our expert will guide your tour, in-person or virtual
Need more information?
Text or call (888) 545-5198
Financials
Estimated monthly payment
Let us help you find your dream home
How many bedrooms are you looking for?
Similar homes nearby
Recently added communities in this area
New homes in nearby cities
More New Homes in Frisco, CO
Christie's International Real Estate Colorado- Summit Colorado, MLS REC9126996
The content relating to real estate for sale in this Web site comes in part from the Internet Data eXchange (“IDX”) program of METROLIST, INC., DBA RECOLORADO® Real estate listings held by brokers other than NewHomesMate LLC, DBA Jome are marked with the IDX Logo. This information is being provided for the consumers’ personal, non-commercial use and may not be used for any other purpose. All information subject to change and should be independently verified. This publication is designed to provide information with regard to the subject matter covered. It is displayed with the understanding that the publisher and authors are not engaged in rendering real estate, legal, accounting, tax, or other professional services and that the publisher and authors are not offering such advice in this publication. If real estate, legal, or other expert assistance is required, the services of a competent, professional person should be sought. The information contained in this publication is subject to change without notice. METROLIST, INC., DBA RECOLORADO MAKES NO WARRANTY OF ANY KIND WITH REGARD TO THIS MATERIAL, INCLUDING, BUT NOT LIMITED TO, THE IMPLIED WARRANTIES OF MERCHANTABILITY AND FITNESS FOR A PARTICULAR PURPOSE. METROLIST, INC., DBA RECOLORADO SHALL NOT BE LIABLE FOR ERRORS CONTAINED HEREIN OR FOR ANY DAMAGES IN CONNECTION WITH THE FURNISHING, PERFORMANCE, OR USE OF THIS MATERIAL. PUBLISHER'S NOTICE: All real estate advertised herein is subject to the Federal Fair Housing Act and the Colorado Fair Housing Act, which Acts make it illegal to make or publish any advertisement that indicates any preference, limitation, or discrimination based on race, color, religion, sex, handicap, familial status, or national origin. METROLIST, INC., DBA RECOLORADO will not knowingly accept any advertising for real estate that is in violation of the law. All persons are hereby informed that all dwellings advertised are available on an equal opportunity basis. © 2025 METROLIST, INC., DBA RECOLORADO® - All Rights Reserved. 6455 S. Yosemite St., Suite 500, Greenwood Village, CO 80111 USA. ALL RIGHTS RESERVED WORLDWIDE. No part of this publication may be reproduced, adapted, translated, stored in a retrieval system or transmitted in any form or by any means, electronic, mechanical, photocopying, recording, or otherwise, without the prior written permission of the publisher. The information contained herein including but not limited to all text, photographs, digital images, virtual tours, may be seeded and monitored for protection and tracking.
Read moreLast checked Mar 17, 10:00 pm
- Jome
- New homes search
- Colorado
- Summit County
- Frisco
- 20 E Main St, Unit 203, Frisco, CO 80443








