




Book your tour. Save an average of $18,473. We'll handle the rest.
We collect exclusive builder offers, book your tours, and support you from start to housewarming.
- Confirmed tours
- Get matched & compare top deals
- Expert help, no pressure
- No added fees
Estimated value based on Jome data, T&C apply
Why tour with Jome?
- No pressure toursTour at your own pace with no sales pressure
- Expert guidanceGet insights from our home buying experts
- Exclusive accessSee homes and deals not available elsewhere
Jome is featured in
- Townhouse
- Under construction
- $313.31/sqft
- $588/annual HOA
Home description
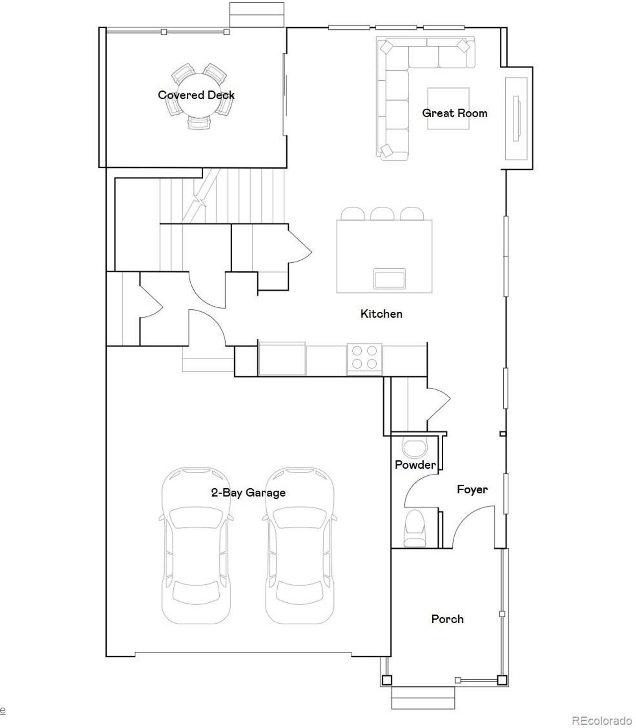
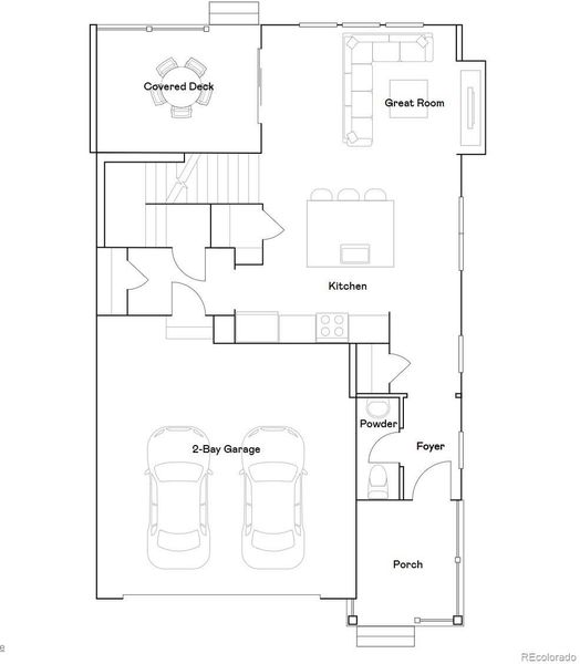
Contact builder today about Special Financing for this home - terms and conditions apply Welcome to Timber Lark, a newly established community in southeast Fort Collins offering thoughtfully designed homes with convenient access to nearby shopping, dining, and everyday amenities. Residents enjoy neighborhood open spaces and a community playground that provide inviting places to gather and enjoy time outdoors. Timber Lark is not located in a Metro District, helping homeowners avoid the additional property taxes often associated with newer developments, and low monthly HOA dues cover common area maintenance and snow removal, as well as trash and recycling service. This thoughtfully designed paired home features a bright and open main level where the kitchen and great room connect to create a comfortable setting for everyday living and entertaining. The kitchen includes a large center island that offers generous prep space and a natural gathering point for meals or conversation. A covered deck extends the living space outdoors, providing a relaxing place to enjoy morning coffee or unwind in the evening. Upstairs, the owner's suite offers a spacious private retreat with a walk-in closet and private bath, while two additional bedrooms share a full bathroom. A front-loading 2-car garage provides convenient parking and additional storage, and the home is finished with a farmhouse-inspired exterior that adds character and welcoming curb appeal. The unfinished basement with 8' ceilings offers potential for future expansion.
Kittle Real Estate, MLS REC2745329
May also be listed on the Lennar website
Information last verified by Jome: Today at 10:14 AM (March 9, 2026)
Book your tour. Save an average of $18,473. We'll handle the rest.
We collect exclusive builder offers, book your tours, and support you from start to housewarming.
- Confirmed tours
- Get matched & compare top deals
- Expert help, no pressure
- No added fees
Estimated value based on Jome data, T&C apply
Home details
- Property status:
- Under construction
- Size:
- 1,803 sqft
- Stories:
- 2
- Beds:
- 3
- Baths:
- 1
- Half baths:
- 1
- Garage spaces:
- 2
Construction details
- Builder Name:
- Lennar
- Year Built:
- 2026
- Roof:
- Composition Roofing
Home features & finishes
- Construction Materials:
- Frame
- Cooling:
- Central Air
- Flooring:
- Vinyl FlooringCarpet Flooring
- Garage/Parking:
- GarageAttached Garage
- Interior Features:
- Walk-In ClosetPantry
- Kitchen:
- DishwasherMicrowave OvenOvenRefrigeratorDisposalKitchen Island
- Laundry facilities:
- Laundry Facilities In Unit
- Property amenities:
- BasementDeck
- Rooms:
- Open Concept Floorplan
- Security system:
- Smoke DetectorCarbon Monoxide Detector
Room details
Kitchen
Bedroom 1
Great Room

Get a consultation with our New Homes Expert
- See how your home builds wealth
- Plan your home-buying roadmap
- Discover hidden gems
Utility information
- Heating:
- Forced Air Heating
- Utilities:
- Electricity Available, Natural Gas Available

Community details
Timber Lark
by Lennar, Fort Collins, CO
- 16 homes
- 12 plans
- 1,474 - 3,173 sqft
View Timber Lark details
More homes in Timber Lark
- Home at address 6404 Red Willow Dr, Fort Collins, CO 80528

Home
$524,900
- 3 bd
- 1.5 ba
- 2,241 sqft
6404 Red Willow Dr, Fort Collins, CO 80528
- Home at address 6402 Red Willow Dr, Fort Collins, CO 80528

Home
$530,900
- 3 bd
- 1.5 ba
- 2,241 sqft
6402 Red Willow Dr, Fort Collins, CO 80528
- Home at address 6403 Masked Lark St, Fort Collins, CO 80528

Home
$544,900
- 4 bd
- 2.5 ba
- 2,746 sqft
6403 Masked Lark St, Fort Collins, CO 80528
- Home at address 6407 Masked Lark St, Fort Collins, CO 80528

Home
$544,900
- 4 bd
- 2.5 ba
- 2,734 sqft
6407 Masked Lark St, Fort Collins, CO 80528
- Home at address 1944 Crested Lark St, Fort Collins, CO 80528

Home
$564,900
- 3 bd
- 1.5 ba
- 2,460 sqft
1944 Crested Lark St, Fort Collins, CO 80528
- Home at address 1926 Crested Lark St, Fort Collins, CO 80528

Home
$569,900
- 3 bd
- 1.5 ba
- 2,564 sqft
1926 Crested Lark St, Fort Collins, CO 80528
Floor plans in Timber Lark
About the builder - Lennar

- 1,786communities on Jome
- 6,448homes on Jome
Neighborhood
Home address
- City:
- Fort Collins
- County:
- Larimer
- Zip Code:
- 80528
Schools in Poudre School District R-1
GreatSchools’ Summary Rating calculation is based on 4 of the school’s themed ratings, including test scores, student/academic progress, college readiness, and equity. This information should only be used as a reference. Jome is not affiliated with GreatSchools and does not endorse or guarantee this information. Please reach out to schools directly to verify all information and enrollment eligibility. Data provided by GreatSchools.org © 2025
Places of interest
Getting around
Air quality
Noise level
A Soundscore™ rating is a number between 50 (very loud) and 100 (very quiet) that tells you how loud a location is due to environmental noise.

Considering this home?
Our expert will guide your tour, in-person or virtual
Need more information?
Text or call (888) 488-9243
Financials
Estimated monthly payment
Let us help you find your dream home
How many bedrooms are you looking for?
Similar homes nearby
Recently added communities in this area
Nearby communities in Fort Collins
New homes in nearby cities
More New Homes in Fort Collins, CO
Kittle Real Estate, MLS REC2745329
The content relating to real estate for sale in this Web site comes in part from the Internet Data eXchange (“IDX”) program of METROLIST, INC., DBA RECOLORADO® Real estate listings held by brokers other than NewHomesMate LLC, DBA Jome are marked with the IDX Logo. This information is being provided for the consumers’ personal, non-commercial use and may not be used for any other purpose. All information subject to change and should be independently verified. This publication is designed to provide information with regard to the subject matter covered. It is displayed with the understanding that the publisher and authors are not engaged in rendering real estate, legal, accounting, tax, or other professional services and that the publisher and authors are not offering such advice in this publication. If real estate, legal, or other expert assistance is required, the services of a competent, professional person should be sought. The information contained in this publication is subject to change without notice. METROLIST, INC., DBA RECOLORADO MAKES NO WARRANTY OF ANY KIND WITH REGARD TO THIS MATERIAL, INCLUDING, BUT NOT LIMITED TO, THE IMPLIED WARRANTIES OF MERCHANTABILITY AND FITNESS FOR A PARTICULAR PURPOSE. METROLIST, INC., DBA RECOLORADO SHALL NOT BE LIABLE FOR ERRORS CONTAINED HEREIN OR FOR ANY DAMAGES IN CONNECTION WITH THE FURNISHING, PERFORMANCE, OR USE OF THIS MATERIAL. PUBLISHER'S NOTICE: All real estate advertised herein is subject to the Federal Fair Housing Act and the Colorado Fair Housing Act, which Acts make it illegal to make or publish any advertisement that indicates any preference, limitation, or discrimination based on race, color, religion, sex, handicap, familial status, or national origin. METROLIST, INC., DBA RECOLORADO will not knowingly accept any advertising for real estate that is in violation of the law. All persons are hereby informed that all dwellings advertised are available on an equal opportunity basis. © 2025 METROLIST, INC., DBA RECOLORADO® - All Rights Reserved. 6455 S. Yosemite St., Suite 500, Greenwood Village, CO 80111 USA. ALL RIGHTS RESERVED WORLDWIDE. No part of this publication may be reproduced, adapted, translated, stored in a retrieval system or transmitted in any form or by any means, electronic, mechanical, photocopying, recording, or otherwise, without the prior written permission of the publisher. The information contained herein including but not limited to all text, photographs, digital images, virtual tours, may be seeded and monitored for protection and tracking.
Read moreLast checked Mar 9, 10:00 am
- Jome
- New homes search
- Colorado
- Denver Metropolitan Area
- Larimer County
- Fort Collins
- Timber Lark
- 1944 Crested Lark St, Fort Collins, CO 80528






























