




Book your tour. Save an average of $18,473. We'll handle the rest.
- Confirmed tours
- Get matched & compare top deals
- Expert help, no pressure
- No added fees
Estimated value based on Jome data, T&C apply
- 4 bd
- 2 ba
- 2,073 sqft
9154 Old Divide Dr, Colorado Springs, CO 80908
Why tour with Jome?
- No pressure toursTour at your own pace with no sales pressure
- Expert guidanceGet insights from our home buying experts
- Exclusive accessSee homes and deals not available elsewhere
Jome is featured in
- Single-Family
- Under construction
- $233.57/sqft
- $360/annual HOA
Home description
*Contact builder today about Special Financing for this home - terms and conditions apply
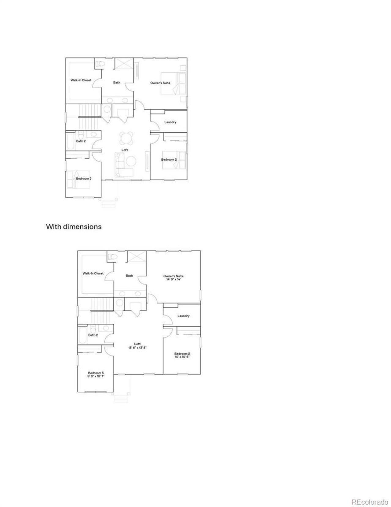
Anticipated completion January 2026! This gorgeous Marigold 2-story in Percheron features 4 beds (3 upper / 1 main), 2 baths, great room, kitchen, loft, 2 car garage and crawlspace. Beautiful upgrades and finishes throughout including vinyl plank floors, stainless steel appliances, slab Quartz counters and more. This builder provides the latest in energy efficiency and state of the art technology with several fabulous floorplans to choose from. Energy efficiency & technology/connectivity seamlessly blended with luxury to make your new house a home. What some builders consider high-end upgrades, the builder makes a standard inclusion. This community offers single family homes for every lifestyle. Close to dining, shopping, entertainment and other amenities. Don’t wait – this community will sell out quickly! Photos and walkthrough tour are model only and subject to change.
RE/MAX Professionals, MLS REC8341727
May also be listed on the Lennar website
Information last verified by Jome: Today at 10:06 AM (January 19, 2026)
Book your tour. Save an average of $18,473. We'll handle the rest.
We collect exclusive builder offers, book your tours, and support you from start to housewarming.
- Confirmed tours
- Get matched & compare top deals
- Expert help, no pressure
- No added fees
Estimated value based on Jome data, T&C apply
Home details
- Property status:
- Under construction
- Lot size (acres):
- 0.14
- Size:
- 2,073 sqft
- Stories:
- 2
- Beds:
- 4
- Baths:
- 2
- Garage spaces:
- 2
Construction details
- Builder Name:
- Lennar
- Completion Date:
- January, 2026
- Year Built:
- 2026
- Roof:
- Composition Roofing
Home features & finishes
- Construction Materials:
- Frame
- Cooling:
- Central Air
- Flooring:
- Vinyl FlooringCarpet FlooringTile Flooring
- Garage/Parking:
- GarageAttached GarageTandem Parking
- Interior Features:
- Walk-In ClosetFoyerPantryBreakfast Bar
- Kitchen:
- DishwasherMicrowave OvenRefrigeratorDisposalQuartz countertopSelf Cleaning OvenKitchen Island
- Laundry facilities:
- Laundry Facilities In UnitUtility/Laundry Room
- Pets:
- Pets AllowedCat(s) Only AllowedDog(s) Only Allowed
- Property amenities:
- BasementYardPorch
- Rooms:
- KitchenFamily RoomBreakfast AreaOpen Concept Floorplan
- Security system:
- Smoke DetectorCarbon Monoxide Detector
Room details
Dining Room
Bedroom 1
Great Room

Get a consultation with our New Homes Expert
- See how your home builds wealth
- Plan your home-buying roadmap
- Discover hidden gems
Utility information
- Heating:
- Forced Air Heating
- Utilities:
- Electricity Available, Natural Gas Available, Phone Available, Cable Available

Community details
Percheron: The Petal Collection
by Lennar, Colorado Springs, CO
- 5 homes
- 4 plans
- 1,474 - 2,544 sqft
View Percheron: The Petal Collection details
More homes in Percheron: The Petal Collection
- Home at address 9134 Old Divide Dr, Colorado Springs, CO 80908

Dolly
$474,650
- 4 bd
- 1 ba
- 1,672 sqft
9134 Old Divide Dr, Colorado Springs, CO 80908
- Home at address 9144 Old Divide Dr, Colorado Springs, CO 80908

Marigold
$498,350
- 4 bd
- 2 ba
- 2,073 sqft
9144 Old Divide Dr, Colorado Springs, CO 80908
- Home at address 9214 Old Divide Dr, Colorado Springs, CO 80908

Orchid
$545,900
- 5 bd
- 1.5 ba
- 2,544 sqft
9214 Old Divide Dr, Colorado Springs, CO 80908
Floor plans in Percheron: The Petal Collection
About the builder - Lennar

- 1,332communities on Jome
- 6,440homes on Jome
Neighborhood
Home address
- City:
- Colorado Springs
- County:
- El Paso
- Zip Code:
- 80908
Schools in School District 49
- Grades KG-08Charterpioneer technology and arts academy2.5 mi6464 peterson roadna
GreatSchools’ Summary Rating calculation is based on 4 of the school’s themed ratings, including test scores, student/academic progress, college readiness, and equity. This information should only be used as a reference. Jome is not affiliated with GreatSchools and does not endorse or guarantee this information. Please reach out to schools directly to verify all information and enrollment eligibility. Data provided by GreatSchools.org © 2025
Places of interest
Getting around
Air quality
Noise level
A Soundscore™ rating is a number between 50 (very loud) and 100 (very quiet) that tells you how loud a location is due to environmental noise.

Considering this home?
Our expert will guide your tour, in-person or virtual
Need more information?
Text or call (888) 486-2818
Financials
Estimated monthly payment
Let us help you find your dream home
How many bedrooms are you looking for?
Similar homes nearby
Recently added communities in this area
Nearby communities in Colorado Springs
New homes in nearby cities
More New Homes in Colorado Springs, CO
RE/MAX Professionals, MLS REC8341727
The content relating to real estate for sale in this Web site comes in part from the Internet Data eXchange (“IDX”) program of METROLIST, INC., DBA RECOLORADO® Real estate listings held by brokers other than NewHomesMate LLC, DBA Jome are marked with the IDX Logo. This information is being provided for the consumers’ personal, non-commercial use and may not be used for any other purpose. All information subject to change and should be independently verified. This publication is designed to provide information with regard to the subject matter covered. It is displayed with the understanding that the publisher and authors are not engaged in rendering real estate, legal, accounting, tax, or other professional services and that the publisher and authors are not offering such advice in this publication. If real estate, legal, or other expert assistance is required, the services of a competent, professional person should be sought. The information contained in this publication is subject to change without notice. METROLIST, INC., DBA RECOLORADO MAKES NO WARRANTY OF ANY KIND WITH REGARD TO THIS MATERIAL, INCLUDING, BUT NOT LIMITED TO, THE IMPLIED WARRANTIES OF MERCHANTABILITY AND FITNESS FOR A PARTICULAR PURPOSE. METROLIST, INC., DBA RECOLORADO SHALL NOT BE LIABLE FOR ERRORS CONTAINED HEREIN OR FOR ANY DAMAGES IN CONNECTION WITH THE FURNISHING, PERFORMANCE, OR USE OF THIS MATERIAL. PUBLISHER'S NOTICE: All real estate advertised herein is subject to the Federal Fair Housing Act and the Colorado Fair Housing Act, which Acts make it illegal to make or publish any advertisement that indicates any preference, limitation, or discrimination based on race, color, religion, sex, handicap, familial status, or national origin. METROLIST, INC., DBA RECOLORADO will not knowingly accept any advertising for real estate that is in violation of the law. All persons are hereby informed that all dwellings advertised are available on an equal opportunity basis. © 2025 METROLIST, INC., DBA RECOLORADO® - All Rights Reserved. 6455 S. Yosemite St., Suite 500, Greenwood Village, CO 80111 USA. ALL RIGHTS RESERVED WORLDWIDE. No part of this publication may be reproduced, adapted, translated, stored in a retrieval system or transmitted in any form or by any means, electronic, mechanical, photocopying, recording, or otherwise, without the prior written permission of the publisher. The information contained herein including but not limited to all text, photographs, digital images, virtual tours, may be seeded and monitored for protection and tracking.
Read moreLast checked Jan 19, 10:00 am
- Jome
- New homes search
- Colorado
- El Paso County
- Colorado Springs
- Percheron: The Petal Collection
- 9154 Old Divide Dr, Colorado Springs, CO 80908






















