




Book your tour. Save an average of $18,473. We'll handle the rest.
- Confirmed tours
- Get matched & compare top deals
- Expert help, no pressure
- No added fees
Estimated value based on Jome data, T&C apply
- 3 bd
- 1.5 ba
- 1,904 sqft
1630 Continental Peaks Cir, Estes Park, CO 80517
Why tour with Jome?
- No pressure toursTour at your own pace with no sales pressure
- Expert guidanceGet insights from our home buying experts
- Exclusive accessSee homes and deals not available elsewhere
Jome is featured in
- Single-Family
- Under construction
- $522.58/sqft
- South facing
Home description
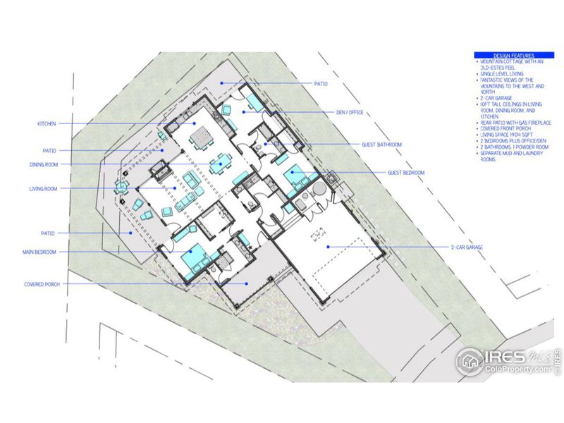
Dream Home Opportunity in Estes Park Welcome to your future mountain retreat on Lot 15, perfectly located in the serene north end of Estes Park in the Wildfire Homes Subdivision. This exclusive opportunity allows you to design your dream home using our customizable plans and work with the designer to select finishes to your liking. Located in a tranquil setting, this property promises the best of mountain living with the convenience of modern amenities. Our plans include stunning finish options to create a luxurious and comfortable home. Choose from high-end materials such as quartz countertops, rich hardwood floors, and elegant soft-close cabinetry. With top-quality construction, your new home will offer both beauty and durability. Pricing will vary depending on your preferences, selections and square footage. Don't miss this chance to craft a home that perfectly fits your lifestyle in one of Colorado's most desirable locations. * Builder and Bank of Estes Park are offering buyers an incentive to cover select closing costs, saving thousands! Fences allowed with HOA approval. Plans and renderings are conceptual, buyers may pick their floor plan and finishes to customize their dream home with Wildfire Homes.
C3 Real Estate Solutions, LLC, MLS 1028945
Information last verified by Jome: Today at 5:10 AM (January 13, 2026)
Book your tour. Save an average of $18,473. We'll handle the rest.
We collect exclusive builder offers, book your tours, and support you from start to housewarming.
- Confirmed tours
- Get matched & compare top deals
- Expert help, no pressure
- No added fees
Estimated value based on Jome data, T&C apply
Home details
- Property status:
- Under construction
- Lot size (acres):
- 0.22
- Size:
- 1,904 sqft
- Stories:
- 1
- Beds:
- 3
- Baths:
- 1
- Half baths:
- 1
- Garage spaces:
- 2
- Facing direction:
- South
Construction details
- Year Built:
- 2025
- Roof:
- Composition Roofing
Home features & finishes
- Construction Materials:
- Wood FrameConcreteStone
- Cooling:
- Central Air
- Flooring:
- Vinyl FlooringCarpet Flooring
- Garage/Parking:
- Door OpenerGarageHeated GarageAttached Garage
- Home amenities:
- Green Construction
- Interior Features:
- Walk-In ClosetPantry
- Kitchen:
- DishwasherMicrowave OvenOvenRefrigeratorDisposalQuartz countertopKitchen CountertopKitchen IslandElectric Oven
- Laundry facilities:
- DryerWasherLaundry Facilities On Main LevelUtility/Laundry Room
- Property amenities:
- BasementSatellite Dish OwnedPatioFireplace
- Rooms:
- Primary Bedroom On MainKitchenDining RoomFamily RoomOpen Concept FloorplanSeparate Living and DiningPrimary Bedroom Downstairs
- Security system:
- Fire Alarm SystemFire Sprinkler System
Room details
Master Bedroom
Kitchen
Dining Room

Get a consultation with our New Homes Expert
- See how your home builds wealth
- Plan your home-buying roadmap
- Discover hidden gems
Utility information
- Heating:
- Forced Air Heating
- Utilities:
- Electricity Available, Natural Gas Available, Underground Utilities, HVAC, Cable Available, High Speed Internet Access
Community amenities
- Mountain(s) View
Neighborhood
Home address
- City:
- Estes Park
- County:
- Larimer
- Zip Code:
- 80517
Schools in Estes Park School District R-3
GreatSchools’ Summary Rating calculation is based on 4 of the school’s themed ratings, including test scores, student/academic progress, college readiness, and equity. This information should only be used as a reference. Jome is not affiliated with GreatSchools and does not endorse or guarantee this information. Please reach out to schools directly to verify all information and enrollment eligibility. Data provided by GreatSchools.org © 2025
Places of interest
Getting around
Natural hazards risk
Provided by FEMA

Considering this home?
Our expert will guide your tour, in-person or virtual
Need more information?
Text or call (888) 486-2818
Financials
Estimated monthly payment
Let us help you find your dream home
How many bedrooms are you looking for?
Similar homes nearby
Recently added communities in this area
Nearby communities in Estes Park
New homes in nearby cities
More New Homes in Estes Park, CO
C3 Real Estate Solutions, LLC, MLS 1028945
Information source: Information and Real Estate Services, LLC. Provided for limited non-commercial use only under IRES Rules © 2025 IRES, LLC. Listing information is provided exclusively for consumers' personal, non-commercial use and may not be used for any purpose other than to identify prospective properties consumers may be interested in purchasing. Information deemed reliable but not guaranteed by the MLS. Compensation information displayed on listing details is only applicable to other participants and subscribers of the source MLS.
Read moreLast checked Jan 13, 5:20 am
- Jome
- New homes search
- Colorado
- Larimer County
- Estes Park
- 1630 Continental Peaks Cir, Estes Park, CO 80517





















