



Book your tour. Save an average of $18,473. We'll handle the rest.
We collect exclusive builder offers, book your tours, and support you from start to housewarming.
- Confirmed tours
- Get matched & compare top deals
- Expert help, no pressure
- No added fees
Estimated value based on Jome data, T&C apply
- 2 bd
- 1 ba
- 1,792 sqft
1856 Hwy 144, Orchard, CO 80649
Why tour with Jome?
- No pressure toursTour at your own pace with no sales pressure
- Expert guidanceGet insights from our home buying experts
- Exclusive accessSee homes and deals not available elsewhere
Jome is featured in
- Single-Family
- Under construction
- $229.91/sqft
- 0.65-acre lot
Home description
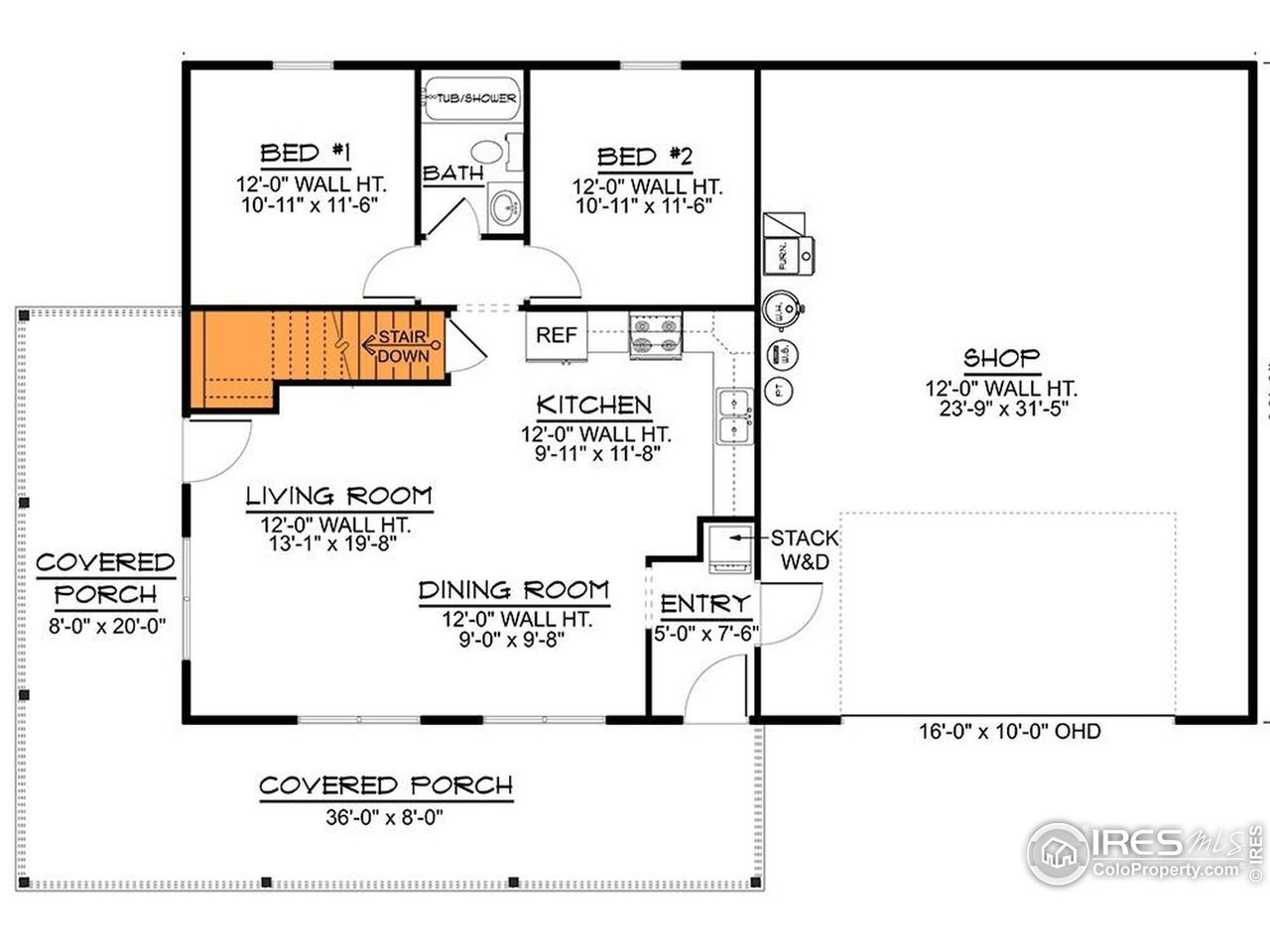
Awesome property located close Jackson Lake State Park with easy access to Highway 34 and I-76. 2 bed/1bath Barndominium with attached 768 sqft garage to park all your toys in and full unfinished basement. Property includes 1 MCQW tap and well. Builder can modify plan or finish basement to suit buyers needs.
MLS IRE1032228
Information last verified by Jome: Today at 5:00 AM (April 15, 2026)
Book your tour. Save an average of $18,473. We'll handle the rest.
We collect exclusive builder offers, book your tours, and support you from start to housewarming.
- Confirmed tours
- Get matched & compare top deals
- Expert help, no pressure
- No added fees
Estimated value based on Jome data, T&C apply
Home details
- Property status:
- Under construction
- Lot size (acres):
- 0.65
- Size:
- 1,792 sqft
- Stories:
- 1
- Beds:
- 2
- Baths:
- 1
- Garage spaces:
- 2
Construction details
- Year Built:
- 2025
- Roof:
- Metal Roofing
Home features & finishes
- Construction Materials:
- Wood FrameFrame
- Cooling:
- Central Air
- Flooring:
- Vinyl Flooring
- Garage/Parking:
- GarageAttached Garage
- Interior Features:
- Walk-In Closet
- Kitchen:
- DishwasherMicrowave OvenOvenRefrigeratorElectric Oven
- Laundry facilities:
- Utility/Laundry Room
- Property amenities:
- BasementPatio
- Rooms:
- Primary Bedroom On MainPrimary Bedroom Downstairs
Room details
Master Bedroom
Kitchen
Dining Room

Get a consultation with our New Homes Expert
- See how your home builds wealth
- Plan your home-buying roadmap
- Discover hidden gems
Utility information
- Heating:
- Forced Air Heating
- Sewer:
- Septic Tank
- Utilities:
- Electricity Available, Propane
- Water source:
- Public, Well
Neighborhood
Home address
Schools in Weldon Valley School District RE-20J
GreatSchools’ Summary Rating calculation is based on 4 of the school’s themed ratings, including test scores, student/academic progress, college readiness, and equity. This information should only be used as a reference. Jome is not affiliated with GreatSchools and does not endorse or guarantee this information. Please reach out to schools directly to verify all information and enrollment eligibility. Data provided by GreatSchools.org © 2025
Places of interest
Getting around
Air quality
Natural hazards risk
Provided by FEMA

Considering this home?
Our expert will guide your tour, in-person or virtual
Need more information?
Text or call (888) 545-5198
Financials
Estimated monthly payment
Let us help you find your dream home
How many bedrooms are you looking for?
Similar homes nearby
Recently added communities in this area
Nearby communities in Orchard
New homes in nearby cities
More New Homes in Orchard, CO
MLS IRE1032228
Information source: Information and Real Estate Services, LLC. Provided for limited non-commercial use only under IRES Rules © 2025 IRES, LLC. Listing information is provided exclusively for consumers' personal, non-commercial use and may not be used for any purpose other than to identify prospective properties consumers may be interested in purchasing. Information deemed reliable but not guaranteed by the MLS. Compensation information displayed on listing details is only applicable to other participants and subscribers of the source MLS.
Read moreLast checked Apr 15, 6:20 am
- Jome
- New homes search
- Colorado
- Morgan County
- Orchard
- 1856 Hwy 144, Orchard, CO 80649





