











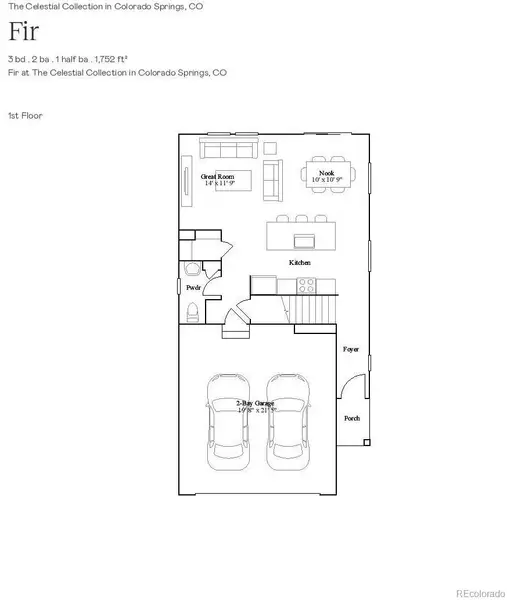
- 3 bd
- 1.5 ba
- 1,752 sqft
1139 Redfish Pt, Colorado Springs, CO 80904
- Single-Family
- $302.71/sqft
- $480/annual HOA
- 0.06-acre lot
New Homes for Sale Near 1139 Redfish Pt, Colorado Springs, CO 80904
About this Home
*Contact builder today about Special Financing for this home - terms and conditions apply
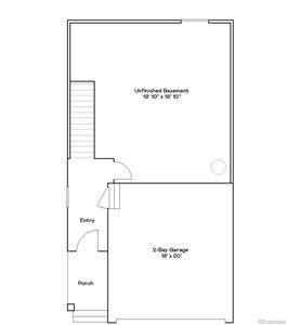
NOW SELLING! Anticipated Completion October 2025! Feel right at home in this beautiful new Fir 2-story floorplan located in the Preserve at Mesa Creek. Featuring 3 beds, 2.5baths, great room, kitchen, loft and 2 car garage. Beautiful upgrades and finishes throughout including luxury vinyl plank flooring, stainless steel appliances and more. The builder provides the latest in energy efficiency and state of the art technology with several fabulous floor plans to choose from. What some builders consider high-end upgrades, this builder makes a standard inclusion.
This beautiful community is nestled at the foot of the Rocky Mountains. Just a short drive to Old City Colorado, dining, shopping and other amenities. Explore and hike at Garden of the Gods and Pikes Peak. Come see what you have been missing today! Welcome home! Photos and walkthrough tour are a model only and subject to change.
RE/MAX Professionals, MLS REC2428063
May also be listed on the Lennar website
Information last verified by Jome: Wednesday at 10:00 PM (October 29, 2025)
Home details
- Property status:
- Sold
- Neighborhood:
- West Colorado Springs
- Lot size (acres):
- 0.06
- Size:
- 1,752 sqft
- Stories:
- 2
- Beds:
- 3
- Baths:
- 1.5
- Garage spaces:
- 2
Construction details
- Builder Name:
- Lennar
- Completion Date:
- October, 2025
- Year Built:
- 2025
- Roof:
- Composition Roofing
Home features & finishes
- Construction Materials:
- Frame
- Cooling:
- Central Air
- Flooring:
- Vinyl FlooringCarpet FlooringTile Flooring
- Garage/Parking:
- GarageAttached Garage
- Interior Features:
- Walk-In ClosetFoyer
- Kitchen:
- DishwasherMicrowave OvenDisposalQuartz countertopKitchen IslandKitchen Range
- Laundry facilities:
- Laundry Facilities In Unit
- Pets:
- Pets AllowedCat(s) Only AllowedDog(s) Only Allowed
- Property amenities:
- Porch
- Rooms:
- Open Concept Floorplan
- Security system:
- Smoke DetectorCarbon Monoxide Detector
Utility information
- Heating:
- Forced Air Heating
- Utilities:
- Electricity Available, Natural Gas Available, Internet Cable, Phone Available, Cable Available

Community details
Preserve at Mesa Creek: The Celestial Collection
by Lennar, Colorado Springs, CO
- 4 homes
- 5 plans
- 1,572 - 2,222 sqft
View Preserve at Mesa Creek: The Celestial Collection details
More homes in Preserve at Mesa Creek: The Celestial Collection
Floor plans in Preserve at Mesa Creek: The Celestial Collection
About the builder - Lennar
Neighborhood
Home address
- Neighborhood:
- West Colorado Springs
- City:
- Colorado Springs
Schools in Colorado Springs School District 11
GreatSchools’ Summary Rating calculation is based on 4 of the school’s themed ratings, including test scores, student/academic progress, college readiness, and equity. This information should only be used as a reference. Jome is not affiliated with GreatSchools and does not endorse or guarantee this information. Please reach out to schools directly to verify all information and enrollment eligibility. Data provided by GreatSchools.org © 2025
Places of interest
Getting around
3 nearby routes: 3 bus, 0 rail, 0 otherAir quality
Noise level
A Soundscore™ rating is a number between 50 (very loud) and 100 (very quiet) that tells you how loud a location is due to environmental noise.
Natural hazards risk
Climate hazards can impact homes and communities, with risks varying by location. These scores reflect the potential impact of natural disasters and climate-related risks on El Paso County
Provided by FEMA
Financials
Nearby communities in Colorado Springs
Homes in Colorado Springs Neighborhoods
Homes in Colorado Springs by Lennar
Recently added communities in this area
Other Builders in Colorado Springs, CO
Nearby sold homes
New homes in nearby cities
More New Homes in Colorado Springs, CO
RE/MAX Professionals, MLS REC2428063
The content relating to real estate for sale in this Web site comes in part from the Internet Data eXchange (“IDX”) program of METROLIST, INC., DBA RECOLORADO® Real estate listings held by brokers other than NewHomesMate LLC, DBA Jome are marked with the IDX Logo. This information is being provided for the consumers’ personal, non-commercial use and may not be used for any other purpose. All information subject to change and should be independently verified. This publication is designed to provide information with regard to the subject matter covered. It is displayed with the understanding that the publisher and authors are not engaged in rendering real estate, legal, accounting, tax, or other professional services and that the publisher and authors are not offering such advice in this publication. If real estate, legal, or other expert assistance is required, the services of a competent, professional person should be sought. The information contained in this publication is subject to change without notice. METROLIST, INC., DBA RECOLORADO MAKES NO WARRANTY OF ANY KIND WITH REGARD TO THIS MATERIAL, INCLUDING, BUT NOT LIMITED TO, THE IMPLIED WARRANTIES OF MERCHANTABILITY AND FITNESS FOR A PARTICULAR PURPOSE. METROLIST, INC., DBA RECOLORADO SHALL NOT BE LIABLE FOR ERRORS CONTAINED HEREIN OR FOR ANY DAMAGES IN CONNECTION WITH THE FURNISHING, PERFORMANCE, OR USE OF THIS MATERIAL. PUBLISHER'S NOTICE: All real estate advertised herein is subject to the Federal Fair Housing Act and the Colorado Fair Housing Act, which Acts make it illegal to make or publish any advertisement that indicates any preference, limitation, or discrimination based on race, color, religion, sex, handicap, familial status, or national origin. METROLIST, INC., DBA RECOLORADO will not knowingly accept any advertising for real estate that is in violation of the law. All persons are hereby informed that all dwellings advertised are available on an equal opportunity basis. © 2025 METROLIST, INC., DBA RECOLORADO® - All Rights Reserved. 6455 S. Yosemite St., Suite 500, Greenwood Village, CO 80111 USA. ALL RIGHTS RESERVED WORLDWIDE. No part of this publication may be reproduced, adapted, translated, stored in a retrieval system or transmitted in any form or by any means, electronic, mechanical, photocopying, recording, or otherwise, without the prior written permission of the publisher. The information contained herein including but not limited to all text, photographs, digital images, virtual tours, may be seeded and monitored for protection and tracking.
Read moreLast checked Dec 29, 4:00 am
- Jome
- New homes search
- Colorado
- El Paso County
- Colorado Springs
- Preserve at Mesa Creek: The Celestial Collection
- 1139 Redfish Pt, Colorado Springs, CO 80904



























































