













Book your tour. Save an average of $18,473. We'll handle the rest.
- Confirmed tours
- Get matched & compare top deals
- Expert help, no pressure
- No added fees
Estimated value based on Jome data, T&C apply
































- 3 bd
- 2.5 ba
- 1,633 sqft
3875 W 83Rd Ln, Westminster, CO 80031
Why tour with Jome?
- No pressure toursTour at your own pace with no sales pressure
- Expert guidanceGet insights from our home buying experts
- Exclusive accessSee homes and deals not available elsewhere
Jome is featured in
- Duplex
- Quick move-in
- $355.17/sqft
- $1,560/annual HOA
Home description
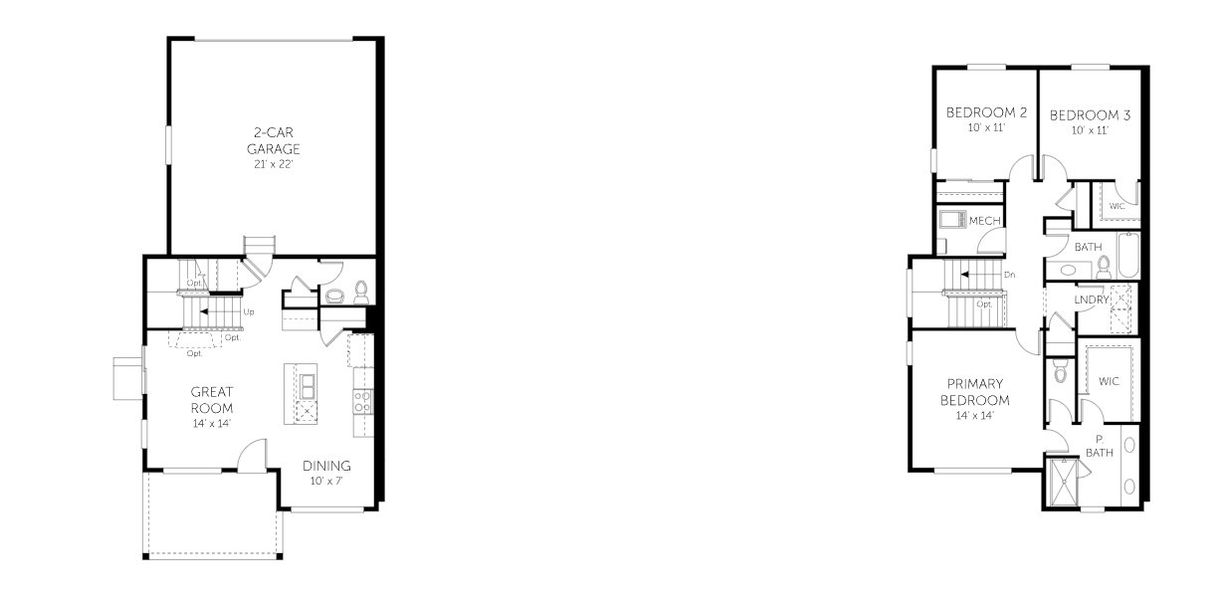
Corner lot with open space and limited neighbors! This home is eligible for our interest rate buy down!! The Lowell Plan offers 1,633 sq. ft. of comfortable, well-designed living space with 3 bedrooms, 2.5 bathrooms, and a 2-car garage. The first floor features the garage, dining space, great room with gas fireplace, powder bath, and a spacious covered porch—perfect for relaxing or entertaining. Upstairs, you’ll find all three bedrooms including the primary suite, two full bathrooms, and a versatile 10x11 loft space ideal for a home office, playroom, or lounge. Mountain views are expected!!
This home is ready for move-in!
Pictures are of actual home, come take a tour today!
DFH Colorado Realty LLC, MLS REC1940217
May also be listed on the Dream Finders Homes website
Information last verified by Jome: Today at 4:00 PM (February 2, 2026)
Home highlights
Popular Denver lake offering mountain views, trails, and a vibrant community near the city’s westside neighborhoods.
Book your tour. Save an average of $18,473. We'll handle the rest.
We collect exclusive builder offers, book your tours, and support you from start to housewarming.
- Confirmed tours
- Get matched & compare top deals
- Expert help, no pressure
- No added fees
Estimated value based on Jome data, T&C apply
Home details
- Property status:
- Move-in ready
- Lot size (acres):
- 0.05
- Size:
- 1,633 sqft
- Stories:
- 2
- Beds:
- 3
- Baths:
- 2
- Half baths:
- 1
- Garage spaces:
- 2
- Fence:
- Partial Fence
- Facing direction:
- Northwest

Floor plan details
Sheridan - Paired Homes
- 3 bd
- 2.5 ba
- 1,535 sqft
View Sheridan - Paired Homes details
Construction details
- Builder Name:
- Dream Finders Homes
- Year Built:
- 2025
- Roof:
- Roof Gutter
Home features & finishes
- Appliances:
- Sprinkler System
- Construction Materials:
- CementBrickFrame
- Cooling:
- Central Air
- Flooring:
- Laminate FlooringCarpet FlooringTile Flooring
- Foundation Details:
- Concrete Perimeter
- Garage/Parking:
- GarageAttached GarageCar Charging Stations
- Home amenities:
- Green Construction
- Interior Features:
- Walk-In ClosetFoyerPantryBreakfast Bar
- Kitchen:
- DishwasherMicrowave OvenDisposalQuartz countertopGranite countertopKitchen IslandKitchen Range
- Laundry facilities:
- Laundry Facilities In UnitUtility/Laundry Room
- Lighting:
- Exterior LightingLighting
- Pets:
- Pets Allowed
- Property amenities:
- BasementLandscapingFireplaceYardSmart Home SystemPorch
- Rooms:
- Great RoomKitchenPowder RoomDining RoomFamily RoomLiving RoomBreakfast AreaOpen Concept FloorplanPrimary Bedroom Upstairs
- Security system:
- Smoke DetectorCarbon Monoxide Detector
Room details
Review the full to see how these rooms are laid out and connected
Dining Room
Bedroom 1
Great Room

Get a consultation with our New Homes Expert
- See how your home builds wealth
- Plan your home-buying roadmap
- Discover hidden gems
Utility information
- Heating:
- Water Heater, Forced Air Heating, Tankless water heater
- Utilities:
- Electricity Available, Natural Gas Available, Internet Cable

Community details
Uplands
by Dream Finders Homes, Westminster, CO
- 17 homes
- 7 plans
- 1,535 - 2,338 sqft
View Uplands details
Community amenities
- Playground
- Mountain(s) View
More homes in Uplands
- Home at address 3883 W 83Rd Ln, Westminster, CO 80031

Lowell
$549,990
- 3 bd
- 2.5 ba
- 1,535 sqft
3883 W 83Rd Ln, Westminster, CO 80031
- Home at address 3851 W 82Nd Ln, Westminster, CO 80031

Sheridan
$564,990
- 3 bd
- 2.5 ba
- 1,535 sqft
3851 W 82Nd Ln, Westminster, CO 80031
- Home at address 3881 W 82Nd Ln, Westminster, CO 80031

Sheridan
$569,990
- 3 bd
- 2.5 ba
- 1,535 sqft
3881 W 82Nd Ln, Westminster, CO 80031
- Home at address 3861 W 82Nd Ln, Westminster, CO 80031

Lowell
$579,990
- 3 bd
- 2.5 ba
- 1,633 sqft
3861 W 82Nd Ln, Westminster, CO 80031
- Home at address 3841 W 82Nd Ln, Westminster, CO 80031

Sheridan
$579,990
- 3 bd
- 2.5 ba
- 1,535 sqft
3841 W 82Nd Ln, Westminster, CO 80031
- Home at address 3885 W 82Nd Ln, Westminster, CO 80031

Tennyson
$579,990
- 3 bd
- 2.5 ba
- 1,720 sqft
3885 W 82Nd Ln, Westminster, CO 80031
Floor plans in Uplands
About the builder - Dream Finders Homes

- 259communities on Jome
- 1,529homes on Jome
Neighborhood
Home address
- City:
- Westminster
- County:
- Adams
- Zip Code:
- 80031
Schools in Westminster Public School District
- Grades PK-PKPublicearly learning center at gregory hill0.6 mi8030 irving streetna
GreatSchools’ Summary Rating calculation is based on 4 of the school’s themed ratings, including test scores, student/academic progress, college readiness, and equity. This information should only be used as a reference. Jome is not affiliated with GreatSchools and does not endorse or guarantee this information. Please reach out to schools directly to verify all information and enrollment eligibility. Data provided by GreatSchools.org © 2025
Places of interest
Getting around
1 nearby routes: 1 bus, 0 rail, 0 otherAir quality
Noise level
A Soundscore™ rating is a number between 50 (very loud) and 100 (very quiet) that tells you how loud a location is due to environmental noise.

Considering this home?
Our expert will guide your tour, in-person or virtual
Need more information?
Text or call (888) 486-2818
Financials
Estimated monthly payment
Let us help you find your dream home
How many bedrooms are you looking for?
Similar homes nearby
Recently added communities in this area
Nearby communities in Westminster
New homes in nearby cities
More New Homes in Westminster, CO
DFH Colorado Realty LLC, MLS REC1940217
The content relating to real estate for sale in this Web site comes in part from the Internet Data eXchange (“IDX”) program of METROLIST, INC., DBA RECOLORADO® Real estate listings held by brokers other than NewHomesMate LLC, DBA Jome are marked with the IDX Logo. This information is being provided for the consumers’ personal, non-commercial use and may not be used for any other purpose. All information subject to change and should be independently verified. This publication is designed to provide information with regard to the subject matter covered. It is displayed with the understanding that the publisher and authors are not engaged in rendering real estate, legal, accounting, tax, or other professional services and that the publisher and authors are not offering such advice in this publication. If real estate, legal, or other expert assistance is required, the services of a competent, professional person should be sought. The information contained in this publication is subject to change without notice. METROLIST, INC., DBA RECOLORADO MAKES NO WARRANTY OF ANY KIND WITH REGARD TO THIS MATERIAL, INCLUDING, BUT NOT LIMITED TO, THE IMPLIED WARRANTIES OF MERCHANTABILITY AND FITNESS FOR A PARTICULAR PURPOSE. METROLIST, INC., DBA RECOLORADO SHALL NOT BE LIABLE FOR ERRORS CONTAINED HEREIN OR FOR ANY DAMAGES IN CONNECTION WITH THE FURNISHING, PERFORMANCE, OR USE OF THIS MATERIAL. PUBLISHER'S NOTICE: All real estate advertised herein is subject to the Federal Fair Housing Act and the Colorado Fair Housing Act, which Acts make it illegal to make or publish any advertisement that indicates any preference, limitation, or discrimination based on race, color, religion, sex, handicap, familial status, or national origin. METROLIST, INC., DBA RECOLORADO will not knowingly accept any advertising for real estate that is in violation of the law. All persons are hereby informed that all dwellings advertised are available on an equal opportunity basis. © 2025 METROLIST, INC., DBA RECOLORADO® - All Rights Reserved. 6455 S. Yosemite St., Suite 500, Greenwood Village, CO 80111 USA. ALL RIGHTS RESERVED WORLDWIDE. No part of this publication may be reproduced, adapted, translated, stored in a retrieval system or transmitted in any form or by any means, electronic, mechanical, photocopying, recording, or otherwise, without the prior written permission of the publisher. The information contained herein including but not limited to all text, photographs, digital images, virtual tours, may be seeded and monitored for protection and tracking.
Read moreLast checked Feb 2, 4:00 pm
- Jome
- New homes search
- Colorado
- Denver Metropolitan Area
- Adams County
- Westminster
- Uplands
- 3875 W 83Rd Ln, Westminster, CO 80031

































