



Book your tour. Save an average of $18,473. We'll handle the rest.
- Confirmed tours
- Get matched & compare top deals
- Expert help, no pressure
- No added fees
Estimated value based on Jome data, T&C apply
- 3 bd
- 2.5 ba
- 1,930 sqft
2799 Penner St, Erie, CO 80026
Why tour with Jome?
- No pressure toursTour at your own pace with no sales pressure
- Expert guidanceGet insights from our home buying experts
- Exclusive accessSee homes and deals not available elsewhere
Jome is featured in
- Single-Family
- $2,028/annual HOA
- 559 days on Jome
Home description
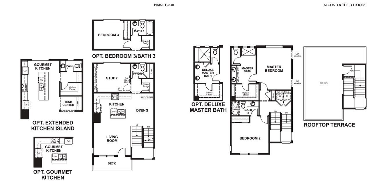
This Soho model home includes: a welcoming porch; a storage area; a gourmet kitchen offering a double oven, a walk-in pantry and a center island; an open dining area; a large living room; a lavish primary suite showcasing a generous walk-in closet and a deluxe bath with double sinks; a rooftop terrace; a deck and a 2-car garage.
May also be listed on the Richmond American Homes website
Information last verified by Jome: Tuesday at 12:57 PM (October 29, 2024)
Book your tour. Save an average of $18,473. We'll handle the rest.
We collect exclusive builder offers, book your tours, and support you from start to housewarming.
- Confirmed tours
- Get matched & compare top deals
- Expert help, no pressure
- No added fees
Estimated value based on Jome data, T&C apply
Home details
- Property status:
- Not available
- Size:
- 1,930 sqft
- Stories:
- 3+
- Beds:
- 3
- Baths:
- 2.5
- Garage spaces:
- 2
Construction details
- Builder Name:
- Richmond American Homes
Home features & finishes
- Garage/Parking:
- Garage
- Interior Features:
- Walk-In Closet
- Laundry facilities:
- Utility/Laundry Room
- Property amenities:
- Deck
- Rooms:
- KitchenDining RoomFamily RoomPrimary Bedroom Upstairs

Community details
Cityscape at Parkdale
by Richmond American Homes, Erie, CO
- 4 homes
- 3 plans
- 1,930 - 1,972 sqft
View Cityscape at Parkdale details
More homes in Cityscape at Parkdale
- Home at address 1227 Rhett Dr, Lafayette, CO 80026

Greenwich
$599,950
- 3 bd
- 2.5 ba
- 1,940 sqft
1227 Rhett Dr, Lafayette, CO 80026
- Home at address 1218 Dylan Dr, Erie, CO 80026

Soho
$619,950
- 3 bd
- 3 ba
- 1,930 sqft
1218 Dylan Dr, Erie, CO 80026
- Home at address 1226 Dylan Dr, Erie, CO 80026

Devoe
$629,950
- 3 bd
- 2.5 ba
- 1,970 sqft
1226 Dylan Dr, Erie, CO 80026
Floor plans in Cityscape at Parkdale
About the builder - Richmond American Homes
Neighborhood
Home address
Schools in Boulder Valley School District RE-2
GreatSchools’ Summary Rating calculation is based on 4 of the school’s themed ratings, including test scores, student/academic progress, college readiness, and equity. This information should only be used as a reference. Jome is not affiliated with GreatSchools and does not endorse or guarantee this information. Please reach out to schools directly to verify all information and enrollment eligibility. Data provided by GreatSchools.org © 2025
Places of interest
Getting around
Air quality

Considering this home?
Our expert will guide your tour, in-person or virtual
Need more information?
Text or call (888) 486-2818
Financials
Similar homes nearby
Recently added communities in this area
Nearby communities in Erie
New homes in nearby cities
More New Homes in Erie, CO
- Jome
- New homes search
- Colorado
- Denver Metropolitan Area
- Boulder County
- Erie
- Cityscape at Parkdale
- 2799 Penner St, Erie, CO 80026




























