






































- 2 bd
- 2 ba
- 989 sqft
105 Wee Hollow Dr, Camp Verde, AZ 86322
- Single-Family
- $332.66/sqft
- $81/monthly HOA
- 0.05-acre lot
New Homes for Sale Near 105 Wee Hollow Dr, Camp Verde, AZ 86322
About this Home
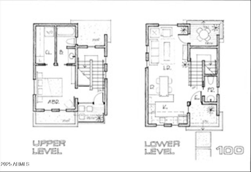
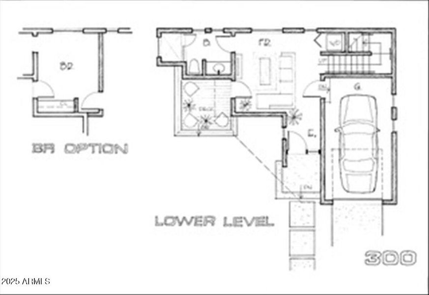
Certificate of Occupancy just issued! Luxury finishes with 18' high living room ceiling! This listing is for the home under construction to the west of the model. A bedroom + full bath on both levels. 9' ceilings with upper & lower patios/decks. Design elements include rustic finishes with stone, metal & wood. Buyers can select from the remaining lots different floor plans, which are pre-assigned to each parcel. The main living (kitchen, master bedroom & living room) on the first floor in 4 of the 6 models. Builder interest rate buy-down program available. Luxury finishes with 18' high living room ceiling! This listing is for the home under construction to the west of the model. A bedroom + full bath on both levels. 9' ceilings with upper & lower patios/decks. Upscale Living, Small-Town Charm - Starting at Just $299,000
Discover a fresh approach to homeownership in a new community designed for easy living and lasting value. These stylish, low-maintenance site-built homes feature thoughtful two-level layouts with one- and two-bedroom options. Private outdoor patios and decks extend your living space, while the neighborhood offers inviting amenities: a community park with bocce court, walking paths, putting green, and cozy fire pits for gathering with friends.
Perfectly positioned on the path from Phoenix to the Grand Canyon, this quiet small town offers a mild four-season climate, great restaurants, local shopping, and abundant Old West history. With clear skies, fresh air, and a river flowing through town, it's the peaceful escape you've been waiting for.
At an incredible price range of $299,000-$389,000, these homes offer both personal enjoyment and investment potentialideal for a second home, short- or long-term rental, or a year-round retreat from colder climates.
A smart lifestyle choice. A remarkable value. A place you'll want to call home.
Russ Lyon Sotheby's International Realty, MLS 6933614
Information last verified by Jome: Yesterday at 11:40 AM (March 31, 2026)
Home details
- Property status:
- Sold
- Lot size (acres):
- 0.05
- Size:
- 989 sqft
- Stories:
- 2
- Beds:
- 2
- Baths:
- 2
- Fence:
- Partial Fence
Construction details
- Year Built:
- 2025
Home features & finishes
- Construction Materials:
- StuccoWood FrameBrick
- Cooling:
- Ceiling Fan(s)Central Air
- Interior Features:
- Breakfast Bar
- Kitchen:
- Quartz countertop
- Rooms:
- KitchenBreakfast Area
Utility information
- Heating:
- Electric Heating, Floor Furnace, Wall Furnace Heating
Neighborhood
Home address
- City:
- Camp Verde
- County:
- Yavapai
- Zip Code:
- 86322
Schools in Camp Verde Unified District
GreatSchools’ Summary Rating calculation is based on 4 of the school’s themed ratings, including test scores, student/academic progress, college readiness, and equity. This information should only be used as a reference. Jome is not affiliated with GreatSchools and does not endorse or guarantee this information. Please reach out to schools directly to verify all information and enrollment eligibility. Data provided by GreatSchools.org © 2025
Getting around
Natural hazards risk
Provided by FEMA
Financials
Nearby communities in Camp Verde
Recently added communities in this area
Other Builders in Camp Verde, AZ
Nearby sold homes
New homes in nearby cities
More New Homes in Camp Verde, AZ
Russ Lyon Sotheby's International Realty, MLS 6933614
All information should be verified by the recipient and none is guaranteed as accurate by ARMLS
Read moreLast checked Mar 31, 11:00 pm
- Jome
- New homes search
- Arizona
- Yavapai County
- Camp Verde
- 105 Wee Hollow Dr, Camp Verde, AZ 86322





































