



Book your tour. Save an average of $18,473. We'll handle the rest.
- Confirmed tours
- Get matched & compare top deals
- Expert help, no pressure
- No added fees
Estimated value based on Jome data, T&C apply
- 4 bd
- 3 ba
- 1,810 sqft
35002 S Stargazer Ave, Red Rock, AZ 85145
Why tour with Jome?
- No pressure toursTour at your own pace with no sales pressure
- Expert guidanceGet insights from our home buying experts
- Exclusive accessSee homes and deals not available elsewhere
Jome is featured in
- Single-Family
- $187.84/sqft
- 560 days on Jome
Home description
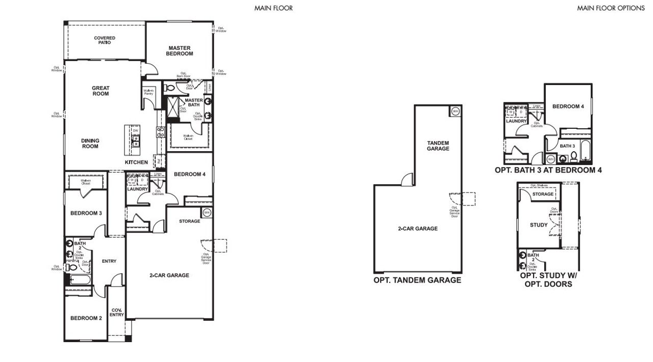
Explore this inspired Larimar home, ready for quick move-in. Included features: an inviting covered entry; an open dining area; a spacious great room; a well-appointed kitchen offering quartz countertops, a walk-in pantry and a center island; an impressive primary suite showcasing a generous walk-in closet and a private bath; a bathroom in lieu of a storage area; a convenient laundry; a mudroom; a covered patio and 2-car garage. This home also offers ceramic tile flooring in select rooms.
May also be listed on the Richmond American Homes website
Information last verified by Jome: Friday at 6:10 PM (December 13, 2024)
Home highlights
Book your tour. Save an average of $18,473. We'll handle the rest.
We collect exclusive builder offers, book your tours, and support you from start to housewarming.
- Confirmed tours
- Get matched & compare top deals
- Expert help, no pressure
- No added fees
Estimated value based on Jome data, T&C apply
Home details
- Property status:
- Not available
- Size:
- 1,810 sqft
- Stories:
- 1
- Beds:
- 4
- Baths:
- 3
- Garage spaces:
- 2
Construction details
- Builder Name:
- Richmond American Homes
- Completion Date:
- November, 2024
Home features & finishes
- Flooring:
- Ceramic FlooringTile Flooring
- Garage/Parking:
- GarageAttached Garage
- Interior Features:
- Walk-In ClosetWalk-In Pantry
- Kitchen:
- Microwave OvenStainless Steel AppliancesKitchen CountertopKitchen IslandKitchen Range
- Laundry facilities:
- Utility/Laundry Room
- Lighting:
- LightingLight Fixtures
- Property amenities:
- BasementBackyardCabinetsPatioYardPorch
- Rooms:
- Primary Bedroom On MainKitchenDining RoomFamily RoomPrimary Bedroom Downstairs
Utility information
- Heating:
- Thermostat
- Utilities:
- HVAC

Community details
Seasons at Red Rock
by Richmond American Homes, Red Rock, AZ
- 9 homes
- 6 plans
- 1,120 - 1,860 sqft
View Seasons at Red Rock details
More homes in Seasons at Red Rock
Floor plans in Seasons at Red Rock
About the builder - Richmond American Homes
Neighborhood
Home address
Schools in Santa Cruz Valley Union High School District
GreatSchools’ Summary Rating calculation is based on 4 of the school’s themed ratings, including test scores, student/academic progress, college readiness, and equity. This information should only be used as a reference. Jome is not affiliated with GreatSchools and does not endorse or guarantee this information. Please reach out to schools directly to verify all information and enrollment eligibility. Data provided by GreatSchools.org © 2025
Getting around
Natural hazards risk
Climate hazards can impact homes and communities, with risks varying by location. These scores reflect the potential impact of natural disasters and climate-related risks on Pinal County
Provided by FEMA

Considering this home?
Our expert will guide your tour, in-person or virtual
Need more information?
Text or call (888) 486-2818
Financials
Similar homes nearby
Recently added communities in this area
Nearby communities in Red Rock
New homes in nearby cities
More New Homes in Red Rock, AZ
- Jome
- New homes search
- Arizona
- Phoenix Metropolitan Area
- Pinal County
- Red Rock
- Seasons at Red Rock
- 35002 S Stargazer Ave, Red Rock, AZ 85145





























