



Book your tour. Save an average of $18,473. We'll handle the rest.
We collect exclusive builder offers, book your tours, and support you from start to housewarming.
- Confirmed tours
- Get matched & compare top deals
- Expert help, no pressure
- No added fees
Estimated value based on Jome data, T&C apply
- 3 bd
- 2 ba
- 1,560 sqft
48343 N Dorotea Way, Gold Canyon, AZ 85118
Why tour with Jome?
- No pressure toursTour at your own pace with no sales pressure
- Expert guidanceGet insights from our home buying experts
- Exclusive accessSee homes and deals not available elsewhere
Jome is featured in
- Single-Family
- $253.2/sqft
- $64/monthly HOA
- 666 days on Jome
Home description
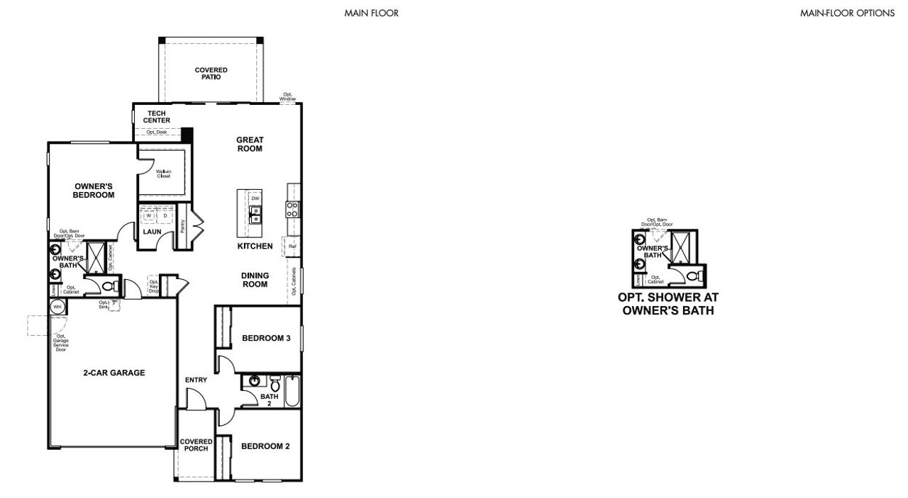
Explore this exciting Onyx home, ready for quick move-in on a desirable homesite boasting ample privacy. Included features: a welcoming covered porch; an open dining area; a well-appointed kitchen offering quartz countertops, a roomy pantry and a center island; a spacious great room; a tech center; a convenient laundry; an impressive primary suite showcasing a generous walk-in closet and a private bath with cultured marble countertops; a covered patio and a 2-car garage.
May also be listed on the Richmond American Homes website
Information last verified by Jome: Wednesday at 12:58 PM (November 27, 2024)
Book your tour. Save an average of $18,473. We'll handle the rest.
We collect exclusive builder offers, book your tours, and support you from start to housewarming.
- Confirmed tours
- Get matched & compare top deals
- Expert help, no pressure
- No added fees
Estimated value based on Jome data, T&C apply
Home details
- Property status:
- Not available
- Size:
- 1,560 sqft
- Stories:
- 1
- Beds:
- 3
- Baths:
- 2
- Garage spaces:
- 2
Construction details
- Builder Name:
- Richmond American Homes
- Completion Date:
- October, 2024
Home features & finishes
- Garage/Parking:
- GarageAttached Garage
- Interior Features:
- Walk-In Closet
- Kitchen:
- Kitchen CountertopKitchen Island
- Laundry facilities:
- Utility/Laundry Room
- Property amenities:
- BasementCabinetsPorch
- Rooms:
- Primary Bedroom On MainKitchenDining RoomFamily RoomPrimary Bedroom Downstairs

Get a consultation with our New Homes Expert
- See how your home builds wealth
- Plan your home-buying roadmap
- Discover hidden gems

Community details
Seasons at Entrada Del Oro at Entrada del Oro
by Richmond American Homes, Gold Canyon, AZ
- 2 homes
- 2 plans
- 1,560 - 1,590 sqft
View Seasons at Entrada Del Oro details
More homes in Seasons at Entrada Del Oro
- Home at address 18551 E Bianca Wy, Gold Canyon, AZ 85118

Home
Savings$362,995
- 3 bd
- 2 ba
- 1,560 sqft
18551 E Bianca Wy, Gold Canyon, AZ 85118
- Home at address 18527 E Bianca Wy, Gold Canyon, AZ 85118

Onyx
Savings$362,995
- 3 bd
- 2 ba
- 1,560 sqft
18527 E Bianca Wy, Gold Canyon, AZ 85118
Floor plans in Seasons at Entrada Del Oro
About the builder - Richmond American Homes
Neighborhood
Home address
- City:
- Gold Canyon
- County:
- Pinal
- Zip Code:
- 85118
Schools in Apache Junction Unified District
- Grades M-MPublicmountain shadows education center - closed6.7 mi2805 s ironwood drna
GreatSchools’ Summary Rating calculation is based on 4 of the school’s themed ratings, including test scores, student/academic progress, college readiness, and equity. This information should only be used as a reference. Jome is not affiliated with GreatSchools and does not endorse or guarantee this information. Please reach out to schools directly to verify all information and enrollment eligibility. Data provided by GreatSchools.org © 2025
Places of interest
Getting around
Noise level
A Soundscore™ rating is a number between 50 (very loud) and 100 (very quiet) that tells you how loud a location is due to environmental noise.

Considering this home?
Our expert will guide your tour, in-person or virtual
Need more information?
Text or call (888) 545-5198
Financials
Let us help you find your dream home
How many bedrooms are you looking for?
Similar homes nearby
Recently added communities in this area
Nearby communities in Gold Canyon
New homes in nearby cities
More New Homes in Gold Canyon, AZ
- Jome
- New homes search
- Arizona
- Phoenix Metropolitan Area
- Pinal County
- Gold Canyon
- Seasons at Entrada Del Oro
- 48343 N Dorotea Way, Gold Canyon, AZ 85118


























