







Book your tour. Save an average of $18,473. We'll handle the rest.
We collect exclusive builder offers, book your tours, and support you from start to housewarming.
- Confirmed tours
- Get matched & compare top deals
- Expert help, no pressure
- No added fees
Estimated value based on Jome data, T&C apply

















Northerly by Ryan Homes
2749 Statesville Ave, Charlotte, NC 28206
Why tour with Jome?
- No pressure toursTour at your own pace with no sales pressure
- Expert guidanceGet insights from our home buying experts
- Exclusive accessSee homes and deals not available elsewhere
Jome is featured in
Plans
Book your tour. Save an average of $18,473. We'll handle the rest.
We collect exclusive builder offers, book your tours, and support you from start to housewarming.
- Confirmed tours
- Get matched & compare top deals
- Expert help, no pressure
- No added fees
Estimated value based on Jome data, T&C apply
Community highlights
Explore Northerly, a townhouse community by Ryan Homes situated at 2749 Statesville Ave, Charlotte, NC 28206. At the moment, the community has a status of Selling. There are no available options but they are coming soon. Northerly homes size vary between 1,420 and 1,601 square feet on various lot sizes. Prices range from $328,990 to $358,990.
Popular Charlotte park with walking trails, playgrounds, and gardens near upscale neighborhoods and top schools.
Community details
Community details
- Neighborhood:
- Double Oaks
- Builder(s):
- Ryan Homes
- Home type:
- Townhouse
- Selling status:
- Selling
- School district:
- Charlotte-Mecklenburg Schools
Community amenities
- Dining Nearby
- Dog Park
- Park Nearby
- Entertainment Nearby
- Shopping Nearby

Get a consultation with our New Homes Expert
- See how your home builds wealth
- Plan your home-buying roadmap
- Discover hidden gems
About the builder - Ryan Homes
Neighborhood
Community address
- Neighborhood:
- Double Oaks
- City:
- Charlotte
- County:
- Mecklenburg
- Zip Code:
- 28206
Schools in Charlotte-Mecklenburg Schools
GreatSchools’ Summary Rating calculation is based on 4 of the school’s themed ratings, including test scores, student/academic progress, college readiness, and equity. This information should only be used as a reference. Jome is not affiliated with GreatSchools and does not endorse or guarantee this information. Please reach out to schools directly to verify all information and enrollment eligibility. Data provided by GreatSchools.org © 2025
Places of interest
Getting around
4 nearby routes: 4 bus, 0 rail, 0 otherAir quality
Noise level
A Soundscore™ rating is a number between 50 (very loud) and 100 (very quiet) that tells you how loud a location is due to environmental noise.
Natural hazards risk
Provided by FEMA

Considering this community?
Our expert will guide your tour, in-person or virtual
Need more information?
Text or call (888) 545-5198
Financials
Estimated monthly payment
Northerly by Ryan Homes
Ready to Make the Move and Invest in Your Future?
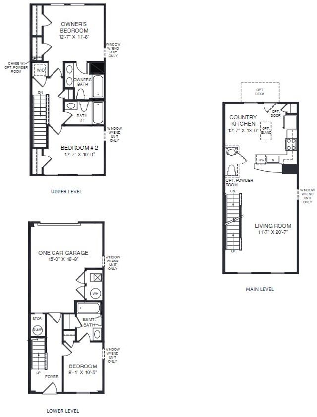
Welcome to Northerly Townhomes — Starting from the Low $300s
Discover modern 3-story townhomes featuring stylish design finishes, 3 bedrooms, a 1-car garage, and private outdoor space.
You’ll fall in love not only with the floorplans but with the community itself. Enjoy a peaceful retreat with sidewalks, green spaces, and a large gathering area — perfect for turning new neighbors into lifelong friends.
With quick access to I-77, I-85, and I-277, Northerly Townhomes offers unbeatable convenience. Whether you're heading to work or meeting friends at Camp North End, NoDa, or South End, you're just a short Uber ride away.
Invest in your future as Charlotte’s North End continues to grow with exciting new dining, retail, and the upcoming Red Line commuter rail expansion.
If this sounds like the place to put down roots, schedule your visit today!




















