







Book your tour. Save an average of $18,473. We'll handle the rest.
We collect exclusive builder offers, book your tours, and support you from start to housewarming.
- Confirmed tours
- Get matched & compare top deals
- Expert help, no pressure
- No added fees
Estimated value based on Jome data, T&C apply







































- 3 bd
- 3 ba
- 2,932 sqft
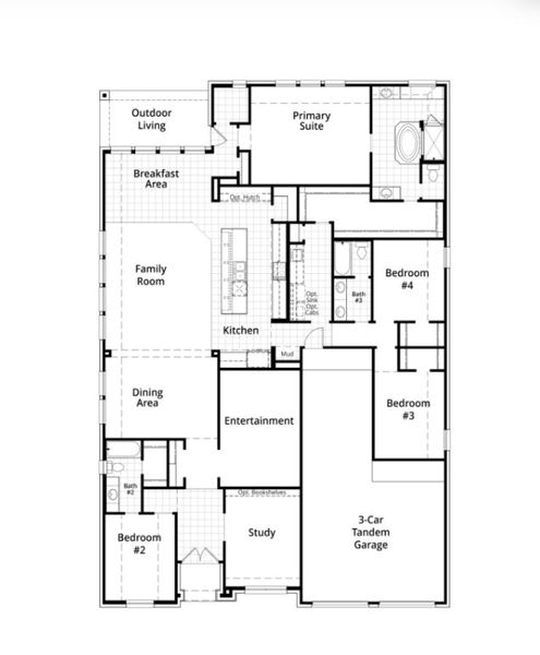
215 plan in Hallie's Cove by Highland Homes
Visit the community to experience this floor plan
Why tour with Jome?
- No pressure toursTour at your own pace with no sales pressure
- Expert guidanceGet insights from our home buying experts
- Exclusive accessSee homes and deals not available elsewhere
Jome is featured in
Plan description
May also be listed on the Highland Homes website
Information last verified by Jome: Today at 2:07 AM (April 24, 2026)
Plan details
- Name:
- 215
- Property type:
- Floor plan
- Community:
- Hallie's Cove
- Builder:
- Highland Homes
- Size:
- 2,932 sqft
- Stories:
- 1
- Beds from:
- 3
- Beds to:
- 4
- Baths:
- 3
- Half baths to:
- 1
- Garage spaces from:
- 2
- Garage spaces to:
- 3
Plan features & finishes
- Garage/Parking:
- GarageAttached GarageTandem Parking
- Interior Features:
- Walk-In ClosetPantry
- Kitchen:
- Kitchen Island
- Laundry facilities:
- Utility/Laundry Room
- Property amenities:
- Outdoor Living
- Rooms:
- Primary Bedroom On MainKitchenOffice/StudyDining RoomFamily RoomBreakfast AreaOpen Concept FloorplanPrimary Bedroom Downstairs
- Upgrade Options:
- Extended Outdoor LivingOffice/StudySliding Glass DoorsExtended Primary BedroomOptional Multi-Gen SuitePowder RoomOutdoor Fireplace

Get a consultation with our New Homes Expert
- See how your home builds wealth
- Plan your home-buying roadmap
- Discover hidden gems
See the full plan layout
Download the floor plan PDF with room dimensions and home design details.

Instant download, no cost

Community details
Hallie's Cove
by Highland Homes, Schertz, TX
- 3 homes
- 13 plans
- 2,792 - 3,928 sqft
View Hallie's Cove details
Want to know more about what's around here?
The 215 floor plan is part of Hallie's Cove, a new home community by Highland Homes, located in Schertz, TX. Visit the Hallie's Cove community page for full neighborhood insights, including nearby schools, shopping, walk & bike-scores, commuting, air quality & natural hazards.

Available homes in Hallie's Cove
- Home at address 7011 Hallie Hunt, Schertz, TX 78154

Birchwood
$716,410
- 4 bd
- 4.5 ba
- 2,822 sqft
7011 Hallie Hunt, Schertz, TX 78154
- Home at address 6999 Hallie Hunt, Schertz, TX 78154

Regis
$759,345
- 4 bd
- 3.5 ba
- 3,425 sqft
6999 Hallie Hunt, Schertz, TX 78154
- Home at address 7005 Hallie Hunt, Schertz, TX 78154

Royston
$791,960
- 5 bd
- 5.5 ba
- 3,803 sqft
7005 Hallie Hunt, Schertz, TX 78154
More floor plans in Hallie's Cove

Considering this plan?
Our expert will guide your tour, in-person or virtual
Need more information?
Text or call (888) 545-5198
Financials
Estimated monthly payment
Let us help you find your dream home
How many bedrooms are you looking for?

































